查看完整案例

收藏

下载
Комплекс Snail-apartments
Адрес:
США,
Нью-Йорк.
438 W 38th St
Архитектор:
Александр Попов
Ольга Чернова
Мастерская:
Архиматика
Авторский коллектив:
Кристина Малийова, Александр Попов, Рустам Горпенюк, Вова Иванов, Ольга Чернова, Александр Симонов
Компания Архиматика представила свой первый проект для Манхэттена, в котором воплотила все принципы PRO-жилья. Элитный комплекс с выразительной архитектурой спроектирован так, чтобы его жители чувствовали себя в безопасности, но не одиночестве.
Проект для Нью-Йорка – дело серьезное для всякого архбюро. А для постсоветского – еще и статусное. Принято считать, что наших архитекторов в других странах не ждут – мол, куда им, пусть сначала у нас научатся строить. Однако в последнее время проекты появляются: Сергей Чобан строит в Германии, «Меганом» придумал для Манхэттена
ультратонкий небоскреб
. Эти первые опыты экспансии интересно изучить: что интересного предлагают архитекторы? Чем отличается от нашего? Получается ли лучше в другой системе бюрократии и законов?
В случае Архиматики можно предположить, что конкурентным преимуществом стала философия, преобразованная в метод: в основе всех проектов киевской компании лежит серьезно проработанная
концепция
индивидуальности жилья, которую архитекторы постоянно
совершенствуют
.
Метод заключается в следующем. Прежде, чем начать проектирование, Архиматика проводит довольно серьезное социологическое исследование: на какую аудиторию рассчитан будущий комплекс? Чем живут эти люди, чем занимаются, какие у них привычки? После чего создают планировки, которые подойдут именно им, компонуют квартиры в дом, подбирают фасад. Это похоже на работу с контекстом, но учитывается не только история и окружение, но прежде всего современные пользователи. Выстраивая рабочий процесс не от случайно пришедшего в голову образа, а «изнутри», Архиматика создает дома, которые действительно отражают героя нашего времени. И доводит архитектуру до логического конца – потому что творчески прорабатывается не только оболочка, но и пространство.
Итак, Манхэттен. Его типичный житель – немного невротик вроде Вуди Аллена, немного Джеймс Бонд, и немного героиня Эми Шумер из «Красотка на всю голову». Одиночка, успешный специалист, всегда торопится, не готовит еду дома, и вообще не стремится заниматься своим жильем – с готовностью делегирует любые домашние дела наемным помощникам. Не приводит домой гостей, но держит собаку. А еще он до параноидальности вежлив – случайно соприкоснувшись с вами в городской суете он немедленно упреждающе извинится, правда отчасти из желания не расширять случайный контакт, и забыть о вас навсегда. Ему нужно иметь убежище – островок спокойствия в эпицентре суеты, тихую заводь, раковину, берлогу в конце концов, где он отгородится от всего мира, сосредоточится на себе или своих решениях, отдохнет, остановится. Но при этом не останется один, не будет в коконе. В отдельных аспектах характеристика может показаться стереотипной для жителя любого мегаполиса, но в сумме – это очень специфический исключительно манхетенский портрет.
На основе «фоторобота» разработали 16 планировочных типов для 30 апартаментов будущего комплекса. Эти 30 «модулей» площадью от 27 до 170 м
2
, как фигурки объемного тетриса, соединяются и формируют прямоугольный брусок всего здания.
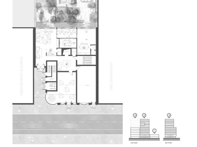
Первые два этажа – общественные, к ним вернемся позднее. Нижние жилые этажи занимают небольшие студии. Здесь есть крохотная кухня с фронтом чуть больше метра и двумя конфорками – разогреть, поесть, потом бежать по делам или упасть в кровать. Под стать кухне и рабочее место: ноутбуку, основному инструменту фрилансера, много пространства не нужно. В этой планировочной иерархии главенствуют гардероб и кровать – для них предусмотрено больше всего площади. В целом получается гостиничный номер высокого класса. А чтобы жить в нем было комфортно долго и при разных обстоятельствах – на этаже есть общая большая кухня, где можно приготовить ужин, а также лаунж-зона, где можно посидеть с друзьями или пообщаться с соседом. С таким дополнением нижний блок становится больше похож по типологии на хостел-коливинг.
Следующий уровень – односпаленные квартиры, площадь которых начинается от 40 м
2
. Здесь каждая функциональная зона получает более четкие границы: кухня и спальня разделены, есть небольшой кабинет. Дальше, то есть выше, следуют пять полутораэтажных квартир: в «антресолях» кабинет с видом на город, внизу – спальня и кухня. У одной из этих квартир есть выход на террасу: она появилась из-за перепада высот, которого требуют местные нормы.
Последний «кубик» – пентхаус, непреложный элемент американского элитного дома. В каждой из трех спален есть санузел, выделенные кабинет и гардероб. Все громоздкое и сезонное можно спрятать в комнате для хранения – назвать ее «кладовкой» язык не поворачивается. Столовая располагается в эркере, откуда Нью-Йорк как на ладони.
Разнообразные планировки позволяют наполнить дом людьми разного возраста, семейного положения и статуса, но при этом у них скорее всего будет схожее мировоззрение. В теории соседи не будут мешать друг другу, но быстро перезнакомятся, а в лучшем случае – подружатся или будут поддерживать более или менее регулярные контакты. По крайней мере, это одна из задач, которую ставили при проектировании. Решение ее – в общих пространствах дома.
Входную группу отмечает гигантский в масштабах здания латунный козырек, по которому вверх, к зелени висячего сада, ползет скульптурное семейство улиток. Образ окончательно не утвержден, но тем не менее он достаточно ясно выражает идею упорной целеустремленности: так и хочется сказать «да это ж про меня, про нас про всех...©» – большинство из нас такие вот улитки, медленно, но верно движущиеся к цели. В то же время моллюски достаточно велики и неожиданны, чтобы быть восприняты как яркий авторский жест, есть в нихxa0что-то льюис-кэрроловское, – но, с другой стороны, образ безобидных «тихоходов» по-своему умиротворяет и даже намекает на то, что вот он, дом – раковина для всех в нем живущих, не надо носить ее на себе, но можно войти внутрь. Объемный козырек смело заворачивает внутрь, «затягивая» входящего, и создавая эффект проникновения в «раковину» дома – многие, вероятно, в детстве рассматривали, к примеру, ракушку рапана, раздумывая о том, как он проникает за поворот ее спирали, в безопасность своего земного дома. Кстати о спирали – она тут как тут: рядом со входом тему «винта», на котором построены многие раковины, поддерживает лестница за округлым стеклом прозрачного эркера – здесь мы как будто уже видим раковину в разрезе, как в учебнике, воспринимая суть образа улитки и по частям, и одновременно. Лобби, вопреки манхэттенским традициям небольшое и уютное, подхватывает заданную тему убежища. Пусть и хрупкого, местами стеклянно-прозрачного, но и надежного. В конце концов, snail, с английского – и винт, и улитка, – так что образ развивается дальше, в деталях ненавязчиво-бионического свойства, к примеру неожиданно выпуклых окнах, но обо всем по порядку.
Первые два этажа – это «домашнее» общественное пространство, куда можно прийти «в тапочках».xa0Здесь будет кафе, сигарная комната, барбершоп, который вечером превращается в бар простым поворотом кресел.xa0Для другого способа отдыхать –xa0тренажерный зал, комната для йоги, массажная, сауна, душ. А такжеxa0место для велосипедов, упомянутая общая кухня, тихая комната для важного разговора или встречи. Интересно, что все эти зоны можно объединить: задвинуть звукоизоляционные перегородки и закатить, например, вечеринку. И конечно специальная комната для собак, в которой питомец может подождать хозяина и даже при необходимости получить некоторые виды сервиса. Также у жильцов и их гостей в распоряжении будет зеленый дворик, идеи благоустройства которого Архиматика по доброй традиции поручила придумать детской студии Arch4Kids.
Непривычно рассказывать о здании и потратить первую половину текста на планировки и общественные пространство. Но – такова Архиматика. И это при том, что сама «архитектура», если говорить об оболочке здания – весьма эффектна.
Участок под Snail-apartments – это лакуна между пожарной станцией и пятиэтажным жилым домом, оба здания из красного кирпича, с чугунными лестницами и балкончиками – классический Нью-Йорк, каким мы его знаем по голливудским фильмам.xa0Архиматика подхватывает лофт-стилистику, которой предостаточно и в других зданиях этого района, переосмысляет ее в новых материалах и образах. Но выдерживает и равенство карнизов: нижний, выступающий к улице объем выровнен по высоте с соседним зданием, следующие шесть этажей ощутимо отступают вглубь участка, формируя крупную ступеньку с террасой на ней согласно упомянутым выше нормам.
Главная деталь, конечно, – выпуклые окна, похожие на цилиндрики пневматической почты. Мощные простенки той части здания, что выходит на красную линию – привычный способ создать образ укрытия, необходимого для защиты от стрел врага или от студеного ветра. А «выдуваемые» из бетонного остова пузыри, которые, кажется, вот-вот лопнут, – это уже о хрупкости духа, утомленного скоростью событий. С другой стороны, матовость и толщина моллированного стекла заставляет фантазировать, как об него разбиваются электронные волны, защищая жильцов от информационного потока. Граница получается прозрачной, но ощутимой: человек продолжает наблюдать мир, но может не впускать его к себе. Если же мы представим выпуклые окна и простенки в разрезе, то получится рисунок, похожий на срезы некоторых винтовых раковин, состоящих из множества круглящихся перегородок. Только этот ажурный рисунок не свернут в спираль, а по-человечески «развернут» на фасад вдоль красной линии улицы. Выпуклости окон формируют и другую ассоциацию, классическую – с рядами арок разной ширины, один из актуальных в наше время приемов.
Цилиндрические окна не открываются, для проветривания планируется использовать разработанный SCHUCO боковой профиль с регулируемым проветриванием, также как и систему искусственной вентиляции, принятую в Северной Америке. Мыть гнутые стекла необходимо снаружи, аналогично современным стеклянным фасадам. Гнутое моллированное стекло благодаря его форме значительно сложнее разбить, чем плоское, – поясняют архитекторы, – но даже если разбить удастся, каленое стекло с защитной пленкой позволит избежать опасных осколков.
Традиционный для Нью-Йорка темно-красный кирпич на фасадах заменяет бетон шоколадного оттенка с вкраплением мрамора двух цветов. Сочетание со стеклом и латунью отдает дань традициям ар-деко и современным небоскребам.
Все вместе дает нам дом с очевидно «штучной», остро-дизайнерской внешностью, которая заставляет вспомнить венские
эпатажи
от
Холляйна
, и одновременноxa0интерпретирует образ традиционного нью-йоркского здания современным языком, технически более совершенным – взять хотя бы выгнутые безрамные эркеры, они выглядят исключительно дорого, как редкий предмет из бутика. Эффектные приемы: винтовая лестница в прозрачном цилиндре, золотистая поверхность ребер-волн «входа в раковину дома» под козырьком, чередование простенков со скругленными углами и полуциркульных стекол, – интерпретируют небанальный образ, не лишенный известной философичной символики: здесь и смирение, и упорство, и любовь к мельчайшим природным деталям, и смелость придать им артистичный hyperscale. Скульптура входа «врастает» в дом и определяет его «генокод», находит ритмичные отклики в его фасадах. Он – дом-скульптура, но родственен соседним кирпичным «просто»-домам, совмещая авторский прием и контекстуальную чуткость, смелость модернистской пластики шестидесятых-семидесятых и склонность современных авторов к неоромантическому осмыслению всего и вся, того, что вокруг, что внутри, и о чем еще можно подумать в связи со всем этим. Любопытный получается сплав, главное – заметный и цельный, хотя и требующий качественного технического воплощения, что в Нью-Йорке, надо думать, возможно.
У Нью-Йорка много эпитетов, один из важных – одинокий. Есть прекрасная
книга
Оливии Лэнг, которая так и называется – «Одинокий город», где она рассказывает о разных персонажах – от Эдварда Хоппера до Энди Уорхола, исследуя их чувство потерянности и заброшенности именно в этом огромном городе – материала оказалось предостаточно.xa0Snail apartments во многом откликается на это ощущение, отрабатывая темуxa0некоторой хрупкости и трогательной уязвимости, присущей всем, даже самым успешным людям.
Сейчас Архиматика вместе с заказчиком и партнерами просчитывает бюджет и возможные риски, не исключено, что проект ждет доработка.
客服
消息
收藏
下载
最近





















