查看完整案例

收藏

下载
Платан и фонтан
Объект:
Кафе Фонтан
Адрес:
Россия,
Сочи.
парк Ривьера
Мастерская:
Согрет
Авторский коллектив:
Главный дизайнер: u200bГрета Зубко
Архитектор: Екатерина Замай
Руководитель: Владимир Зубко
Кафе-терраса в сочинском парке «Ривьера» стремится раствориться в окружающей его буйной растительности: деревья растут сквозь перекрытия, в конструктиве предусмотрены отсеки для высадки растений, а панорамные окна истончают границы пространств.
Кафе «Фонтан» – временная пристройка к зданию Зеленого театра, появившегося в парке «Ривьера»в 1959 году. Паркxa0– не только излюбленное место для прогулок и отдыха горожан и туристов, но и транзитная зона на пути к одноименному
пляжу
, ставшему одной из главных современных достопримечательностей Сочи.
Три стеклянных куба приподняты на разную высоту с помощью стоечно-балочной системы. В нижних уровнях конструкция скрыта панелями из шпона и позволяет сформировать ниши как дополнительные посадочные места. У главного входа с летними столиками конструкция полностью остеклена.
У каждого яруса террасы своя функция. Первый уровень, выходящий на уличную летнюю террасу – это кофейня, где приятнее всего проводить время в теплое время года. Второй уровень, самый просторный, – пространство для мероприятий. В его левой части находится бар с коктейльной посадкой и диджеем, а правая, напротив, более приватная. Последний уровень – семейный, с детской комнатой и местами отдыха, откуда можно любоваться парком через большие окна.xa0Пространство побуждает посетителей пересекаться и контактировать друг с другом перемещаясь между уровнями.
Архитекторы попытались сделать кафе продолжением парка с буйной растительностью. Прозрачные объемы растворяются среди взрослых деревьев, часть из которых пронизывает перекрытия. Эффект усиливается за счет дополнительного озеленения – в конструктиве фасада предусмотрены отсеки для высаживания растений.
Теплую и дружелюбную атмосферу создают такиеxa0элементы как брекчия из натурального камня на полу, плетеные светильники, инсталляция из цветных стеклышек, напоминающий закатное солнце лайтбокс.xa0В вечернее время прозрачный объем здания полностью заливается теплым мягким светом, который оживляет аллею Писателей, расположенную на периферии парка.
Кафе Фонтан. План расстановки мебели -1 этаж
Кафе Фонтан. План расстановки мебели 1 этаж
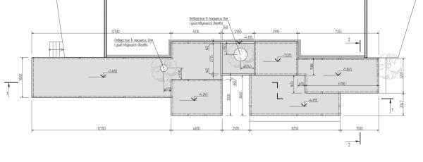
Кафе Фонтан. План кровли
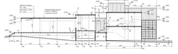
Кафе Фонтан. разрез
客服
消息
收藏
下载
最近













