查看完整案例

收藏

下载
Какой хочет быть школа?
М.Р. Невлютов
Индийский институт менеджмента в Ахмадабаде – один из нескольких проектов, которые Луис Кан осуществил за пределами США. Он стал символом становления современной Индии, неразрывно связанной со своими традициями и обычаями.
Индийский институт менеджмента в Ахмедабаде
Луис Кан оказал сильнейшее влияние на современную архитектуру. Мастера разных поколений отмечают самое разное воздействие Кана на их собственную деятельность: Френк Гери, Моше Сафди, Марио Ботта, Ренцо Пьяно, Дениз Скотт Браун, Алехандро Аравена, Питер Цумтор, Роберт Вентури, Тадао Андо, Со Фудзимото, Стивен Холл и многие другие – каждый из них находил в творчестве Кана что-то свое. Работы Кана стали символом критического движения архитектурной мысли современности. Его называли философом среди архитекторов – и не без основания, хотя он также был и техническим новатором. Уникальность фигуры этого архитектора заключается в синтезе концептуальных позиций рационализма XIX века, академизма Эколь де Боз ар, местных строительных традиций и модернистской архитектуры.
«Интернациональный стиль стал пробуждением Кана, освобождением от консерватизма академических установок, который довлел над его учебой в Университете Пенсильвании и ранней карьерой» [1, p. 23]. Его зрелые работы достигали предела монументальности, предписанной классикой, но также были аскетичны, функциональны и лишены всякого рода украшения, что сближает его с критериями модернистcкой архитектуры. Эти особенности очевидны в его больших работах: Институте Солка, Бангладешском Комплексе Национального собрания и Индийском институте менеджмента в Ахмадабаде.
Индийский институт менеджмента в Ахмедабаде
Индийский институт менеджмента Ахмадабад, более известный как IIM Ахмадабад или просто IIMA, был одним из нескольких проектов, которые Кан сделал за пределами США и, пожалуй, одним из самых известных, наряду со зданием Национального собрания в Дакке. Институт был построен на небольшом отдалении от центра города Ахмадабада, одного из самых крупных в Индии (приблизительно 6,3 млн человек). Ахмадабад на всем протяжении своей истории был известен как индустриальный центр. В период с 1960 по 1970 город был столицей штата Гуджарат, что способствовало развитию там образования и торговли, и тогда Ахмадабад приобрел репутацию центра высшего образования в Индии. В виду образовательного, научного, и технологического роста возникает идея строительства в Ахмадабаде кампуса Индийского института менеджмента (IIM). Строительство университета предполагало продвижение определенных профессий, ориентированных на управление в промышленности, вуз предполагал новую философию школы, западный стиль обучения.
Старый и новый кампусы. Спроектированное Каном выделено цветом
В 1961 индийское правительство и власти штата Гуджарат в сотрудничестве с Гарвардской школой бизнеса организовали комиссию по проектированию нового университета. Проект был поручен местному архитектору Балкришне Доши (Balkrishna Doshi Vithaldas), который и курировал его на протяжении всего строительства вплоть до завершения в 1974 году. Доши предложил проектировать кампус Луису Кану, которым он был очарован. Появление в 1960-х годах в Ахмадабаде американского архитектора говорит о поворотном моменте в архитектуре независимой Индии. Доши полагал, что Кан сможет предложить новую, современную западную модель вуза для Индии.
Для Кана проектирование Индийского института менеджмента стало не просто эффективным планированием пространства: архитектор желал создать нечто большее, чем традиционный институт. Он подверг пересмотру образовательную инфраструктуру и всю традиционную систему: образование должно было стать совместным, междисциплинарным, происходящим не только в классах, но и вне их.
Индийский институт менеджмента в Ахмедабаде
Школу Кан понимал как совокупность пространств, где можно учиться. «Школы берут начало от человека под деревом, который, не зная, что он учитель, делился своим знанием с несколькими слушателями, которые, в свою очередь, не знали, что они ученики» [2, p. 527]. Вскоре возникла школа, как здание, как система, как архитектура. Современная разветвленная система обучения берет начало от такой школы, но ее первоначальная структура была забыта, архитектура школы стала утилитарной и потому не отражает свободный дух, присущий «человеку под деревом». Таким образом, Кан в своем понимании школы восходит не к утилитарному пониманию функции школы, а к духу образования, архетипу школы. «Школа как понятие, то есть дух школы, сущность воли к его осуществлению – это то, что архитектор должен отразить в своем проекте». [2, p. 527]
Школа есть не функция, а идея «Школы», ее воля к осуществлению. Функцию Кан стремится свести к неким общим типам, извечно существующим «институтам» человеческого общества. Понятие «школа» – это абстрактная характеристика пространств, пригодных для того, чтобы там учиться. Идея «школы» для Кана – это форма, не имеющая ни очертаний, ни размеров. Архитектура школы должна проявляться в способности осуществить идею «школы» больше, чем в проектировании конкретной школы. Таким образом, Луис Кан проводит различие между формой и проектом. Форма «Школы» для Кана это не «что», а «как». И если проект – это измеримое, то форма – это та часть работы, которая не поддается измерению. Но форма может осуществиться только в проекте – измеримом, видимом. Кан убежден, что здание начинается с программы, т.е. формы, которая в процессе проектирования проходит сквозь измеряемые средства и вновь становится неизмеримым. Воля к созиданию побуждает форму быть тем, чем она хочет быть. «Точное понимание того, что определяет пространства, пригодные для школы, заставило бы учебные заведения требовать от архитектора, чтобы он знал, какой школа хочет быть, что равносильно пониманию того, что представляет собой форма Школа». [2, p. 528]
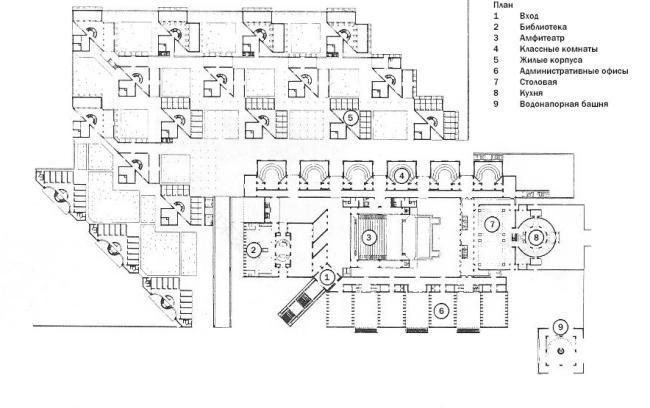
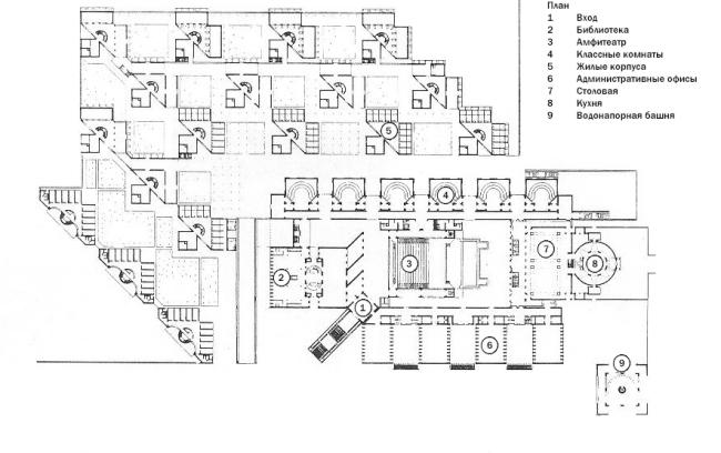
Корпуса института менеджмента разделены и сгруппированы в соответствии с «формой школы», ее программным использованием. «Типы сооружений, осуществленные в IIM, не уникальны для университетов, но они особым образом ориентированы и скомпонованы внутри всего комплекса» [1, p. 37]. Кан, обращаясь к обширному техническому заданию, проектирует главное здание, которое включает административные помещения, библиотеку, аудитории, кухню, столовую, амфитеатр. «Визуальная иерархия применяется, чтобы придать значение главному учебному корпусу в составе комплекса. Меньшим значением обладают спальные корпуса, ориентированные по диагонали от главного, а также жилье сотрудников университета по периметру кампуса» [1, p. 35].
План с экспликацией
Такая функциональная дифференциация и последовательная организация зон создает постепенный переход от общественного к личному пространству. Чтобы создать удобную среду для жизни студентов, было необходимо отделить жилье студентов от учебных помещений зелеными пространствами. Именно через них студент должен совершить церемониальное путешествие на пути к главному корпусу, обозначая границу между средой для жизни и работы.
Индийский институт менеджмента в Ахмедабаде
Важный элемент кампуса – площадь, окруженная с трех сторон крылом административных офисов, библиотекой и аудиториями. Она принимает большие собрания и празднования и фактически является «лицом» университета. Изначальной задумкой Кана было создать площадь внутри главного корпуса, закрытую со всех сторон, но «…проект был реализован лишь частично, с некоторыми изменениями. Кухня и столовая, например, были перенесены, так что площадь внутри главного корпуса стала открытой» [3, p. 94]
Индийский институт менеджмента в Ахмедабаде
Структура университетского кампуса отражает собственное понимание Кана процесса обучения. Традиционное образование в «классическую», согласно Мишелю Фуко, эпоху является консервативным, репрессивным институтом власти, наравне с казармами, тюрьмами, больницами, что находит свое отражение в соответствующей архитектуре. Принципиальной же для Кана является свобода образовательного процесса. Архитектор не желает создавать однотипные классные комнаты, коридоры и другие, так называемые, функциональные площади компактно организованные архитектором, который точно придерживается указаний школьных властей. [3, p. 527].
Под «свободой образовательного процесса» Кан подразумевает «ускользание» из-под гнета тотального контроля, создание условий близких отношений между преподавателем и учеником, отсутствие жесткого расписания и дисциплины. Для этого Кану необходимы открытые и недифференцированные функциональные зоны. Так, в главном корпусе студент попадает в широкие коридоры, которые должны, по мысли Кана, стать аудиториями, принадлежащими самим студентам. Сами аудитории организованы, как амфитеатры, где ученики сидят вокруг учителя. В коридорах – окна, выходящие на площадь и сады. Это места неформальных встреч и контактов, места, предоставляющее возможность для самообразования. Пространства вне классов для Кана были так же важны в образовании, как и аудитории. Тем не менее, Кан не впадает в предельный редукционизм пустого неразделенного пространства.
Макет Кана и изометрия главного корпуса без площади
Характерной чертой его планов является именно разделение обслуживающих помещений и обслуживаемых пространств. Именно он разрабатывает представление о цилиндре как об обслуживающем и прямоугольнике как об обслуживаемом элементах [4, p. 357]. Кан изобретает комнату-конструкцию, помещает обслуживающие элементы в полые стены, в полые столбы. «Конструкция должна быть такой, чтобы пространство входило в нее, было в ней видимо и ощутимо. Сегодня мы создаем полые, а не массивные стены, полые столбы». [5, p. 523]. Опоры, колонны – конструктивные элементы становятся у Кана помещениями, полноценными компонентами пространства.
Индийский институт менеджмента в Ахмедабаде
Пространство IIM структурировано обслуживающими элементами. Лестницы, коридоры, санузлы жилых и учебных корпусов помещены в «колонны-цилиндры» и «полые стены». Структура кампуса «желает» выразить, как здание построено и как функционирует. Она реализуется в чистой форме, где маскировка элементов обслуживания является невозможной.
Индийский институт менеджмента в Ахмедабаде
Кан создает наслоение внутренних и наружных пространств посредством использования широких круглых и арочных отверстий в стенах. Массив стен прорезается окнами, обнажая широкие холлы, открывая защищенную территорию интерьера в экстерьер, позволяя естественному свету проникать внутрь. Свет для Кана был способом образования пространства, непременным условием восприятия архитектуры. Помещения различаются не только благодаря качествам их физических границ и функционального наполнения, но и тем, как по-разному в них проникает свет. Архитектура возникает от стеновой конструкции, отверстия для света должно быть организовано, как элемент стены, и способ этой организации – ритм, но ритм не физический, а светотеневой. Архитектурным можно назвать только то пространство, которое имеет свой свет и свою конструкцию, оно организовано их «желанием».
Индийский институт менеджмента в Ахмедабаде. Фото © Marat Nevlyutov
Проектируя IIM, Кан сосредотачивается не на защите от солнца, а, скорее, на качестве теней. Для этого он создает глубокие коридоры и высоко поднимает проемы арочных окон. Таким образом, внимание зрителя обращено не на источник света, а на его воздействие и производимую им тень. С помощью тени Кану удается создавать аскетичное, сакральное, драматическое пространство.
Индийский институт менеджмента в Ахмедабаде
Работая здесь со светом, Кан работает с массивностью стены, с ее материальностью. Материал указывает на то, как он должен быть сложен, архитектор использует его не как текстуру или цвет, а как конструкцию. «Кирпич желает быть аркой,» – говорит Кан. Архитектор мастерски применяет этот традиционный материал в строительстве IIM. Его повсеместное использование немного подавляет, но придает монументальность и единство всем элементам кампуса. Использование кирпича вполне закономерно и отсылает к местной строительной традиции. Материальность и монументальность IIM была реакцией на дематериалиализацию безжизненных стеклянных построек крупных городов.
Индийский институт менеджмента в Ахмедабаде
Кан искал свой путь в модернистской архитектуре, искал вечные структурные законы архитектуры, неподвластные моде и стилю. Он был бесконечно увлечен традиционными знаниями, представлениями о мире и архитектуре, восхищается руинами, древними зданиями, лишенными отделки и украшения: только они, по его мнению, показывают свою истинную структуру. В кампусе IIM архитектор интерпретирует архетипы с позиции современной строительной технологии. Кан не просто повторяет геометрию древних сооружений, он осмысляет их структуру, конструкцию, функцию, типологию, что позволяет дать кампусу присущую руинам монументальность.
Индийский институт менеджмента в Ахмедабаде
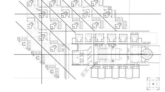
Проект кампуса IIM непосредственно происходит от священной геометрии Индии, тем самым преодолевая разрыв между историей и современностью. Кан смог создать сложную систему зданий, основанных, прежде всего, на формах и материалах, найденных в пределах древнеиндийской мысли и традиции. «Сакральная геометрия Кана использует круг и квадрат, фигуры, которые получены из священной индийской мандалы. Мандала была традиционным способом планировки индийских городов, храмов и домов, обеспечивая структуру и порядок жизни индийцев в течение многих тысячелетий» [1, p. 40]. Эта геометрическая организация круга, вписанного в квадрат, и диагоналей, проходящих через углы квадрата в 45 градусов, возникает у Кана в расположении внутренних дворов, дорог, размещении зданий, в поэтажной планировке и структуре фасадов.
Диагональные пути перемещения по кампусу
«Ортогональная выразительность кампуса IIM также следует за строгими правилами, никогда не отклоняясь от углов 90 и 45 градусов» [1, p. 41]. Пути из жилых корпусов все направлены к главному зданию под углом 45 градусов, повторяя геометрию мандалы, а сами эти корпуса имеют форму модифицированных кубов. «The square is a non-choice»: Луис Кан говорит, что квадрат является уникальной фигурой, способной структурировать реальность и решить многие проблемы проектирования. [6, p. 98]
Таким образом, интерес Луиса Кана распространялся не только на форму и конструкцию, но также на семантику образа и места. Для Кана важны использование региональных строительных методов, традиционных материалов, понимание условий окружающей среды. Луис Кан чувствовал и «усваивал» места, поэтому, в первую очередь, его архитектура – не об архитектуре, а о месте и человеческом опыте.
При жизни Кан смог увидеть большую часть запроектированного им кампуса воплощенной, но завершил строительство другой архитектор – Доши. Луис Кан умер 17 марта 1974 года на Пенсильванском возкале в Нью-Йорке, на пути домой в Филадельфию после поездки в Ахмадабад. Индийский институт менеджмента стал символом становления современной Индии, неразрывно связанной со своими традициями строгости и монументальности.
Индийский институт менеджмента в Ахмедабаде. Фото © Marat Nevlyutov
Индийский институт менеджмента в Ахмедабаде. Фото © Marat Nevlyutov
Индийский институт менеджмента в Ахмедабаде. Фото © Marat Nevlyutov
Индийский институт менеджмента в Ахмедабаде
Фотография © Marat Nevlyutov
Индийский институт менеджмента в Ахмедабаде. Фото © Marat Nevlyutov
Старый и новый кампусы
客服
消息
收藏
下载
最近






















