查看完整案例

收藏

下载
>复古与时尚并存,用颜色“拆掉了”承重墙
复古与时尚并存,用颜色“拆掉了”承重墙
参考造价:28万元
风格:混搭
空间:三居
面积:69平米
浏览数:6554
案例简介
Case description
因为比较忙一直没有时间写这套整屋,只是偶尔发一两张局部,发现很多住友都非常喜欢,一直在期待何时能发整屋,近期腾出时间终于发表了整屋
屋主LLucilla小姐姐去年找到我们,家里有一套回迁房准备改造,想请我们参与设计并实施改造,项目位于北京门头沟区,洽谈初期因为考虑到路程有点远,有点犹豫要不要接受,但慢慢的被LL和老公的热情和想法感染了。
两个人刚结婚不久,因为拆迁(棚改户,不是拆二代那种暴发户)拥有了一套属于自己的房子,面积不大八十多的小三局,房屋是剪力墙结构的塔楼,房屋改造限制很多,庆幸的屋主LL对自己想要的很清楚,近几年没有要孩子的要求,满足自己和老公的二人世界,父母偶尔会来,平时上班很少在家开火吃饭,希望有个小吧台,衣服很多一定想办法解决,家里风格要时尚一点,不喜欢很常规的风格,感觉没有自己家的特点,有一些时尚的元素相拥在家里,颜色可以丰富点,很喜欢橙色,并且能接受一些大胆的设计思路。。。
这样的屋主是可遇不可求的,闲话少说我们开始!!
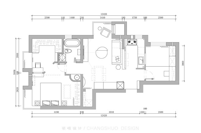
▲原始户型,一个没有什么亮点的毛坯房,虽然户型格局可以满足屋主的居住需求,但是现有格局很难做的出彩,原始的剪力墙结构也不是很好做大调整。
▲客厅旁边的厨房
▲进门的感受很差,面对厨房的门右侧是书房的门,左侧是客厅,没有玄关没有地方放鞋挂衣,不大的客厅又被厨房划分出了一部分面积,显得很堵
▲客厅旁边有个鸡肋空间,美其名曰“开发商赠送储物间”,其实是整栋楼电梯后边多余的井道,面积1平左右,奇葩的门洞只有不到600宽,看上去瘦高瘦高的,与旁边的大垭口形成鲜明对比,更惨的是这是承重结构无法改动。
▲通过不断对LL和她老公需求的挖掘与沟通,以及风格感觉的调研,最终确定了平面布局和风格意向
1 拆掉厨房与客厅之间的墙体,做成半开放式的厨房,让进门的视野更加开阔,减弱了进门的闭塞感
2 门后做玄关储物,隐蔽又方便
3 餐桌虽然不经常使用,但仍需要保留,做成隐藏抽拉式,增大客厅的活动空间,半开放的厨房和客厅之间的矮墙做成了餐厨一体的吧台
4 客厅旁边的“赠送空间”通过颜色的拼接,从视觉上增大了瘦高门洞的尺寸,让客厅更加和谐统一
5 卫生间面积不大,但屋主想要浴缸,改造后做成了干湿分区,通过墙体改造又把洗衣机放入了卫生间
6 去掉了一间次卧,改成了衣帽间,这可能是LL梦寐以求的地方了
7 全屋运用了大量的圆弧造型,圆拱的门洞,弧形的吊顶,让空间更加灵动
8 主卧和衣帽间的结合让主人房更大,功能更齐全,为了让睡眠区更宽敞采用了45度斜向建墙,拱门和拱窗的引入增大了两个空间的交流性与趣味性
▲客厅充当了通常住宅玄关的作用,圆拱形的门洞将电视背景墙分成两部分,左侧两个电表箱很明显,其中一个用装饰画遮上了,下边的则刷上了墙漆,尽量减弱在空间里的突兀感。右侧电视背景墙因为尺寸比较小,所以利用了石膏线的框线,延伸到顶面及侧墙,让视觉有一种延伸的感觉,同时为了强调这种感觉,墙面颜色也做了蔓延的设计,让顶与侧墙成为背景墙的一部分。
▲设计师手稿(献丑了,哈哈哈~)
▲沙发选用饱和度很低的墨绿色,和电视背景墙角落的墨绿色形成呼应,客厅家具更多选用胡桃木带铜件的成品家具,一方面更加灵活移动,另一方面营造了一点精致复古的味道(电视好像没有擦干净,有点遗憾。。。)
▲从这个角度可以看到沙发后边的异形垭口,让在厨房操作的人能更好的与客餐厅的家人进行交流。
▲空调是常规的壁挂空调,但因为不想正对着人吹,也不想挤在房间的一个角落,被安排在跟沙发电视对齐的轴线上,冷凝水和铜管藏到了背后厨房吊顶里,从外侧看不到长长的管子。(我很满意,哈哈~)
▲新风被藏到了厨房吊顶了,但是主卧室的送风要经过客厅,必须布局吊顶隐藏管道,为了整体风格舒适,吊顶采取了圆弧处理,并没有明显的折角折弯,也从视觉上拉长了客厅顶部尺寸。
▲客厅沙发区正面。
▲窗帘绳换成了艺术造型的窗帘钩,让空间更加独特更加有仪式感,仿佛有人在为你揭开窗帘迎接第一缕阳光。
▲开发商“赠送的储物间”对于门宽极窄,高度则是正常门的高度,所以看上去很不协调,尤其旁边还是通向主卧的垭口。。。想了很多办法削弱这种不协调,最终决定利用造型和拼色,通向卧室的大垭口做了1/2圆的拱门洞,小储物间的门利用墙漆的拼色,视觉上扩大了门体宽度,与旁边的弧形大垭口造型保持一致,也不会显得突兀。(这单要给木工师傅和油工师傅点赞)
▲就是这样一步一步达到我们想要的样子,看上去有没有加宽加高了的感觉。
▲拼色拱门细节
▲拼色拱门细节
▲拼色拱门细节
▲拼色拱门细节
▲施工中的照片,左侧厨房已经打开了,为节省成本下墙没有拆除重砌,这个角度可以看到储物间的门洞,真“苗条”。
▲完工后,西厨背景墙是LL最喜欢的橙黄色,同时通向主卧的半拱门侧墙也运用了同样的橙色,让两个门洞,两面墙体产生了颜色和造型上的联系,显得更加统一。
▲西餐台(手机拍摄,效果有点差)
▲西餐台(手机拍摄,效果有点差)
▲功能上采用了抽拉式餐桌,因为平时LL和老公不经常在家开火做饭,周六日更喜欢坐在吧台上开着电视吃着便餐,所以餐桌更多是为了过年过节家里父母过来聚餐使用。(手机拍摄,效果有点差)
▲客厅的另一个角度,阳台的粉色按摩沙发是LL纠结了好久买下来的,因为并不便宜。
▲墨绿色的沙发后边就是半高墙体做的吧台和厨房空间,矮墙上留了电源,方便坐在沙发上给手机充电。从这个角度可以看到次卧的黑门,酷~
▲拆除后的厨房,有点狼藉,庆幸的是顶面没有那么多下水管还是比较平整的,所以后期的新风机就藏在这里吧。
▲这个角度可以看到烟机灶台的位置,在厨房的尽头,因为开放厨房,为了让油烟对室内的影响降到最小,并没有把厨房全部开放,甚至烟机左侧还保留了整墙,厨房只是窗口式的半开放,L形的橱柜满足了做饭时的“放 - 洗 - 切 - 炒”的操作动线。深灰色的门板与白色的墙砖结合,让厨房多了些层次感。
▲很喜欢这张照片,在阳光的照射下餐厅吧台显得更加惬意,想象一下和心爱的人坐在吧台前,品尝着刚磨好的咖啡,边看电视边聊生活。。。顶上吊下来的铜制的小吊顶和旁边折纸感的花器让空间更有复古时尚的感觉。
▲坐在吧台看客厅(插座应该也换成黑色就完美了)
▲餐厅入口对着入户,从这个角度可以看到入户,防盗门背面粘贴了毛毡(这是最容易改变防盗门颜色的办法),进门右手边利用了门后空间做了到顶的鞋帽柜,左手边是开放的换鞋凳和临时鞋架。
▲LL小姐姐有两个爱好,爱美和泡澡,所以一定要有个浴缸,没商量!!没办法怎么才能让不大的卫生间放下浴缸和洗衣机。是的,把洗手盆挪出去,扩大了卫生间的实用空间,也实现了干湿分区。通向主卧的过道上便是卫生间的干湿分区。
▲占用了部分主卧空间,放下了洗手盆,墙面结合整体圆润的设计语言也做成了圆弧形,利用上下分墙,上边是砖红色防水乳胶漆,下墙是竖向贴的白色小砖,再配合玻璃壁灯点缀,相互搭配更加复古,镜柜做成了嵌入式,外表与弧形墙面齐平。这个角度能看到一部分主卧的黑门,在灯光的照射下门上的线条更加明显,酷~
▲卫生间里边,浴缸与洗衣机全部放下。
▲主卧最显眼的就是这个背景墙,墨绿色做底色,橙色红色和白色组成不同大小的色块,结合飘窗造型与石膏线的加入,让简单的背景墙更加丰富,体块感与元素更丰富。左侧的柜子是卫生间洗手池的背后空间,缩短了衣柜的长度,给了洗手池,让空间更好实用。
▲设计师最初的手稿
▲石材与金属质感相结合的床头吊顶,不大但很精致,几何状的造型更显纯粹。
▲把主卧和次卧的墙拆除后,的确很宽敞,这样的一个大主卧就能更充分的规划各个功能了!!!
▲将原本次卧一部分给了卫生间放洗衣机,剩下的部分规划为衣帽间,通过异形墙体让出来进门空间,同时也增加了卧室与衣帽间的趣味性。
▲床尾悬挂了电动投影幕布,幕布的悬挂并没有做传统的幕布盒,而是纯粹的悬挂在顶棚,电源也是裸露在幕布的一端,更加随意的感觉让空间更有生活的味道。
▲衣帽间是原来的次卧改造的,根据动线调整了墙体,45°斜向建造,为了让空间更加通透和有联系,衣帽间没有用门而是用了一个半圆拱门和一个半圆拱窗,同样在拱门和拱窗侧边涂刷了LL喜欢的橙黄色。
▲衣帽柜,单独预留了给LL展示包的柜子,其他地方男女分开作为衣物收纳,不常用的被褥放到了最高处,柜门遮挡。
▲飘窗铺上了毛毯,比起坐在冰凉的石材上,毛毯更温和更舒适。
▲柜子侧边的椭圆镜子,圆角呼应圆拱门和窗,从镜中可以看到LL的梳妆台和飘窗。
▲梳妆台上是半拱窗,透过拱门和拱窗半隐半现的看到主卧睡房,让空间有着若近若离的联系,也让屋主在使用上有更多趣味性。
▲床头背景墙并没有单面墙做文章,而是结合侧墙、飘窗、顶面共同考虑,营造一种延伸感,让床头背景的覆盖区域更大,背景墙围合感更强让睡眠者更有包裹感增加安全感。
▲从这个角度看主卧床头,更加独特,好像被框在一个半圆拱的镜框中,橙色和灰绿色的搭配,结合黄铜玻璃的吊灯,让空间根据复古氛围。
▲次卧壁纸的选择花了很大功夫,基本上把建材城壁纸区“扫荡”了个遍,终于找了纹理颜色都合适的壁纸,而贴出来的效果也是令人满意的。(LL调侃着说还有睡眠效果~~)
▲次卧的颜色搭配能看出更偏向男性。没错,这是LL老公闫先生的游戏室,除了日常办公闫先生喜欢通过打游戏来放松自己,强烈需要一个能放台式机的地方,所以次卧就留给了闫先生作为书房兼游戏室,平时老人来了还能睡在榻榻米上。
设计师本人~哈哈~
客服
消息
收藏
下载
最近








