查看完整案例

收藏

下载
戈者设计
结合研究教育休闲和商业城市街区的办公楼设计
Foster + Partners已经完成了ICÔNE,一个位于卢森堡Belval的新办公综合体设计。这座18800平方米的办公大楼充满了光线和绿色,鼓励共同创造和合作的精神。它的布局解决了未来将出现的对灵活和安全的工作环境的需求。它还参考了贝尔瓦尔丰富的工业遗产,通过对场地和周围环境的积极贡献,振兴了该地区。该方案的目标是达到英国建筑性能评估体系的优秀等级。
ICÔNE位于Belval,一个结合了研究、教育、休闲和商业的新城市区。该方案与周边建筑的规模有关,并针对周边街道的不同特点。它的入口处以不同的方式衔接,以回应西边的主要城市街道法兰西门和东边的学院广场。新的商店、咖啡馆和餐馆将为这些入口立面的行人层面带来活力。
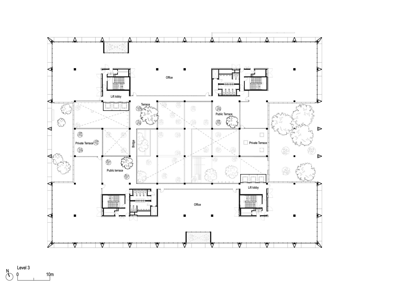
该建筑与当地的BFF建筑师合作设计,被安排为两翼,包围着中央中庭,由独特的正交外墙和屋顶包裹,强调了结构网格,使建筑适合其工业环境。历史上具有象征意义的贝尔瓦尔高炉构成了从中庭眺望的中心焦点。
内部空间的流动性与建筑的正式外观形成对比。中庭通过一系列的阶梯式露台解决了街道和广场之间的水平变化,创造了一个壮观的到达顺序。开放式循环增加了内部空间的活力,公共的绿色景观平台可供非正式会议使用,较高楼层的休息空间是一个丰富多样的整体的一部分。
外墙既是结构性的,也是对环境的反应,提供了一个综合的解决方案,允许内部无柱的办公空间,以及遮阳和最大化的内部日光。外立面得益于一系列的外部绿色木栅,从建筑的内部和外部都可以看到。
客服
消息
收藏
下载
最近











