查看完整案例

收藏

下载
Свет в русском стиле
Татьяна Тимофеева
Объект: Дизайн станции метро «Новопеределкино»
Адрес: Россия, Москва. Боровское шоссе, 30
Архитектор: Александр Дембо, Евгений Леонов
Мастерская: URA.GROUP
Авторский коллектив:
Автор – Евгений Леонов.
Разработка конкурсного этапа – Евгений Леонов, Александр Дембо.
Разработка стадии ЭП, П, Р – Евгений Леонов, Александр Дембо, Лива Банка, Антон Гонда, Иван Галица, Лина Плавинская.
Концепция освещения – Евгений Леонов и компания МДМ-Лайт: Алексей Звягин, Александр Астапенков, Эдуард Жегалин.
ОАО «Ленметрогипротранс», ГАП: Дмитрий Бойцов, Артем Потехин.
Реализованная станция метро «Новопеределкино» – опыт соединения хайтека с русским стилем.
Интерьер публично доступной части станции метро «Новопеределкино»
Станция метро «Новопеределкино», одна из самых напряженных теперь на желтой линии – 16 500 пассажиров в день – открылась в августе 2018 года. Ее интерьер реализован по проекту рижских архитекторов URA / United Riga Architects, Евгения Леонова и Александра Дембо. Проект победил на конкурсе 2014 одновременно с дизайном станции Солнцево и оба были реализованы почти без отступлений. Разница разве что в том, что у «Новопеределкина» нет дизайнерского наземного павильона, что, конечно, жаль.
Проект Новопеределкина не был фаворитом жюри конкурса, впрочем, относительно этой станции жюри разошлось во мнении и победителя назначил заммэра Марат Хуснуллин исходя из собственных предпочтений и результата народного голосования, где проект набрал 35%. После первого тура архитекторы переработали проект: «своды» со световыми орнаментами, которые первоначально были повсюду, остались только во входных вестибюлях и немного сократились по высоте, основной же зал платформы стал более спокойным и ограничился одним рядом столбов по оси платформы.
Дизайн станции метро «Новопеределкино», 2014, 1 этап конкурса
Интерьер публично доступной части станции метро «Новопеределкино»
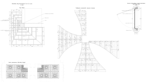
Конечно же, самое яркое решение этого проекта – «своды» из кассет прорезного металла с диодной подсветкой. Кассеты разборные для смены ламп и очистки от пыли. Рисунок растительного орнамента – обобщенно-растительный и больше всего напоминает, наверное, Хохлому. Подсветка может быть не только белой, но и цветной, выбраны оттенки холодных цветов: так, в верхней части возникает то фиолетовое, то зеленоватое «небо», что можно счесть попыткой немного смягчить напряжение, создаваемое крупным и графичным орнаментом.
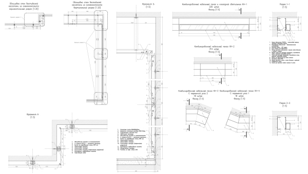
чертежи вестибюля:
Интерьер публично доступной части станции метро «Новопеределкино»
Интерьер публично доступной части станции метро «Новопеределкино»
Интерьер публично доступной части станции метро «Новопеределкино»
Интерьер публично доступной части станции метро «Новопеределкино»
Конечно же, никакие это не своды: конструкция не сведена и не держится замковым камнем. Шесть столбов, выстроенных в три ряда, подчинены параболическим– или даже стрельчатым – контурам, но их верхняя часть служит скорее объемным плафоном, кружевной световой конструкцией, которая расцветает на черных «ногах» оснований, но о сводчатых залах лишь напоминает. Однако свою символическую задачу выполняет хорошо: кажется, что мы в Грановитой палате, повторенной несколько раз. Сводами и орнаментом «неорусская» тема – не скажу может быть что раскрыта, но обозначена ясно.
Надо признать, что столб с массивным сводом – не только мотив средневековой архитектуры как таковой и русской в частности, но еще и один из любимых мотивов архитектуры московского метро, особенно станций глубокого залегания с двумя рядами столбов. Это одно из пластических отличий московского метро от иностранных – толстыми столбами и сводчатыми конструкциями архитекторы как будто постоянно подчеркивают, что это не просто часть транспортной системы, а сводчатые залы подземного дворца. Впрочем, другая традиция, восходящая к еще сталинской архитектуре – архитектура станций метро прямо или латентно классична, даже когда, как в «Новослободской», использует «готические» витражи или, как в «Киевской», пытается развивать национальную тему. Вестибюль «Новопеределкино» – первый в этом ряду отчетливо псевдо-(или нео-?)-русский.
Интерьер публично доступной части станции метро «Новопеределкино»
Интерьер публично доступной части станции метро «Новопеределкино»
Интерьер публично доступной части станции метро «Новопеределкино»
Интерьер публично доступной части станции метро «Новопеределкино»
Интерьер публично доступной части станции метро «Новопеределкино» Он, с другой стороны, перекликается с известным столбом вестибюля на Курской, равно как и в вестибюлями-гипостилями множества итальянских дворцов XVI-XIX веков или дворца Меньшикова на Неве. В принципе объемная конструкция, предложенная архитекторами URA – вариант классического и очень эффектного решения входного пространства ренессансного палаццо, «опрокинутый» в «русский стиль».
Между тем если псевдорусский стиль XIX века развивался в составе историзма, а неорусский стиль начала XX века был частью модерна или арнуво, то вариант рижских архитекторов принадлежит хайтеку. На это указывает многое, начиная от полированного металла и заканчивая сборно-разборными световыми кассетами, которым здесь уделено столько внимания. Хай-тек и современные веяния сильнее ощущаются в зале платформы, где столбы покрыты полированным металлом и окружены, наподобие «юбок» у грибов, мерно чередующимися скамейками и «прислонейками». Чередование придает ровному ряду столбов своего рода «ритм качки» и привносит в пространство станции, в остальном очень спокойное и освобожденное от лишнего, сюжетную интригу. Русский стиль же сохранен на потолке, здесь совершенно плоском, в виде кассет со все тем же орнаментом, который, преломляясь в металле столбов, создает на их поверхности рисунок размытых завихрений, похожих на след от пролетевшего призрака.
Интерьер публично доступной части станции метро «Новопеределкино»
Интерьер публично доступной части станции метро «Новопеределкино»
Интерьер публично доступной части станции метро «Новопеределкино»
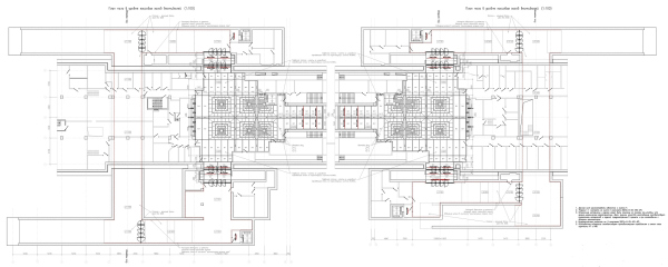
Интерьер публично доступной части станции метро «Новопеределкино» чертежи платформы:
Интерьер публично доступной части станции метро «Новопеределкино»
Интерьер публично доступной части станции метро «Новопеределкино»
Интерьер публично доступной части станции метро «Новопеределкино»
Интерьер публично доступной части станции метро «Новопеределкино»
Интерьер публично доступной части станции метро «Новопеределкино»
Интерьер публично доступной части станции метро «Новопеределкино»
Работа с русским стилем в наше время требует немалой смелости и чувства стиля, хотя попытки предпринимаются регулярно. Кто-то скажет, что получилось прямолинейно и ярмарочно, что можно было бы подобрать рисунок поинтереснее и потоньше. Или решит, что русский стиль здесь поверен пафосом сталинского ВДНХ: вот эта радость, с которой вырастают из оснований белые (или черные, как посмотреть) цветы сродни эмоциям фонтана Дружбы народов. Кто-то, наоборот, порадуется развитию традиций московского метро и новой попытке найти неорюс в новейших тенденциях хайтека и орнаментальной архитетуры, популярной последние лет пятнадцать. Так или иначе, а станция выбилась в топы google по запросу архитектура московского метро – и значит, уже стала частью наших представлений о «подземных дворцах».
客服
消息
收藏
下载
最近























