查看完整案例

收藏

下载
Complejo Académico PUCP / Enrique Santillana + Tandem arquitectura + Jonathan Warthon
Complejo Académico PUCP / Enrique Santillana + Tandem arquitectura + Jonathan Warthon
Universidad Sustentabilidad
San Miguel, Perú
Arquitectos: Enrique Santillana, Jonathan Warthon, Tandem arquitectura
Área: 11750 m²
Año: 2017
Fotografías: Juan Solano Ojasí
Proveedores: Buildex, Meglio, Rossello
Diseño Estructural: Prisma
Arquitectura Bioclimática: Ing. Agustín Agarve
Diseño De Iluminación: Rie Sakata
Ingeniería Eléctrica: Ricardo Tantas
Ingeniería Mecánica: Jorge Cóndor
Arquitectos Autores : Cynthia Seinfeld, Jorge Draxl y Juan Carlos Burga, Enrique Santillana, Jonathan Warthon
Equipo: Antony Caballero, Daniel Chavarry, Willy Castro, Mauro Jurado, Miguel Palacios, Gianfranco De La Cruz, Diego Campana
Ciudad: San Miguel
Pais: Perú
El Nuevo Complejo Académico PUCP se ubica dentro del Campus de la Pontificia Universidad Católica del Perú en Lima, el cual está conformado por un conjunto de edificios aislados de distintas alturas, tipologías y usos, comunicados entre sí mediante vías peatonales sobre áreas verdes. El nuevo edificio se inscribe dentro de la política de mejora de la infraestructura académica establecida en el Máster plan de la Universidad.
Planta sitio
El proyecto ocupa el terreno donde se erigía la antigua biblioteca contigua al edificio de la Facultad de Ciencias Sociales y Económicas, ambos diseñados por el estudio COOPER, GRAÑA, NICOLINI en 1964. Desde el inicio de su conceptualización, la propuesta siempre se consideró complementaria al edificio de la facultad existente, por lo que la relación entre ambos edificios es formal y directa. En contraparte, el nuevo Complejo está suspendido del suelo para conseguir una continuidad visual desde el patio central de la facultad con el entorno verde del Campus.
Planta 4
El proyecto ganó el primer puesto del concurso entre arquitectos docentes de la Facultad de Arquitectura de la PUCP, a comienzos de 2015. Las bases solicitaban un edificio de uso mixto que mejore la infraestructura de la facultad y la biblioteca, y se cree nuevos espacios para oficinas del profesorado de ambos departamentos académicos. Además, se requería aumentar las áreas de uso colectivo incluyendo salas de estudio y reuniones para satisfacer la formación académica y de investigación de la comunidad universitaria.
© Juan Solano Ojasí
OBJETIVOS
La propuesta se alinea con las directivas actuales de la universidad que buscan mayor interacción entre la infraestructura del campus y su alumnado. El Complejo debería convertirse en un centro del quehacer académico y de congregación entre alumnos y profesores.
© Juan Solano Ojasí
Elevación norte
Una estrategia de diseño importante fue la demarcación de sus funciones como edificio mixto. Para ello, el proyecto propone un volumen horizontal y uno vertical. En el horizontal se dan todas las funciones públicas y de integración, mientras que el vertical contiene las oficinas del profesorado. Asimismo, para enfatizar la división entre ambos volúmenes, el proyecto plantea un espacio vacío de ocio: un jardín elevado, que a su vez marca una nueva línea de horizonte que nos permite prolongar la volumetría del edificio existente y acotar su escala.
© Juan Solano Ojasí
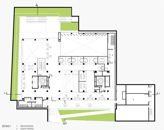
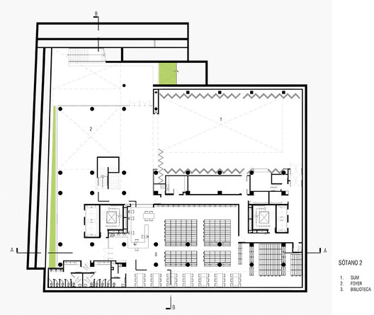
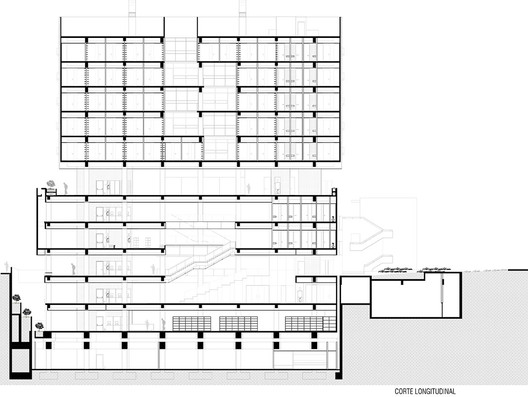
Proponemos que el volumen horizontal, con vocación pública, tenga múltiples accesos en distintos niveles, con patios en subsuelo para iluminar naturalmente los sótanos. Proyectamos la circulación interior y exterior fluida y ascendente en espiral, utilizando los puentes y graderías como espacios de recorrido y a la vez de estudio y socialización, consiguiendo que estos elementos se integrasen entre sí a través de relaciones espaciales desde los sótanos iluminados naturalmente con “patios ingleses” hasta la terraza jardín del cuarto piso.
Sección transversal
© Juan Solano Ojasí
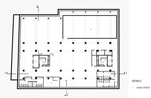
Un requisito importante fue la implementación de un sistema antisísmico con aisladores que condiciona la grilla estructural del edificio. Proponemos el proyecto como sostenible y con una clara estrategia bioclimática. Aprovechamos los vientos del sur para diseñar un sistema de ventilación natural que cruzase el edificio. Para controlar el asoleamiento se dispone de un sistema de pasarelas con parasoles.
© Juan Solano Ojasí
USO
Desde su puesta en funcionamiento, el nuevo Complejo se ha convertido en un espacio de confluencia entre las diversas unidades académicas y facultades del Campus.
© Juan Solano Ojasí
La volumetría del proyecto enmarca el patio central de la facultad otorgándole un carácter de espacio representativo, de encuentro y ocio para la comunidad universitaria.
© Juan Solano Ojasí
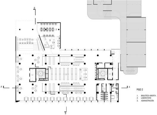
En el volumen horizontal se acogen las colecciones de la biblioteca, salas de lectura, graderías, salas de reunión, laboratorios de investigación, servicios y una gran sala de usos múltiples. La circulación entre estos espacios está compuesta por escaleras y pasillos suspendidos que recorren las distintas plantas hasta el jardín elevado del piso cuatro, donde se ubica una cafetería y servicios básicos. Los alumnos y profesores socializan, comen y descansan sobre una terraza jardín, entre sus lugares de estudio y trabajo. Todos los espacios de este sector son flexibles en su uso y permiten al alumnado interactuar en un ambiente público y académico.
© Juan Solano Ojasí
El volumen vertical está conformado por las oficinas y salas de reunión del profesorado de los Departamentos Académicos de Sociales y Economía. En sus cinco niveles se desarrolla una planta típica donde las oficinas se ubican en el perímetro y los espacios de uso común y circulaciones en el centro. Para conseguir introducir luz natural al centro de las plantas, en sus fachadas se ubican terrazas en doble altura dispuestas en cascada, generando espacios exteriores de descanso, socialización y contemplación.
© Juan Solano Ojasí
Ubicación de la obra
Dirección: Av. Universitaria 1801, San Miguel Lima 32, Perú
Enrique Santillana
Jonathan Warthon
Tandem arquitectura
Vidrio
Concreto
客服
消息
收藏
下载
最近

































