查看完整案例

收藏

下载
Околоземное пространство Юлия Тарабарина
Объект: Пассажирский терминал «Алексей Леонов» аэропорта в Кемерово
Адрес: Россия, Кемерово. ул. Аэропорт, 1
Архитектор: Андрей Асадов Александр Асадов
Мастерская: Архитектурное бюро ASADOV ГК «Спектрум»
Авторский коллектив:
АБ ASADOV: А. Р. Асадов, А. А. Асадов, Н. Кучеров, В. Шкуро, С. Соболев, К. Афанасьева
ГК СПЕКТРУМ: А. С. Волков, Е.Ф. Шурховецкая
ГАП: А. И. Сабуров
ГИП: И. Н. Макарова
Ведущие архитекторы: Н. Гусева, Т. С. Ванькова
Разработка интерьеров: М. С. Давыдов, И. О. Злобина, Л. Э. Некрасова
Разработчик буквенного архетипа: Карен Сапричян
Новый терминал аэропорта в Кемерово «Леонов» построен в «космические» сроки, несмотря на пандемию. Он стал одним из важных элементов стремительного развития города и зримо отразил свое посвящение первому выходу человека в открытый космос, как в интерьерах, так и на фасадах. Его главные «фишки»: эффект звездного неба и открытость.
Новый терминал аэропорта Кемерово, о проекте которого мы достаточно подробно рассказывали полтора года назад, построен за 10 месяцев и сдан на месяц раньше запланированного срока, к открытию II Женского форума в Кузбассе. Причем после того, как здание срочно открыли, его не закрыли на доработку, как это нередко случается, – новый аэропорт продолжал работать, доделали разве что важные, но не самые функциональные элементы, к примеру, мультимедийный музей. А выглядит терминал практически как на картинке – иными словами реализован он достаточно точно.
Пассажирский терминал аэропорта в Кемерово
Фотография © Андрей Асадов / предоставлена АБ ASADOV
Строительство нового терминала стало частью программы активного развития города к 300-летию угледобывающего региона Кузбасса (Кемерово, для тех, кто не знает – его столица). В городе строится крупный спортивный кластер, проектируется выставочно-музейный центр, на месте печально известного ТРЦ «Зимняя вишня» в 2019 открыли мемориальный «Парк Ангелов», реализованный по проекту американского ландшафтного архитектора Джона Вайдмана.
Для АБ ASADOV кемеровский терминал стал третьим аэропортом, реализованным по их концепции (в 2017 был построен терминал «Большое Савино» в Перми, в 2019 – «Гагарин» в Саратове), и в целом – шестнадцатой по счету концепцией здания аэровокзала. Проектирование аэропортов стало, до какой-то степени, специализацией этого известного московского бюро – высказывание архитекторов в рамках проекта «Идеи» на недавней Арх Москве было посвящено аэропортам, и там было хорошо видно, что проекты Асадовых почти равномерно распределены по всей стране. Большой опыт позволяет правильно рассчитывать результат.
Андрей Асадов, Архитектурное бюро ASADOV
Нам нравится проектировать аэропорты. С одной стороны, они достаточно прагматичны, планировки достаточно жестко предопределены функцией и в целом очень похожи. С другой стороны, каждый аэропорт – это ворота города, его задача – транслировать образ места, поэтому проекты насыщены не только функцией, но и смыслами, которые необходимо поймать и считать, раскрыть найденную тему в образе здания, чтобы оно было не просто терминалом, а «лицом» города или целого региона. Это и ответственная, и очень интересная задача.
Мы благодарны генпроектировщику, компании «Спектрум», за плодотворное партнерство и детальную проработку концепции. Со Спектрумом мы сотрудничаем не впервые: и «Гагарин» в Саратове, и аэропорт в Перми мы прорабатывали совместно. В случае же Кемерово коллеги выступили полноценными соавторами ряда фасадных и интерьерных решений – в частности, идея «звездного неба» была предложена архитекторами бюро Dialectica компании Спектрум.
Михаил Давыдов, руководитель АБ Dialectica Спектрум
Это не первый наш аэропорт, но каждый раз при создании нового терминала мы ищем образ, который бы наиболее точно отражал уникальность региона. В случае с аэропортом имени Алексея Леонова выбор в сторону тематики космоса был очевиден. Основной идеей стал диалог пассажиров с Космосом. Алексей Леонов был первым человеком, вышедшим в открытый космос, поэтому и пассажиры должны были себя ощущать как люди, находящиеся в открытом космосе. Нам удалось достигнуть этого благодаря имитации звездного неба, темной отделке интерьера, а также капсулы, подвешенный к потолку – модели корабля, из которого Алексей Леонов выходил в открытый космос. А интерьер прекрасно дополнил концепцию внешнего облика от бюро Асадова.
Алексей Сабуров, компания Спектрум
Мы достаточно давно работаем с проектами аэропортов, в том числе и в соавторстве с АБ ASADOV, с которыми сделали новые терминалы с Перми и Саратове. Должен сказать, что несмотря на сжатые сроки, работа с терминалом в Кемерово была достаточно легкой для нашей команды: опыт уже очень хорошо помогает. Сложность представляла, пожалуй, только необходимость заложить в проект все необходимое для функционирования терминала в качестве международного. Мы реализовали всю необходимую инфраструктуру, но эта часть пока не запущена, на международные рейсы работает старый терминал. Однако активировать наше здание в данном качестве можно будет в любой момент.
Кроме того, признаюсь, очень удачно, что аэропорт с самого начала получил название в честь космонавта Леонова, в отличие от саратовского терминала, переименованного в процессе проектирования и строительства… Думаю, с надписью, интегрированной в фасад, аэропорт уже вряд ли переименуют.
Сотрудничеством с бюро Асадовых мы, как всегда, очень довольны: они предлагают уникальную архитектуру, мы обеспечиваем качественную подготовку реализации.
Итак, аэропорт – ворота города, так что он должен был вписаться в амбициозную программу его развития. Определенные обязательства наложило и название – с некоторых пор у нас называют аэропорты именами знаменитых людей, и кому еще посвятить аэропорт, как не космонавту; ведь космонавты – они же и летчики тоже, да и тему полетов их истории раскрывают в наилучшем свете. Аэропорт Кемерово назван в честь Алексея Леонова, первого человека, вышедшего в открытый космос; он известен также и как художник, космос изображавший, что стало благодатной почвой для оформления интерьера, где появилась увеличенная копия одной из картин Леонова, медийный музей космонавтики и детально исполненная модель корабля «Восход-2», того самого, в масштабе 1 х 1.
Пассажирский терминал аэропорта в Кемерово
Фотография © Андрей Асадов / предоставлена АБ ASADOV
Так что главной «фишкой» здания стало «звездное небо» внутри. Множество диодных ламп связаны программной управления, которая позволяет настроить их мигание каким угодно образом – архитекторы, по понятным причинам, предпочитают спокойное несинхронное – программа же может при желании устроить почти любое световое шоу (установкой и программированием занималась турецкая компания Fiberli, архитекторы довольны результатом).
Пассажирский терминал аэропорта в Кемерово
Фотография © Андрей Асадов / предоставлена АБ ASADOV
Облако лампочек подвешено на тонких длинных тросах к потолку – венткострукции на нем не закрыты, а только окрашены, но расположены высоко, за группой точечных источников света едва видны и кажутся какой-то внеземной структурой. Мы таким образом получаем «рассредоточенный» вариант подвесного потолка – он и маскирует, и нет – такой прием в последние десятилетия был хорошо отработан в интерьерах «лофтовых» ресторанов, реже офисов, но в просторным вестибюле аэропорта он получает новое звучание и эффект, действительно чем-то сопоставимый с космическим. Мало кто из нас видел звезды открытого космоса, мы только временами читаем фантастику, где настойчиво говорится, что они очень яркие; отчасти впечатление можно сравнить с ночным августовским небом, внезапно изобильным звездами, ну и потом умножить на восемь, чтобы попробовать почувствовать, что ощутил Алексей Леонов, когда оказался на стенкой корабля. А теперь нам позволяет это ощутить еще и интерьер терминала, особенно ночью, когда лампочки висят в относительной темноте примерно как Млечный путь в темноте абсолютной.
Пассажирский терминал аэропорта в Кемерово
Фотография © Андрей Асадов / предоставлена АБ ASADOV
Пассажирский терминал аэропорта в Кемерово
Фотография © Андрей Асадов / предоставлена АБ ASADOV
Пассажирский терминал аэропорта в Кемерово
Фотография © Андрей Асадов / предоставлена АБ ASADOV
Пассажирский терминал аэропорта в Кемерово
Фотография © Андрей Асадов / предоставлена АБ ASADOV
Пассажирский терминал аэропорта в Кемерово
Фотография © Андрей Асадов / предоставлена АБ ASADOV
Пассажирский терминал аэропорта в Кемерово
Фотография © Андрей Асадов / предоставлена АБ ASADOV
Тем более что лампочки-«звезды» отражаются как во внешних стеклах, намекая на перспективу бесконечности, так и в стемалитовых панелях интерьера, которые призваны визуально расширить пространство и с успехом справляются с поставленной задачей. Ощущения полета добавляет и длинный эскалатор, который поднимает путешественников на высоту сразу более 10 метров – без привычных зигзагов – и прочерчивает пространство пологой стрелой, в которой можно увидеть метафору взлета, пусть не ракетного, но авиационного.
Удивительно, каким небольшим кажется на фоне стрелы-эскалатора корабль «Восток-2», смоделированный, напомню, в натуральную величину.
Пассажирский терминал аэропорта в Кемерово
Фотография © Андрей Асадов / предоставлена АБ ASADOV
Кстати, идея музея в аэропорту очень хороша, особенно когда надо ждать самолет с детьми. А «звездное небо», да еще и с кораблем, хорошо его продолжает, как будто музей сам «вышел в интерьер», как космонавт в космос.
Так что и оранжевые столики кафе внутри при должной игре воображения могут показаться частью какого-то межгалактического питстопа.
Пассажирский терминал аэропорта в Кемерово
Фотография © Андрей Асадов / предоставлена АБ ASADOV
В целом кемеровский аэропорт достаточно точно выражает идею «открытого пространства», интересно только то, что звездное небо – внутри, как экспонат в стеклянной витрине. Впрочем, его видно и снаружи, опять же, особенно ночью, так что оно отлично «экспонировано» – практически как продолжение мини-музея внутри аэропорта.
Пассажирский терминал аэропорта в Кемерово
Фотография © Андрей Асадов / предоставлена АБ ASADOV
Форма здания всячески интерпретирует идею открытости. Главный фасад превращен в стеклянную витрину, кровля решена в виде металлического пласта (облицовочный металл – Sevalcon Aluminium Blanc, монтажные работы Riverclack) с ощутимой толщиной и ромбическими прорезями зенитных фонарей, – изящным изгибом она спускается перед входом к земле, которой касается двумя точками, образуя буквицу Л в составе крупной надписи Леонов. Так перед входом возникает глубокий козырек и своего рода «галерея» из букв, до предела насыщенная смыслом. Само название, если смотреть из галереи, появляется дважды: в реальности и в отражении.
Пассажирский терминал аэропорта в Кемерово
Фотография © Андрей Асадов / предоставлена АБ ASADOV
Пассажирский терминал аэропорта в Кемерово
Фотография © Андрей Асадов / предоставлена АБ ASADOV
Пассажирский терминал аэропорта в Кемерово
Фотография © Андрей Асадов / предоставлена АБ ASADOV
Можно спорить о том, хорошо ли прочитывается буква Л, но буквица – она и в готических манускриптах читается не сразу, потому что намеренно отличается, однако надо признать, что редко когда заголовок был так органично и в то же время заметно вписан в здание, здесь он существенно отличается от привычных нам «нашлепок над карнизом», которые управляющая компания добавляет, когда архитекторы уже ушли или на время отвернулись. В данном случае название спустилось «с небес на землю» и стало заметным, если не сказать главным, образным элементом. Превратилось в скульптуру. В часть козырька-«крыла», столь характерного для асадовских аэропортов.
Пассажирский терминал аэропорта в Кемерово
Фотография © Андрей Асадов / предоставлена АБ ASADOV
Пассажирский терминал аэропорта в Кемерово
Фотография © Андрей Асадов / предоставлена АБ ASADOV
Здесь хорошо видны и отражение, и «звезды», и даже корабль «Восток-2». Пассажирский терминал аэропорта в Кемерово
Фотография © Андрей Асадов / предоставлена АБ ASADOV
Отчасти – опять же при хорошем воображении – эта скульптура может напомнить осколок гигантской космической станции, упавший на землю и задержанный каким-нибудь фантастическим встроенным в него силовым полем. Тут и деконструкция, и намек на нечто намного более крупное, часть гигантского целого. Все же аэропорты можно понимать как фрагменты-осколки всей системы воздухоплавания в целом.
Козырек и кровля «лежат» на стекле, а стекло приобретает сходство с силовым экраном – это вещь пока из области фантастики, но ее образ очень популярен в проектах, связанных с остро-современными технологиями (вспомним хотя бы штаб-квартиру Apple, она многих поразила). Вот это-то впечатление здесь и воспроизводится, что уместно для аэропорта, тем более космического. Особенно хорошо это заметно на северном углу, скругленном, моллированном и прикрытом тонкими полосками гнутых горизонтальных ламелей.
Пассажирский терминал аэропорта в Кемерово
Фотография © Андрей Асадов / предоставлена АБ ASADOV
Все это довольно эффектно: стекло фасадов, свечение «звезд», серебристый металл – и смотрится на фоне прежних, достаточно прагматичных, зданий кемеровского аэропорта действительно как фрагмент космического объекта, некий «пикник на обочине». Всё это притом что терминал сравнительно небольшой – около 11 000 м2. Для сравнения терминал В в Шереметьево, как новый терминал Пулково в 10 раз больше; «Новое Савино» в Перми, спроектированный Асадовыми, – в нем даже можно увидеть похожее крыло, похожее скругление и ламели – 29 000 м2. Кроме того, что терминал невелик и построен в рекордные сроки, он еще и решен достаточно экономно с сохранением всех эффектов. Сэкономить, в частности, удалось на подшивном потолке – помогли лампочки, стемалит в интерьерах также позволил создать широкое эффектное пространство при не слишком больших затратах. Поэтому и скругленный угол только один, – однако правильнее, вероятно, было бы говорить о разумном балансе расходов, скорости реализации и эффекта космического околоземного пространства, который в итоге удалось получить.
Разрез 1-1. Пассажирский терминал аэропорта в Кемерово © ГК Спектрум
План кровли. Пассажирский терминал аэропорта в Кемерово © ГК Спектрум
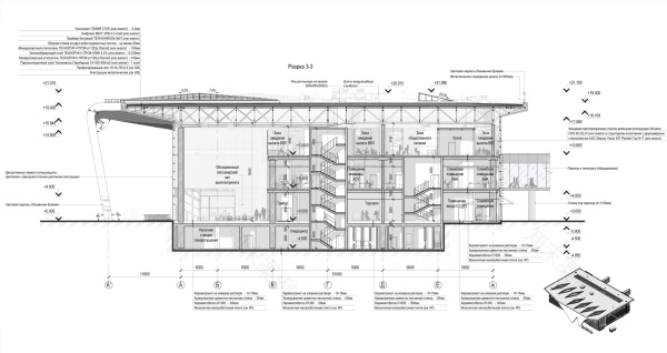
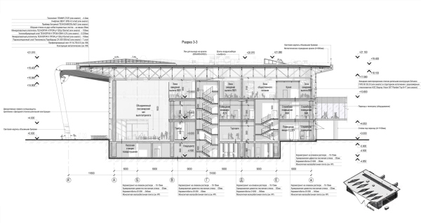
Разрез 3-3. Пассажирский терминал аэропорта в Кемерово © ГК Спектрум
Узлы. Пассажирский терминал аэропорта в Кемерово © ГК Спектрум
Разрез 2-2. Пассажирский терминал аэропорта в Кемерово © ГК Спектрум
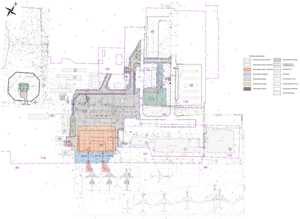
Генплан. Пассажирский терминал аэропорта в Кемерово © ГК Спектрум
План на отметке 5,400. Пассажирский терминал аэропорта в Кемерово © ГК Спектрум
План на уровне 10,800. Пассажирский терминал аэропорта в Кемерово
© ГК Спектрум
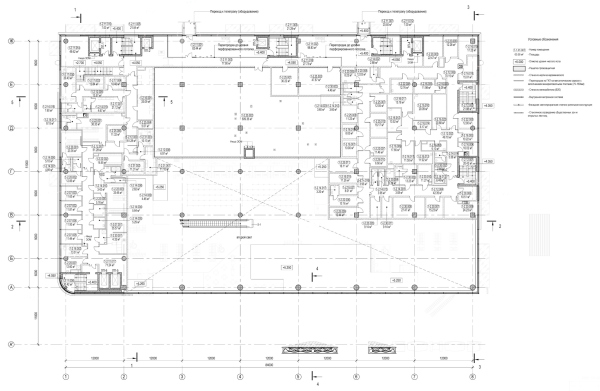
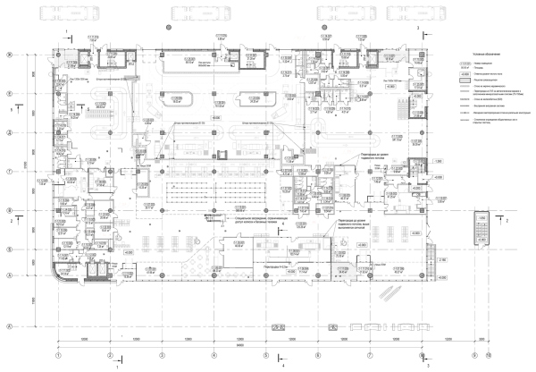
План на уровне 0,000. Пассажирский терминал аэропорта в Кемерово © ГК Спектрум
客服
消息
收藏
下载
最近






























