查看完整案例

收藏

下载
Five storeys in the back yard
Rooftop Addition in Paris by Java Architecture
redensification
single-family house
wood
renovation
plaster
Residential tower in Paris, © Caroline Dethier
On the foundation walls of a dilapidated previous building, Java Architecture have erected a five-storey tower house using wood techniques in the 15th arrondissement of Paris. “The story began when we received a strange email asking for our help at the beginning of autumn 2017”, the architects recall. “The author explained to us that he and his wife had just bought a house in ruins situated on the back of a Parisian courtyard and that they wanted to transform it into their family house."
© Caroline Dethier
“After a quick chat on the phone we realized that this family had just bought a pile of old stone without knowing if they would be able or allowed to make something out of it. For us the client was completely crazy or a genius; without knowing the correct answer we decided to take part in this adventure which was going to last for a few years and hopefully help a middle class family to stay in Paris.”
The architects’ prediction came true: the path to completion was long and stony, beset with objections from the neighbours, an interim rejection of building approval and, of course, the client family’s limited budget. The area of the two-storey predecessor building was just 4 x 6 m.
© Caroline Dethier
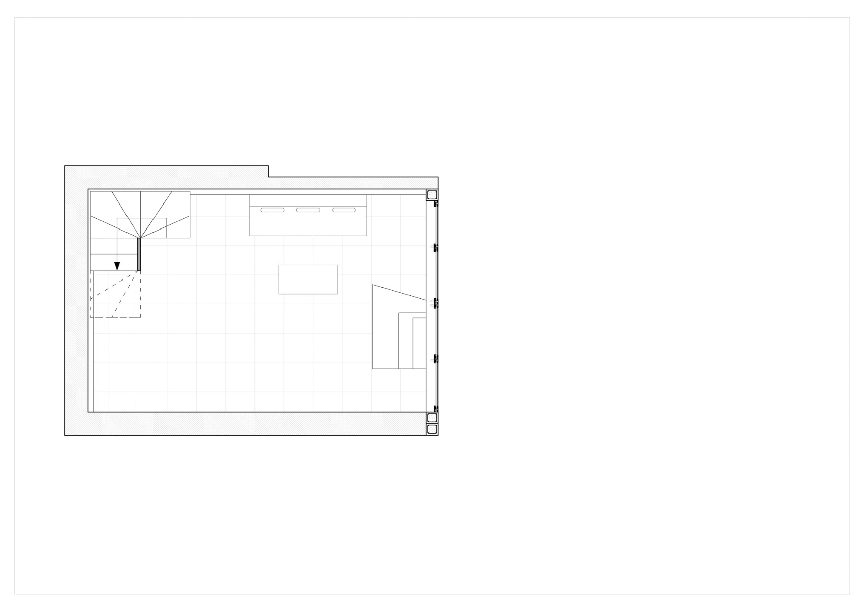
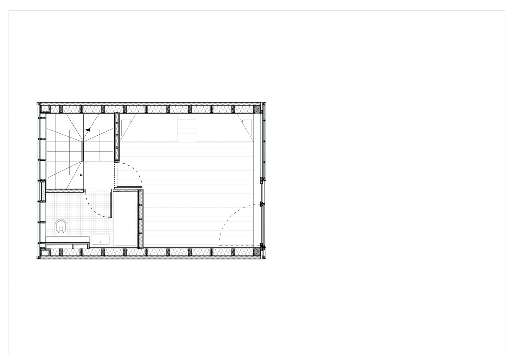
In order to be able to accommodate the family of four there, the architects built five storeys upwards. The lower three levels are home to bedrooms; the third upper level and the greenhouse-like attic storey serve the family as living space. The basement can be used as a hobby room and a space for guests. Apart from the basement and the dry-stone walls that surround the house on three sides of the ground floor, very little remains of the old structure. However, this “very little” was not able to bear heavy loads. Therefore, the architects decided in favour of a wooden construction.
© Caroline Dethier
© Caroline Dethier
The exterior walls include a thermal insulation system with grey plaster. Some feature windows of clear glass and folding shutters of wood, while in places there is a pellucid covering of multi-skin polycarbonate panels which allow a hazy view of life inside the home to shine through. Above all, it is in the stairway – which also functions as the backbone of the structure – that the wooden skeleton appears in all its glory as a design element.
Architecture: JAVA Architecture
Client: private
Location: Paris (FR)
Structural engineering: RAAI
客服
消息
收藏
下载
最近




































