查看完整案例

收藏

下载
戈者设计
微妙木香美丽风景传统韩屋改造的酒店设计
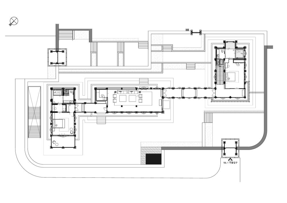
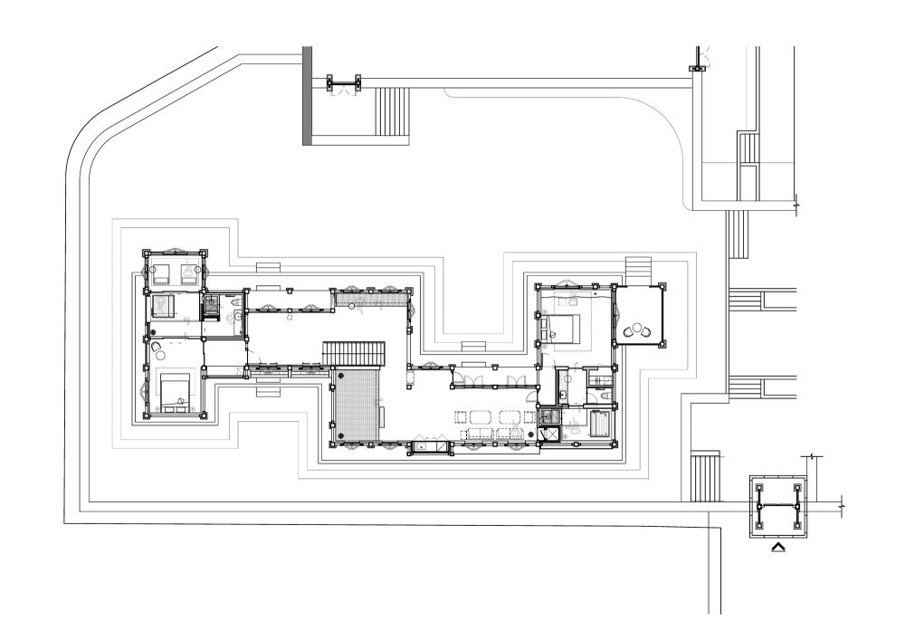
最近竣工的永月钟泽是一家传统韩屋酒店设计,总建筑面积为 16,332 平方米,由 78 栋建筑、137 间客房(35 间独立客房、102 间排屋)、文化展示厅、室外宴会厅、研讨会室、水疗中心和运动设施组成。这是韩屋文物馆首个完工的私人空间。为了使用最优质的木材,我们开发了木材干燥设备。我们使用开发的微波方法对木材进行干燥,将木材的含水量降至最高 15%。
为了将韩屋的重要元素–屏风保留在室内,我们使用了来自欧洲的最高品质的透明防虫网,以制造没有防虫网的假象。虽然结构是韩屋,但为了提高便利性,还使用了隔热材料等尖端材料。当客人进入韩屋房间时,会感受到一种在其他空间从未体验过的微妙木香。
这就是主人的想法,他深知其中的价值,因此在看不见的地方投入了大量资金,让客人感受到自然的木香,而不是使用人工的扩香器。这就是精心设计的结果。为了让来到这里的客人能够舒适地休息,房间的基本布局是私密的,床的床垫也是最优质的,这里的夜晚无论从哪里看都充满了美丽的风景,让您能够记住在这里度过的夜晚。
Yeongwol Jongtaek 每栋建筑的底层由两间客房和一间休息室组成,休息室采用韩式木质结构。为了保证客房的私密性,休息室位于中央,并尽可能保持客房之间的物理距离。每栋建筑的布置都考虑到了周围的景色。我们试图通过每栋建筑不同的布局和不同的建筑高度来完整地捕捉风景。地面内部使用织物、木材和由尖端物联网控制的照明系统,为顾客提供温馨舒适的环境,并通过传感器隐形操作各种辅助功能,确保顾客在使用客房时的便利性。
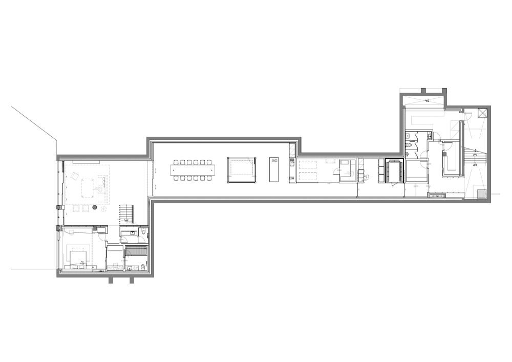
地下室有一间客房、起居室、厨房、干桑拿、书房、媒体室和酒窖。地下室起居室的设计可以灵活应对各种活动,包括厨房系统家具在内的各种空间元素都是经过设计和制作的。传统材料和工艺技术,如韩国纸、韩纸、Nakhwa 和 Nakdong 等,被重新组合,用于现代用途,并应用于整个空间,创造出丰富的美感。外部公共空间包括一个可举办各种活动的露台花园和一个带凉亭的无边泳池。
目前正在建设中的仙乭庭/5栋,其设计已在本部完成,在这里您可以欣赏到与刚刚竣工的永月钟泽不同的景色,在自然风中畅游,还可以在室外水上空间享受宴会。它已升级,魅力各异,将于明年推出。我们期待着将自己打造成为游客提供各种表演和文化活动、舒适的休息和真实价值的韩屋遗产屋。
微妙木香美丽风景传统韩屋改造的酒店设计
客服
消息
收藏
下载
最近

















