查看完整案例

收藏

下载
Hồ sơ thiết kế Biệt thự lâu đài 3 Tầng Tân cổ điển diện tích 10x22m - 0222 Full cad và 3dsmax
Upload:
Trần
Trọng Nhân
Ngày đăng:
04-10-2021
Lượt tải:
35
Lượt xem:
11748
biệt thự lâu đài 3dmax 2016
Hồ sơ thiết kế Biệt thự lâu đài 3 Tầng Tân cổ điển diện tích 10x22m - 0222 Full cad và 3dsmax
Hồ sơ thiết kế này rất đầy đủ và chi tiết, các bạn có thể download về tham khảo sử dụng
1_ Toàn bộ hồ sơ này với đầy đủ các chi tiết của Hạng mục kiến trúc bao gồm:
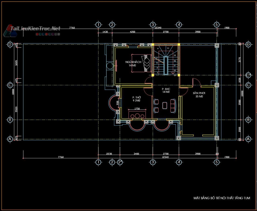
+ Mặt bằng bố trí nội thất các tầng
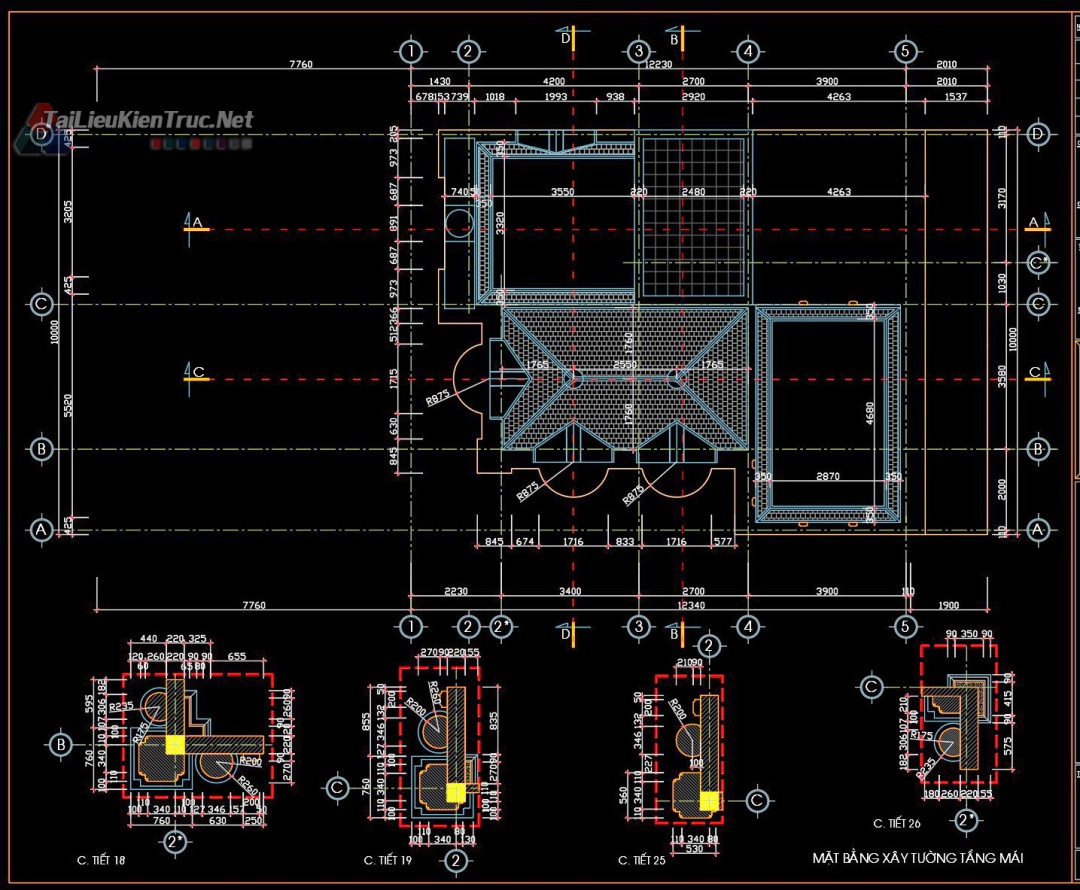
+ Mặt bằng xây tường các tầng
+ Mặt đứng công trình
+ Mặt cắt công trình
+ Chi tiết thang
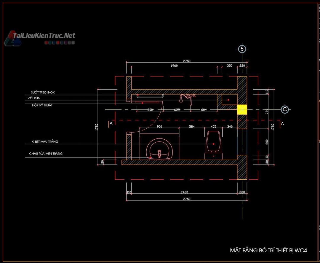
+ Chi tiết vệ sinh
+ Chi tiết mặt đứng công trình
+ Chi tiết ban công lan can
+ Chi tiết cửa đi và cửa sổ
2_Hồ sơ thiết kế kết cấu
3_Hồ sơ thiết kế điện nước
4_File 3dsmax biệt thự lâu đài tân cổ điển full với dung lượng hơn 1GB
Hồ sơ này được trình bày đầy đủ trong 1 file autocad duy nhất, các bạn có thể tải về tham khảo và sử dụng theo link bên trên nhé
Xem toàn bộ ảnh demo có trong hồ sơ thiết kế này ở bên dưới
Phối cảnh
Bản vẽ chính phần kiến trúc
Các chi tiết kiến trúc Tân cổ điển
Bản vẽ chi tiết cầu thang Tân cổ điển
Bản vẽ chi tiết vệ sinh
Bản vẽ lát sàn, chi tiết trần, bố trí đèn
Ngoài ra bộ hồ sơ còn bao gồm các bản vẽ phần kết cấu và điện nước, đầy đủ chi tiết
Bạn cũng có thể xem thêm
Hồ sơ thiết kế biệt thự
khác của chúng tôi để tìm kiếm file thiết kế phù hợp với nhu cầu của mình nhé.
客服
消息
收藏
下载
最近





















































