查看完整案例

收藏

下载
戈者设计
拥抱沙漠景观巧妙平面布局的别墅设计
奥克托普别墅设计坐落在一片布满沙棘、苦草和刺柏的地块上,这里是二十年前因野火而失去的森林。在远处可以看到松树林,因为高原沙漠的干旱土地过渡到了茂盛的植被。我们在本德,一个小城市(在俄勒冈州波特兰东南257公里处)。这是一个深受户外爱好者欢迎的地方,它位于小径、德舒特河和镜池、附近的卡斯卡特湖、以及学士山滑雪场和卡斯卡特山的滑雪坡的近旁。该地段可以看到三姐妹山的白雪皑皑的山峰和德舒特河国家森林的全景。
客户和他们的简介。多年来,客户Mike和Katherine一直考虑搬离他们在旧金山的家–也是由Mork-Ulnes在2011年设计的–以便让他们年幼的孩子享受更多以户外为中心的生活。对于那些似乎从旧金山和美国其他大城市出走的家庭来说,这并不是一个孤立的选择,这种迁移在大流行病之前就已经开始了,现在正达到高峰。
这对夫妇最初来自英国和德克萨斯州,在技术上很先进。2016年左右,他们在俄勒冈州本德市购买了一块土地,被当地的气候所吸引–典型的高原沙漠,夏季干旱,冬季多雪,夜晚凉爽,白天晴朗–以及湖泊、山脉、小径和沙漠地形等多样化的地形,可以进行丰富的户外活动。
客户对他们的新家有一些要求,特别是希望它是环保的,并在拥抱沙漠景观的同时提供高水平的灵活性。他们需要两间卧室供自己和孩子使用,两间客房供常客和国外的家人使用;此外,为了在紧张的预算下优化面积,他们需要灵活的空间来满足灵活的用途–客房/办公室、外部庭院/户外游戏室、车库/内部游戏室。
施工方法。交叉层积木建筑是一种低废物和高效率的建筑方法,所有材料都在现场外预先切割,使建筑废物在工厂里得到负责任的回收。Octothorpe房屋的所有CLT板都是由可持续收获的SFI/COC种植的木材制成的,在蒙大拿州的一家工厂使用低VOC粘合剂进行胶合和层压。 由于其CLT结构,该项目预计在其墙内有25吨的碳体现,并预计避免了15公吨的温室气体排放。
房子的内墙几乎都是由松木、云杉和冷杉制成的交叉层压板,并进行了自然油饰处理(除了卫生间的潮湿区域采用了瓷砖),从而获得了很好的空气和声学品质。Shou Sugi Ban–一种烧过的雪松木,防水、防腐、防虫、防火–被用在外部,随着时间的推移,几乎不需要维护。
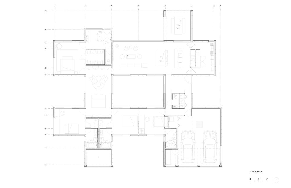
概念。这个单层住宅占地3340平方英尺(310平方米),揭示了一个巧妙的平面布局。四个相交的棚顶酒吧将平面划分为公共和私人区域,建筑中心有一个完全封闭的庭院,周边有七个半封闭的庭院,将光线和空气引入每个房间。在平面上,房子是围绕着一个简单的矩形网格组织的,它决定了房间和院子的大小。这里没有走廊,而是一个流动的房间序列,彼此相连。居民可以在中央庭院周围移动,或者在门打开时穿过庭院。
纵横交错的规划也有利于交叉通风的空气流动,为炎热的夏日提供缓解。此外,它还整合了可操作的隐蔽式遮阳板,以保护朝南的房间免受俄勒冈州高沙漠阳光的强烈照射。室内设计的灵感来自于唐纳德-贾德在德克萨斯州玛法市的Chinati基金会,尘土飞扬的色调和雕塑般的造型塑造了这个空间。调色板的目的是为了吸引自然的沙漠景观。几何形状的简单羊毛和毛毡家具与天然皮革和木材混合。
Mork-Ulnes联系了经常合作的木制家具艺术家Yvonne Mouser,为主要的生活空间设计了一个独特的咖啡桌,其灵感来自于从客厅沙发上可以看到的 “三姐妹 “火山山峰。她设计的桌子是由三块用链锯锯开的花旗松木块组成,用喷灯完成,穿透灰色的玻璃桌面,就像地质断面的层次。
布局。房子围绕着一系列充满光亮的空间–入口、厨房和起居室、卧室和休息区–这些空间都提供了精心安排的一瞥,可以看到中央庭院和充足的天空和周围的沙漠,在寒冷的月份,沙漠被雪覆盖。非典型的空间组织创造了一种与周围环境的愉快联系。岩石构造、本地灌木和灌木丛围绕着住宅,进一步将其与崎岖的场地融为一体。
受周围景观的色调和质地的启发,房子与周围高沙漠的柔和色调相呼应。在外面,寿杉板的壁板呈现出柔和的灰白色。内部空间几乎完全是同质的,光滑的交叉层压板由松木、云杉和冷杉制成,创造了一种亲密和舒适的感觉。这座房子最引人注目的,但也是最短暂的品质是非物质的自由感。
中央和周边的庭院框住了天空的景色,同时为室内带来充足的自然光,并提供最佳的通风。在春季、夏季和秋季,生活空间扩展到庭院中。当推拉门打开时,房子是完全多孔的,充满了从外面传来的不间断的气味和声音的流动。在冬季,被动式供暖通过落地窗进行,虽然与周围环境隔绝,但住宅在内部却增强了户外的感觉。
客服
消息
收藏
下载
最近




















