查看完整案例

收藏

下载
Ramsgate Library, Kent
From Catastrophic Fire to a Modern Marvel
On August 13, 2004, a catastrophic fire devastated Ramsgate Library, leaving only its external walls standing. The fire destroyed the entire contents of the historic building, which was a beloved community hub. Despite this tragedy, the community and Kent County Council came together to restore and rebuild the library, culminating in its grand reopening in February 2009.
Temporary Measures and Reconstruction Planning
Following the fire, a temporary mobile library was set up in the Waitrose car park on Queen Street to ensure continued access to library services. This solution, operational from August 19th, 2004, lasted until the library reopened.
Ramsgate Library, a Grade II listed building within a Conservation Area, held immense civic and historical significance. Kent County Council committed to preserving its legacy by constructing a new library within the surviving historic façades. The design aimed to blend modern functionality with the building’s historic character.
Architectural Features and Restoration Efforts
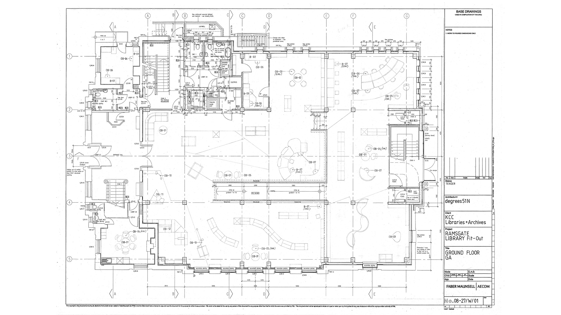
The restored library reflects a harmonious mix of traditional and contemporary architecture. The surviving north, west, and east facades were meticulously restored, including the reinstallation of original timber windows. Externally, the building features brickwork with stone detailing, slate roofs, a clocktower with a copper cupola, and a weather vane.
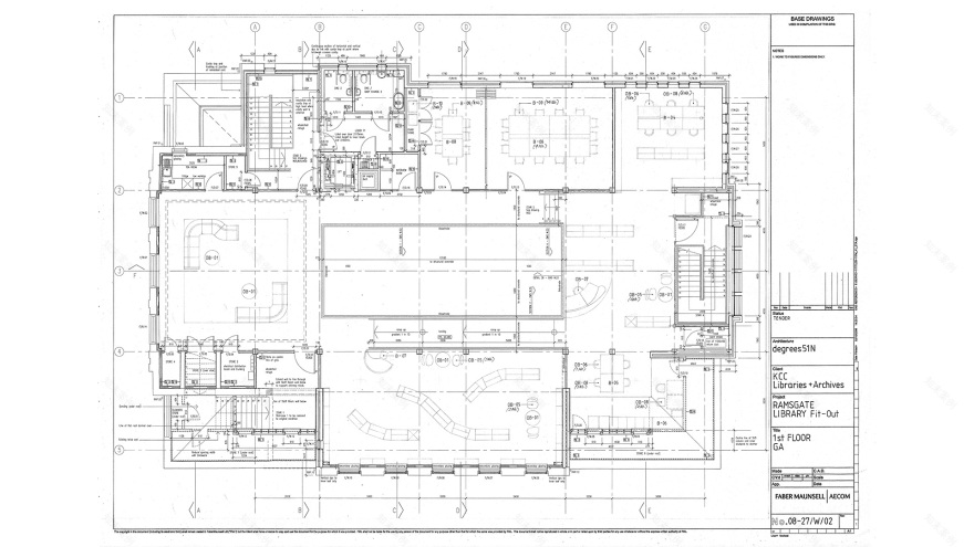
Internally, the new structure was built using reinforced concrete and steel framing. The library’s original 900m² floor area, primarily on the ground floor, was expanded to 1,250m² across two floors. A central atrium and a mezzanine on the upper floor provide a bright and open atmosphere. The basement houses mechanical and electrical plant rooms, ensuring modern operational efficiency.
Community Consultation and Design Philosophy
The library’s redevelopment was shaped by consultations with the local community, interest groups, and authorities such as English Heritage, Kent County Council, and Thanet District Council. Key objectives included:
The design maintained the building’s historic setting and restored key features such as the north and west elevations, dormer windows, clocktower, and entrance hall.
A modern interior design within the shell of the original listed building aimed to create a light and spacious environment. The contrast between the historic and modern elements provides dramatic visual appeal.
The increased floor space and new escape stairs ensure all areas are fully accessible and usable.
The building was designed to outperform its predecessor in terms of energy efficiency and sustainability.
A Unified Architectural Vision
The project’s success lies in its seamless integration of historic and modern architectural styles. The open-plan design, vibrant colours, and high levels of natural light create a welcoming environment. The library’s expanded space allows for greater functionality and improved visibility for staff and visitors alike.
A Lasting Legacy
Today, Ramsgate Library stands as a testament to resilience and innovation. The building’s sympathetic combination of historic and modern elements has ensured its place as a cherished community asset. Over a decade after its reopening, it continues to serve as an inspiring example of how architecture can honour the past while embracing the future.
Ramsgate Library, Kent
Find out more about what's going at Ramsgate Library in Kent
客服
消息
收藏
下载
最近



















