查看完整案例

收藏

下载
Эффективность в объеме
Объект: Концепция дизайна малогабаритных квартир
Адрес: Россия, Москва.
Мастерская: Arch group
Авторский коллектив: Архитекторы: Горяинов А., Крымов М., Кочук И., Боксберг К., Ивлиев М., Нецветаев А., Зубков А., Гриднева Л., Лапин И.
Концепция модульного трансформируемого интерьера для малогабаритных квартир.
Концепция дизайна малогабаритных квартир. Фотографии © Arch group
Подумать только, ещё не так давно клиенты мечтали о просторных гостиных, столовых, больших окнах в пол и высоких потолках, а теперь многие покупатели и арендаторы вновь задумываются о рациональном использовании небольших площадей. Архитекторы бюро Arch group в ответ на эти тенденции рынка, а также – следуя пожеланиям заказчика большого многоквартирного дома «создать уникальный бюджетный продукт, которого ещё не было на рынке недвижимости» – разработали проект типового, но трансформируемого интерьера для миниквартир. Он рассчитан на квартиры площадью от 19 до 36 м2.
Самая маленькая квартира из рассмотренных архитекторами – девятнадцатиметровая студия, похожа на гостиничный номер с душевым лотком, встроенным гардеробом и кухней, условно отделенной от спального места раздвижной перегородкой. Небольшое пространство сковано ощущением замкнутости, и архитекторы сделали всё возможное для того, чтобы избавить будущего жильца от этой стеснительной парадигмы. А именно – рассказывает Алексей Горяинов, – авторы предложили покрыть все стены специальными панелями с пазами для крепления подвесной мебели. Перефразируя классика, скажем, что здесь можно подвесить к стене что угодно и где угодно, а также передвинуть и перегруппировать – когда захочется, и даже не используя дрель, поскольку стены уже готовы для любых перестановок.
Концепция дизайна малогабаритных квартир. Фотографии © Arch group
Концепция дизайна малогабаритных квартир. Фотографии © Arch group
Концепция дизайна малогабаритных квартир. Фотографии © Arch group
Концепция дизайна малогабаритных квартир. Фотографии © Arch group
Концепция дизайна малогабаритных квартир. Фотографии © Arch group
Концепция дизайна малогабаритных квартир. Фотографии © Arch group
Концепция дизайна малогабаритных квартир. Фотографии © Arch group
Концепция дизайна малогабаритных квартир. Фотографии © Arch group
Концепция дизайна малогабаритных квартир. Фотографии © Arch group
Концепция дизайна малогабаритных квартир. Фотографии © Arch group
Концепция дизайна малогабаритных квартир. Варианты функциональных блоков © Arch group
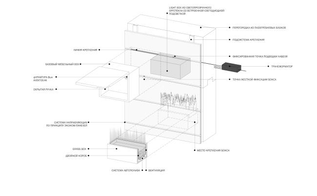
Концепция дизайна малогабаритных квартир. Схема навесной модульной системы © Arch group
Архитекторы предлагают богатый выбор стеновых панелей различных цветов и фактур. Мебель, которая спроектирована специально для данного решения, тоже модульна и весьма разнообразна – от традиционной деревянной до жизнерадостной разноцветной и серебристой в духе хай-тека. Для того, чтобы покупатель мог самостоятельно определиться с выбором, создан сайт с программой-конфигуратором. После определения цветовой гаммы, стилистики и состава мебели покупателю останется только оформить заказ и дождаться поставки. Если же в процессе эксплуатации понадобится что-либо дополнить, заменить или освежить, тот же сайт будет к услугам покупателя: продается не только мебель, но и ее элементы.
Помимо стационарной корпусной мебели архитекторы разработали целую серию разноразмерных модулей, способных легко комбинироваться друг с другом: от обычной книжной полки до короба с электрическими розетками, ящика для ключей или домика для кошки. Много складных элементов: и главное спальное место – диван, и стол, и стулья на кухне, где однако помещаются холодильник со стиральной машиной. В антресоли умещается вторая кровать, куда можно, сдвинув её немного вниз, забраться по приставной лестнице. В шкафах уместились гладильная доска и сушилка, а откидной рабочий стол у окна в пассивном положении прикрывает решетку радиатора.
Концепция дизайна малогабаритных квартир. Варианты размещения мебельных модулей © Arch group
Концепция дизайна малогабаритных квартир. Варианты размещения мебельных модулей © Arch group
Концепция дизайна малогабаритных квартир. Схема устройства опускающейся антресоли-кровати © Arch group
Концепция дизайна малогабаритных квартир. Схема откидного стола-подоконника © Arch group
Концепция дизайна малогабаритных квартир. Варианты мебельных единиц © Arch group
Все рационально и футуристично – в духе Моисея Гинзбурга, космического корабля или вот, «Пятого элемента». Даже программа освещения – особенная. За глянцевой поверхностью натяжного потолка расположены светодиодные матрицы, которые складываются в эффектный и динамичный орнамент. Подсвеченный изнутри, такой потолок кажется выше, светлее, и может показаться даже, что выше, за световым рисунком есть что-то ещё, большое и светлое. Минималистичные лайт-боксы из матового стекла входят в состав той же модульной системы: их так же, как и мебель, можно подвесить на стену где угодно. Таким же образом крепятся электронные часы, кадки с цветами и рамки для фотографий.
На тот случай, если будущие жильцы не будут готовы самостоятельно придумывать интерьер, авторы предложили несколько готовых решений. К примеру, создан «минималистичный» вариант, где преобладают сдержанные цвета и поверхности. Другой вариант – веселый разноцветный, порадует обилием ярких красок. Дизайн, включающий металлические элементы, мог бы приглянуться жильцу с «мужским характером». Универсально-традиционным станет выбор в пользу так называемого «экологичного» дизайна, где доминирует дерево. Но даже готовое решение можно будет дополнить чем-то другим – насколько хватит фантазии.
Концепция дизайна малогабаритных квартир. Развертка варианта «Минимализм» © Arch group
Концепция дизайна малогабаритных квартир. Развертка варианта «Разноцветный» © Arch group
Концепция дизайна малогабаритных квартир. Развертка варианта «Эко» © Arch group
Концепция дизайна малогабаритных квартир. Проект в синих тонах © Arch group
Концепция дизайна малогабаритных квартир. Проект в синих тонах © Arch group
Концепция дизайна малогабаритных квартир. Проект © Arch group
Концепция дизайна малогабаритных квартир. Проект © Arch group
Концепция дизайна малогабаритных квартир. Вариант «Трава» © Arch group
Концепция дизайна малогабаритных квартир. Вариант «Трава» © Arch group
Данное решение, основанное, по словам архитекторов, на «балансе между внешним видом и экономией», предназначено прежде всего для молодежи: студентов, начинающих специалистов, молодых семейных пар и иногородних сотрудников компаний, помогая им средствами яркого и продуманного в деталях дизайна компенсировать вынужденную нехватку жилплощади. «Конечно, в мировой архитектуре есть масса примеров подобных решений с вариантами типовой отделки, раскладной или трансформируемой мебелью, раздвижными перегородками и прочим, – поясняет один из авторов проекта Алексей Горяинов. – Однако такие решения как правило – очень дорогостоящие, для них требуется отдельное производство. Нам же необходимо было придумать что-то оригинальное для жилья эконом-класса, причем сделать это эффектно, быстро и уникально. Нам удалось найти мебельную компанию Bauflex, которая согласилась выполнить наш заказ, учитывая его большой объем, по достаточно бюджетным расценкам». Сейчас уже реализованы четыре прототипа квартир, включая самую маленькую квартиру-студию. Пока они функционируют как шоу-румы.
Концепция дизайна малогабаритных квартир. Проект в синих тонах © Arch group
Концепция дизайна малогабаритных квартир. Проект в синих тонах © Arch group
Концепция дизайна малогабаритных квартир. Вариант «Тетрис» © Arch group
Концепция дизайна малогабаритных квартир. Вариант «Тетрис» © Arch group
客服
消息
收藏
下载
最近
































