查看完整案例

收藏

下载
LA VIEJA
Montebello, Cali, Colombia
bamboo school constructed with the students and the community.
Category: education
Phase: under construction
Design: Andrés Bäppler & Greta Tresserra
“La Vieja” (the Old one) is the biggest building of the school Colegio de las Aguas de Montebello. This project will be one of the most important constructions totally made out of bamboo from Latin America, and hopefully may demonstrate the potential of bamboo and contribute to the revaluation of this noble material.
Consist of 1000m² in three stories and 12m height, this impressive construction is being raised by the students of the Guadua and Carpentry Talleres (workshops), as well as by the community members and many international volunteers. It’s being constructed with considerations to social and environmental sustainability, thus serves as a perfect model for the follow ups.
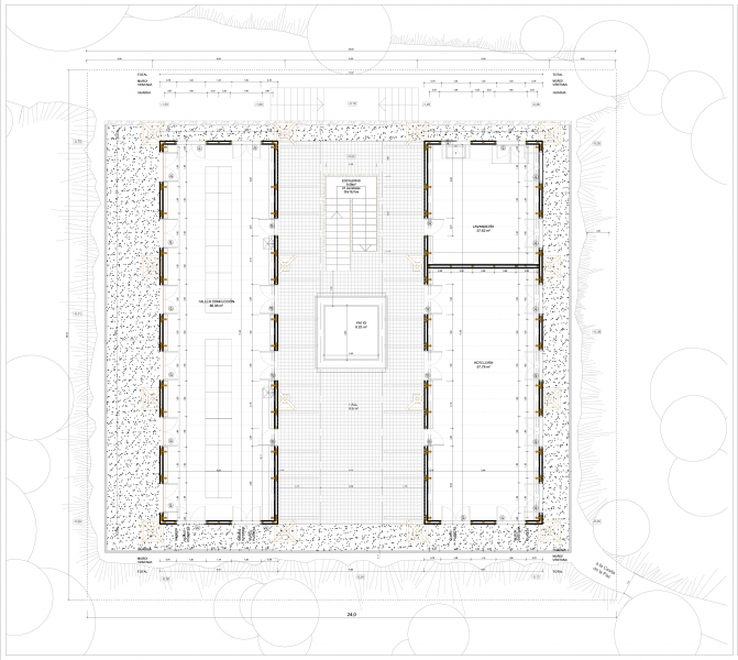
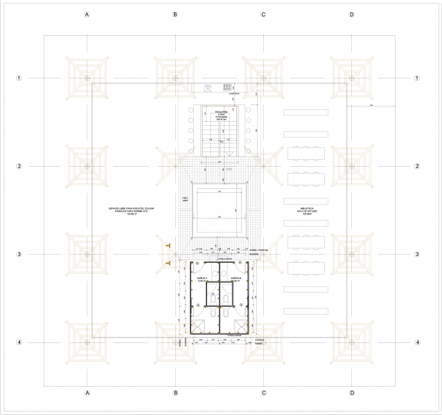
The building provides educational spaces, classrooms, offices and the administration and bathrooms. The warehouse will be found on the ground & first floor, while the second floor will consist of the library and a big flexible space for various uses. Each level has a surface of about 330m² and is organized around a central atrium.
The construction of “La Vieja” will contribute greatly to the Colegio de las Aguas, as well as for the whole community, as it will significantly increase the educational facilities: more than 100 children and adolescents will finally have access to education, providing education to various income levels, contributing to the local social and economic development.
To be able to complete the entire school, Fundación Escuela para la Vida (School for Life) has launched a crowdfunding campaign on indiegogo to raise some funds. By making a donation, no matter how small, it will be a great help for the realization of this school that will provides hundreds of children an education for the years to come!
bamboo structure
sketch up
model
structure
column
detail
team
window
upper level
on site
roof
roof
roof
raising columns
classroom1
upper level
working
fassade
cultural and social context
The suburban district of Montebello is situated in the rural area which lies north of Cali, the third city in Colombia. It is a sector which was originally formed by illegal settlements that have one by one become legalized, yet with the absence of governmental control. The region is approximately 412,6 ha, has a total of 2.500 dwellings and thereby a density of 5,6 dwellings per hectare. The total population counts approximately 15.000 inhabitants.
The demographic transition in Montebello has accelerated due to the constant arrival of refugees of conflict who see living in Montebello as an advantage, as it has a lower cost of living than the city. However, the arrival of new families and their dependency of Cali have led to a loss of identity as well as the sense of belonging of the inhabitants. Thus making it difficult for them to commit to the search for solutions of urgent problems such as the lack of public services (water, health), the difficulty of accessing educational institutions, the severe security situation and the absence of cultural and sportive programs.
The lack of education coming along with the difficulties to access schools, creates the fundamental problems of the district of Montebello: the insufficient infrastructure that caused high level of illiteracy and high number of uneducated people; the under-developed technology caused by economical and geographical difficulties; the limited presence of governmental control; the lack of interest and commitment of the teachers; the disinterest of parental associations; the lack of management and leadership. These difficulties lead to an increasing offers of private education at very high costs. The consequence is that the young people of Montebello are not able to compete in the job market and have difficulties to access higher education. The population is affected by feelings of low self - esteem, a lack of orientation, leading to the evolvement of negative habits: the creation and following of gangs, drug consumption, crime, prostitution and early pregnancies, among others.
Unemployment is another severe issue. There is a lack of productive and efficient projects and skilled workers; on the other hand, there is a lack of training in the few jobs that do exist. Due to this insecurity and the lack of social support, the quality of living in Montebello will not improve; the forced working displacement will lead to the loss of the little identity that is left. The daily working displacement to the city affects the fact that positive values are either lost or currently decreasing. Therefore the creation of programs and institutions of encounter like this one are necessary to represent and internally integrate all groups of people of this district. This is why the education and orientation of the working life of the young people is so important, as it forms
the development of the individual as well as the community.
Montebello
Montebello
Montebello
Montebello
Montebello
Montebello
Montebello
materials and building techniques
The bamboo-Guadua is an excellent material in building. Its mechanical characteristics are comparable to those of steel, with a special resistance against flexion, which is a great advantage for constructing in areas with a high seismological risk like Colombia.
The Guadua Angustifolia is a “native” of this region and had been used by different ancestral communities of the whole country, thus the project deals with the recovery and revaluation of a proper material belonging to the country’s vernacular architecture, at the same time enabling a low ecological footprint.
Considering environmental benefits: the Guadua groves regulate the water of the river beds, process carbon dioxide into oxygen, thus contributing to the mitigation of the climate change, and control the soil erosion. Furthermore, the groves attract fauna y flora which enrich the economical system, offer organic material, regulate the water levels in basins and conserve the biodiversity. The Guadua reproduces itself constantly and grows extremely fast (up to 20cm per day), hence being a resource highly sustainable which can be used as a good substitution for wood. As well, it supports the preservation of forests and jungles which are little vegetated or even menaced of distinction.
Starting with the roof is a square of 24x24 metres built out of 4 smaller roofs, supported by 16 pillars with a height of 10 metres, called the “cincopoles” (English: 5-poles). These poles are formed by five Guaduas which emerge from the ground at the same spot later naturally spreading themselves to be able to carry the weight of the roof in a balanced way and to enable the spacious stories. The walls are built in a regular structure of colonnades (joist-columns) with a span width of 5 and 7 metres, with cross stays and longitudinal struts supporting them.
Those two elements (roof and walls) are independent and endued with interspaces so that every part can distort according to its own geometry without neither colliding nor interfering with one another. In this case, it allows bamboo to perform its maximum flexibility. The facades are veneered with bamboo mats and are covered with a mixture of chalk and clay from the surrounding soil, just as the water based paints, which do not contain any chemical product. Systems of energetic saving and efficiency have also been integrated: the rainwater gets collected by the 600m² surfacing “La Vieja” and is gathered in a caved tank under the building. Later, this water is used for the sanitation of the whole school.
Furthermore, 54 solar panels connected to a photovoltaic complex will be installed, generating electricity to serve the building’s need, including a bidirectional electric meter to manage the excess. This type of solar installation is the first one of its kind throughout Colombia, as a result of a good cooperation between different professionals and businesses.
guaduas image gallery
column in atrium
team
roof structure II
staircase structure
facades
classroom 2
base
window
ground floor
god is in the details
scaffolfing
working
roof structure
team
in the green
bamboo beams
volunteers
staircase
bamboo structure
corner
facade balconies
door
terrace
materials
technical drawings
Ground Floor - Architecture
First Floor - Architecture
Second Floor - Architecture
external links
support this project and MAKE YOUR DONATION!
this project is organised by FUNDACIÓN ESCUELA PARA LA VIDA (SCHOOL FOR LIFE)
客服
消息
收藏
下载
最近






















