查看完整案例

收藏

下载
Hôtel Mandarin oriental
SITUATION / PROGRAMME
La domotique épouse le luxe. A quelques minutes des institutions financières genevoises, l’hôtel Mandarin Oriental offre à sa clientèle l’extrême confort de ses 166 chambres de style Art Déco, sa trentaine de suites, ses deux restaurants gastronomiques, son bar réputé, ses vastes salles de réception, terrasses et vue imprenable sur le Rhône, la vieille ville et les montagnes environnantes.
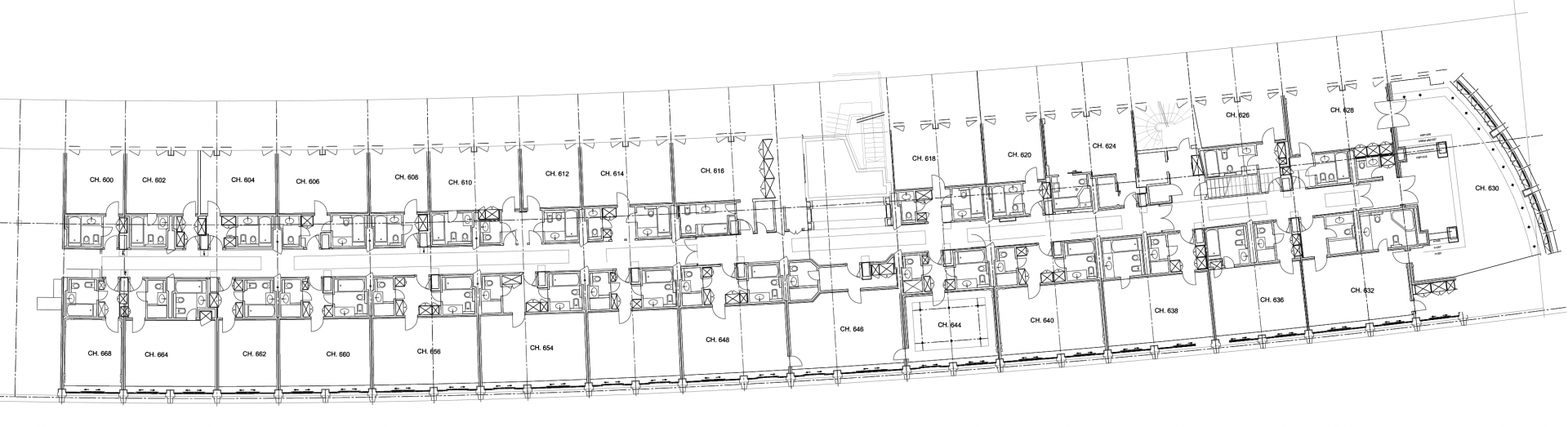
Quatre ans après la surélévation et la création de suites avec terrasse, au 7ème étage, c’était au tour du 6ème étage de faire peau neuve. Au programme, une nouvelle distribution des salles-de-bains, la réfection des chambres, des couloirs et de la suite présidentielle et l’adjonction d’un escalier de secours. Côté techniques, on a procédé à la transformation de tous les systèmes, des installations sanitaires au réseau électrique en passant par le chauffage, la climatisation, la lustrerie, la détection incendie et la pose d’un réseau d’extinction, afin de répondre aux plus hauts standards de sécurité et de fonctionnalité actuellement applicables à l’hôtellerie.
Enfin et surtout, le Mandarin Oriental inaugure à Genève l’ère de la domotique dans l’hôtellerie de luxe. La direction a en effet décidé de profiter de la restructuration pour équiper tout l’étage de cette nouvelle technologie qui, tout en assurant à la clientèle un confort maximal, permet de réaliser d’importantes économies d’énergie.
RÉALISATION
Un chantier complexe. Étendu sur 14 mois, le chantier mené en parallèle de l’activité habituelle de l’établissement a exigé des constructeurs une organisation particulièrement rigoureuse, allant de la gestion des horaires, afin qu’aucune nuisance sonore ne vienne déranger la clientèle, aux conditions d’accès au chantier, par un monte-charge mis en échafaudage sur la façade arrière.
L’étage a été complètement isolé du reste de l’hôtel pour assurer les conditions de sécurité inhérentes au chantier. Sortis de cette cure de jouvence, les nouveaux espaces arborent leurs généreux volumes. Dans les couloirs, la rationalisation des conduites techniques a permis de gagner en hauteur de plafond. Joyau de l’étage, la suite présidentielle d’environ 250 m2 bénéficie de deux chambres avec salles-de-bains, salon, cuisine, vaste dressing, et la possibilité soit de s’adjoindre une chambre soit d’en transformer une en salle de conférence. Les chambres de 30 à 35 m2 disposent pour leur part d’un grand dressing, d’une, voire deux salles-de-bains à revêtements de marbre.
Épais tapis tissés sur mesure, aux murs riches papiers peints et boiseries aux essences précieuses, fenêtres et mobilier ornés d’épais velours, de satins et taffetas: dans des harmonies de rose et d’or, c’est le dernier rendez-vous de l’élégance, du confort et du luxe contemporain.
客服
消息
收藏
下载
最近












