查看完整案例

收藏

下载
Под крылом самолёта Алла Павликова
Объект: Интерьер международного аэропорта Курумоч в Самаре
Адрес: Россия, Самара.
Мастерская: Riverclack
Авторский коллектив: Дмитрий Овчаров, Мария Яско, Виктор Колупаев, Мария Насонова, Маргарита Корниенко. Главный инженер: Сергей Курепин. Управление проектом: Дарья Туркина, Мария Бойко. Проект навигации: Виктор Колупаев. При содействии Бориса Воскобойникова, Марии Ахременковой
Новый терминал аэровокзала Курумоч в Самаре как попытка взглянуть на полёты глазами космических шестидесятых.
Интерьер нового терминала международного аэропорта Курумоч в Самаре ©VOX Architects, фотограф Сергей Ананьев
Новый пассажирский терминал международного аэропорта Курумоч в Самаре был официально открыт в феврале 2015 – его построили в ударном темпе для подготовки города к ЧМ по футболу 2018 года, расширив таким образом старый аэропорт, открытый к конце 1950-х, в эпоху больших надежд, связанных с освоением космоса. Архитектурную концепцию нового терминала – к слову, его площадь 42 тысяч м2, в четыре раза больше площади существующего аэровокзала – разработало английское бюро Hintan Associates: здание накрыто треугольным парусом-крылом кровли, прорезанной штрихами световых фонарей. Продуманная логистика, современная начинка, семь телетрапов и возможность расширения в будущем делают здание удобным и полезным.
Международный аэропорт Курумоч © Hintan Associates
Интерьеры же спроектировала и реализовала московская архитектурная мастерская Nefa Architects, развив заложенную в здании тему полёта до её вполне логичного, артистического завершения. Как поясняет автор дизайна внутреннего пространства, архитектор Nefa architects Дмитрий Овчаров, «интерьер нового международного терминала полностью сфокусирован на космическом статусе Самары, где с советских времён находится крупнейший ракетостроительный завод».
Международный аэропорт Курумоч © Hintan Associates
Интерьер нового терминала международного аэропорта Курумоч в Самаре © Архитектурное бюро Nefa Architects. Фотограф Илья Иванов
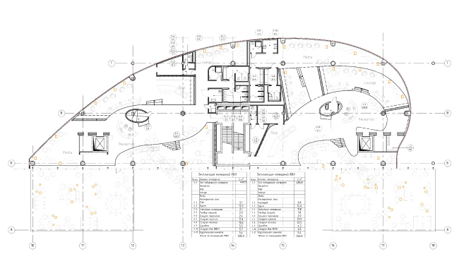
Новый терминал международного аэропорта Курумоч в Самаре. План этажа © Архитектурное бюро Nefa Architects
Интерьер нового терминала международного аэропорта Курумоч в Самаре © Архитектурное бюро Nefa Architects. Фотограф Илья Иванов
Интерьер нового терминала международного аэропорта Курумоч в Самаре © Архитектурное бюро Nefa Architects. Фотограф Илья Иванов
Интерьер нового терминала международного аэропорта Курумоч в Самаре © Архитектурное бюро Nefa Architects. Фотограф Илья Иванов
Интерьер нового терминала международного аэропорта Курумоч в Самаре © Архитектурное бюро Nefa Architects. Фотограф Илья Иванов
Интерьер нового терминала международного аэропорта Курумоч в Самаре ©VOX Architects, фотограф Сергей Ананьев
Отсюда – совершенно космический атриум, светящиеся лампочки и провода – как на борту космического корабля, портативная курительная кабина с видом на лётное поле и даже «летающая тарелка» смотровой площадки. Центральным ядром служит пространство атриума, внутри которого основное действие разворачивается вокруг причудливо изгибающихся пандуса, лестницы и эскалатора. Красивая белоснежная петля вертикальных коммуникаций врезается в смотровую площадку, расположенную на третьем этаже. Она добавляет интерьеру особой фантастичности.
Интерьер нового терминала международного аэропорта Курумоч в Самаре © Архитектурное бюро Nefa Architects. Фотограф Илья Иванов
Интерьер нового терминала международного аэропорта Курумоч в Самаре © Архитектурное бюро Nefa Architects. Фотограф Илья Иванов
Интерьер нового терминала международного аэропорта Курумоч в Самаре © Архитектурное бюро Nefa Architects. Фотограф Илья Иванов
Интерьер нового терминала международного аэропорта Курумоч в Самаре. Зона VIP–lounges © Архитектурное бюро Nefa Architects. Фотограф Илья Иванов
Помимо основных залов терминала, архитекторы Nefa architects реализовали интерьеры для vip-залов и зон отдыха. В них ещё активнее развивается тема плавного перетекания поверхностей, использования обтекаемых форм и такой же мебели. Прекрасным завершением общей космической картинки стали большие круглые светильники и огромный медиа-экран, который протяженной горизонтальной лентой накрывает помещения бизнес-залов. Такое наполнение пришлось впору аморфно-футуристической оболочке здания. Интерьеры были не раз отмечены не только вниманием пассажиров, но и различными архитектурными премиями, Скажем, весной этого года Nefa получили за них приз Best Office Awards, а также – диплом «Золотого Сечения».
Интерьер нового терминала международного аэропорта Курумоч в Самаре. Зона VIP–lounges © Архитектурное бюро Nefa Architects. Фотограф Илья Иванов
Интерьер нового терминала международного аэропорта Курумоч в Самаре. Зона VIP–lounges © Архитектурное бюро Nefa Architects. Фотограф Илья Иванов
Интерьер нового терминала международного аэропорта Курумоч в Самаре. Зона VIP–lounges © Архитектурное бюро Nefa Architects. Фотограф Илья Иванов
Интеньер нового терминала международного аэропорта Курумоч в Самаре. Зона VIP–lounges © Архитектурное бюро Nefa Architects. Фотограф Илья Иванов
Сейчас новый терминал успешно функционирует. Однако полное окончание всех работ запланировано на 2017 год.
Интерьер нового терминала международного аэропорта Курумоч в Самаре. Зона VIP–lounges © Архитектурное бюро Nefa Architects. Фотограф Илья Иванов
Интерьер нового терминала международного аэропорта Курумоч в Самаре. Зона VIP–lounges © Архитектурное бюро Nefa Architects. Фотограф Илья Иванов
Интерьер нового терминала международного аэропорта Курумоч в Самаре. Зона VIP–lounges © Архитектурное бюро Nefa Architects. Фотограф Илья Иванов
Интерьер нового терминала международного аэропорта Курумоч в Самаре. Зона VIP–lounges © Архитектурное бюро Nefa Architects. Фотограф Илья Иванов
Интерьер нового терминала международного аэропорта Курумоч в Самаре. Зона VIP–lounges © Архитектурное бюро Nefa Architects. Фотограф Илья Иванов
Интерьер нового терминала международного аэропорта Курумоч в Самаре. Зона VIP–lounges © Архитектурное бюро Nefa Architects. Фотограф Илья Иванов
Интерьер нового терминала международного аэропорта Курумоч в Самаре. Зона VIP–lounges © Архитектурное бюро Nefa Architects. Фотограф Илья Иванов
Интерьер нового терминала международного аэропорта Курумоч в Самаре. Зона VIP–lounges © Архитектурное бюро Nefa Architects. Фотограф Илья Иванов
Интерьер нового терминала международного аэропорта Курумоч в Самаре. Зона VIP–lounges © Архитектурное бюро Nefa Architects. Фотограф Илья Иванов
Интерьер нового терминала международного аэропорта Курумоч в Самаре. Зона VIP – lounge © © Nefa architесts. Фотограф Илья Иванов
Интерьер нового терминала международного аэропорта Курумоч в Самаре. Зона VIP–lounges © Архитектурное бюро Nefa Architects. Фотограф Илья Иванов
Интерьер нового терминала международного аэропорта Курумоч в Самаре. Зона VIP–lounges © Архитектурное бюро Nefa Architects. Фотограф Илья Иванов
Интерьер нового терминала международного аэропорта Курумоч в Самаре. Зона VIP–lounges © Архитектурное бюро Nefa Architects. Фотограф Илья Иванов
Интерьер нового терминала международного аэропорта Курумоч в Самаре. Зона VIP–lounges © Архитектурное бюро Nefa Architects. Фотограф Илья Иванов
Интерьер нового терминала международного аэропорта Курумоч в Самаре. Зона VIP–lounges © Архитектурное бюро Nefa Architects. Фотограф Илья Иванов
Интерьер нового терминала международного аэропорта Курумоч в Самаре. Зона VIP–lounges © Архитектурное бюро Nefa Architects. Фотограф Илья Иванов
Интерьер нового терминала международного аэропорта Курумоч в Самаре. Зона VIP–lounges © Архитектурное бюро Nefa Architects. Фотограф Илья Иванов
Интерьер нового терминала международного аэропорта Курумоч в Самаре. Зона VIP–lounges © Архитектурное бюро Nefa Architects. Фотограф Илья Иванов
客服
消息
收藏
下载
最近






































