查看完整案例

收藏

下载
Бизнес-центр «Kiroff»
Объект:
Бизнес-центр «Kiroff»
Адрес:
Беларусь,
Минск.
ул. Кирова, 8/4
Мастерская:
Белзарубежстрой
Авторский коллектив:
Руководитель проекта: Вадим Дражин
Главный архитектор проекта: Алексей Тихончук
Главный инженер проекта: Сергей Романовский
Главный конструктор: Андрей Шпиленок
Ведущий архитектор (автор концепции): Гражина Холупко-Новицка
Деловой центр на улице Кирова в Минске по проекту Вадима Дражина и бюро «Белзарубежстрой».
Деловой центр с магазинами на первом этаже расположен на улице Кирова, дом 8/4. Архитекторы стремились создать оригинальную форму, активно взаимодействующую с контекстом: историческими зданиями и зеленью. Композиция здания, которая, по мысли авторов, напоминает массив деревьев, основана на разносмаштабных вертикалях и динамичном силуэте. Пропорции согласованы с окружающей исторической застройкой.
Бизнес-центр «Kiroff». Реализация, 2014 © Белзарубежстрой
Бизнес-центр «Kiroff». Реализация, 2014 © Белзарубежстрой
Бизнес-центр «Kiroff». Реализация, 2014 © Белзарубежстрой
Бизнес-центр «Kiroff». Ночный вид. Реализация, 2014 © Белзарубежстрой
Бизнес-центр «Kiroff». Ночный вид. Реализация, 2014 © Белзарубежстрой
Бизнес-центр «Kiroff». Реализация, 2014 © Белзарубежстрой
Бизнес-центр «Kiroff». Реализация, 2014 © Белзарубежстрой
Бизнес-центр «Kiroff». Реализация, 2014 © Белзарубежстрой
Бизнес-центр «Kiroff». Реализация, 2014 © Белзарубежстрой
Бизнес-центр «Kiroff». Реализация, 2014 © Белзарубежстрой
Бизнес-центр «Kiroff». Реализация, 2014 © Белзарубежстрой
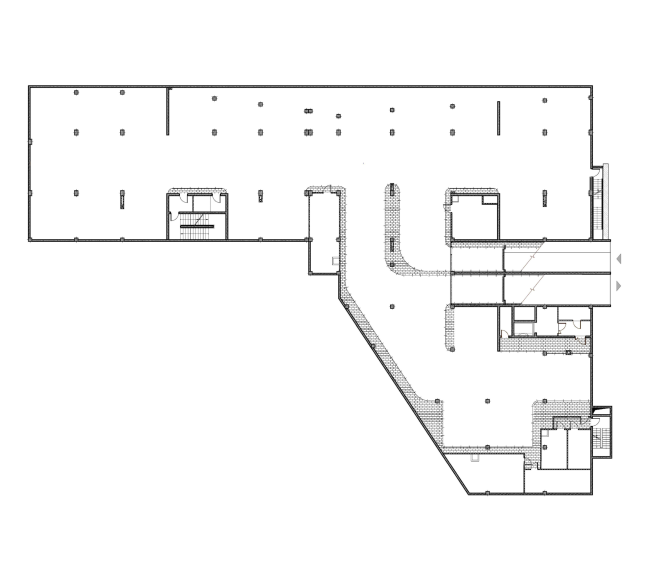
Бизнес-центр «Kiroff». План нулевого этажа © Белзарубежстрой
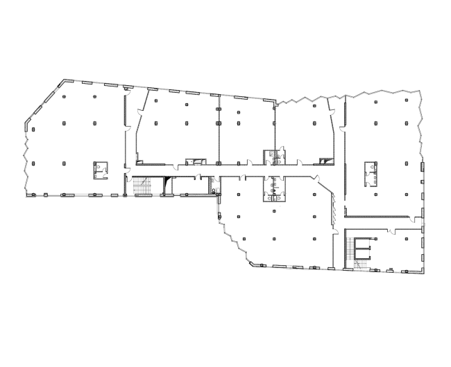
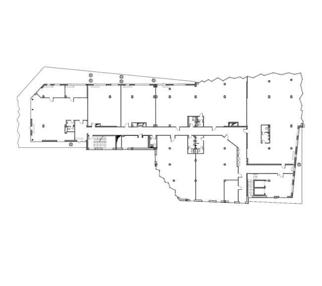
Бизнес-центр «Kiroff». План 1 этажа © Белзарубежстрой
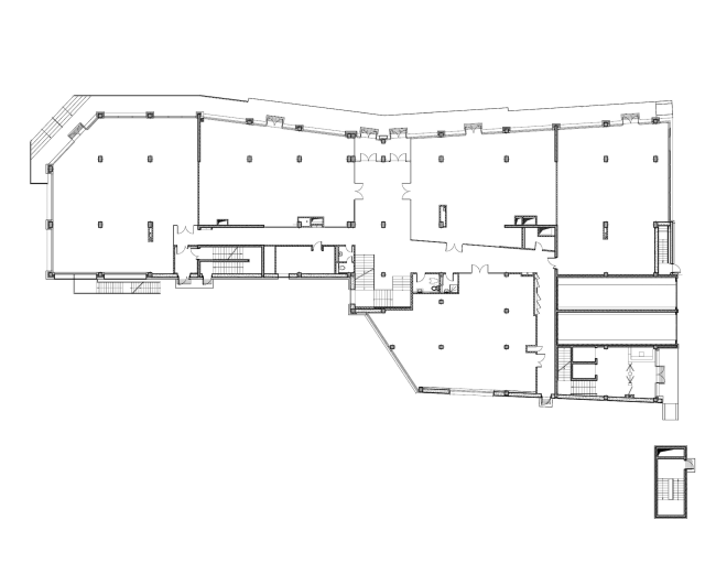
Бизнес-центр «Kiroff». План 4 этажа © Белзарубежстрой
Бизнес-центр «Kiroff». План 6 этажа © Белзарубежстрой
Бизнес-центр «Kiroff». Разрез © Белзарубежстрой
Бизнес-центр «Kiroff». Эскиз. Проект, 2013 © Белзарубежстрой
客服
消息
收藏
下载
最近



















