查看完整案例

收藏

下载
Дом в порту
Алёна Кузнецова
Объект: Многоквартирный жилой дом на Двинской
Адрес: Россия, Санкт-Петербург. ул. Двинская, 6
Мастерская: Архитектурное бюро «А.Лен»
Авторский коллектив: Орешкин С.И., Белят Е.А., Андреева Р.В., Коваленко Т.Б., Степанова О.В.
Жилой комплекс на Двинской улице – первый случай современной архитектуры на Гутуевском острове. Бюро «А.Лен» подробно исследует контекст и создает ориентир для дальнейших преобразований района.
Каждый остров Петербурга, как, впрочем, это и положено островам, имеет свой характер. Если упрощать до одного слова, то Заячий – исторический, Крестовский – элитный, Елагин – зеленый, Каменный – неоклассический, а Петровский – это бизнес-класс. Есть еще «промышленные» острова – белые пятна на карте города, потому что добираться до них не быстро, либо территория полузакрытая – за стенами краснокирпичных мануфактур все еще что-то производят. На этих островах протекает какая-то своя потусторонняя жизнь, год за годом они попадают в дипломные проекты и списки небанальных достопримечательностей. Но только после строительства западного скоростного диаметра шанс на успешную джентрификацию для одного из них – Гутуевского, перестал быть призрачным. Чего не скажешь о соседнем Канонерском, которому магистраль только прибавила энтропии.
На первый взгляд Гутуевский кажется малопригодным для жилья, но чем больше погружаешься в его топонимику, тем стремительнее полет фантазии. Долгие годы остров пустовал, о чем свидетельствуют первые названия: Незаселенный, Кустарниковый. В середине XVIII века его купил судостроитель Конон Хугтунен, из Кронштадта сюда перевели торговый порт, который до сих пор функционирует, и жизнь закипела. Открывались гостиницы, трактиры, склады купцов Елисеевых, мануфактуры – суконная, бумагопрядильная, спиртоочистительный завод – все это образцы первоклассной краснокирпичной архитектуры, признанные объектами наследия, среди авторов – Юлий Бенуа и Константин Ниман, построивший знаменитую аптеку Пеля.
Многоквартирный жилой дом на Двинской © Архитектурное бюро «А.Лен»
В романтичный портовый контекст места внесла свой вклад и советская застройка. По самой обжитой Двинской улице располагаются Университет морского и речного флота, конструктивистский дом культуры моряков, ампирное общежитие для жен моряков. Между ними – хрущевки и несколько высотных домов конца 1990-х. Доминанта этой части острова – Богоявленская церковь, расположенная на пересечении Двинской и набережной реки Екатерингофки. Ее автора, архитектора Василия Косякова, прославил Морской собор в Кронштадте.
Развертка по Двинской. Многоквартирный жилой дом на Двинской
© Архитектурное бюро «А.Лен»
Вопрос габаритов в исторической части Петербурга – один их основных при оценке новых проектов. Прогноз для Гутуевского острова – почти неизбежное уплотнение и рост вверх, дом учитывает пожелания заказчика и высотный регламент. А поскольку участок оставляет пространство для «маневра», бюро «А.Лен» смогло предоставить для обсуждения на градсовете три варианта, отличающихся объемно-пространственным решением и пластикой фасадов. Эксперты выбрали вариант, наиболее тактичный по отношению к Богоявленскому собору. По словам Сергея Орешкина, бюро будет проводить дополнительные исследования и съемки с квадрокоптеров, чтобы учесть все важные точки восприятия.
Из всего контекстуального разнообразия архитекторы выбирали в качестве основы «слой» советского утилитарного периода, стремясь оставаться в рамках фоновой архитектуры и сохраняя цельность окружения.
Фасад 3. Многоквартирный жилой дом на Двинской
© Архитектурное бюро «А.Лен»
Фасад 1. Многоквартирный жилой дом на Двинской
© Архитектурное бюро «А.Лен»
Фасад 2. Многоквартирный жилой дом на Двинской
© Архитектурное бюро «А.Лен»
Дворовой фасад. Многоквартирный жилой дом на Двинской
© Архитектурное бюро «А.Лен»
Структура дома – трехчастная. Основание – более темный первый этаж с галереей встроенных помещений. Следующие шесть жилых этажей в светло-серой гамме, которая должна смягчить глубокие тени контрсвета, воспринимаются с Двинской улицы простым прямоугольным объемом. Восьмой этаж с видовыми квартирами и террасами смещен к дальним от улицы краям «флангов», оставляя пространство для восприятия церкви. Ориентация террас еще обсуждается: с южной стороны больше света, а с севера разворачивается более живописная панорама.
Пластичная за счет небольших выступов и углублений фасадная сетка усложняется незначительным смещением некоторых окон, которое делит основной объем здания на две трехэтажные части, а также цветовыми вставками и сочетанием разных фактур. Дом относится к категории «комфорт», что лишний раз подтверждает веру заказчика в потенциал места. Материалы планируют использовать дорогие: для цокольного этажа проект предполагает рустованные керамические панели со вставками с фактурой под дерево, для верхних этажей возьмут облицовочную плитку бежево-серой гаммы, а окна и витражи будут выполнены из алюминия, окрашенного в графитовый цвет. Ограждения балконов – строгая металлическая решетка.
Многоквартирный жилой дом на Двинской
© Архитектурное бюро «А.Лен»
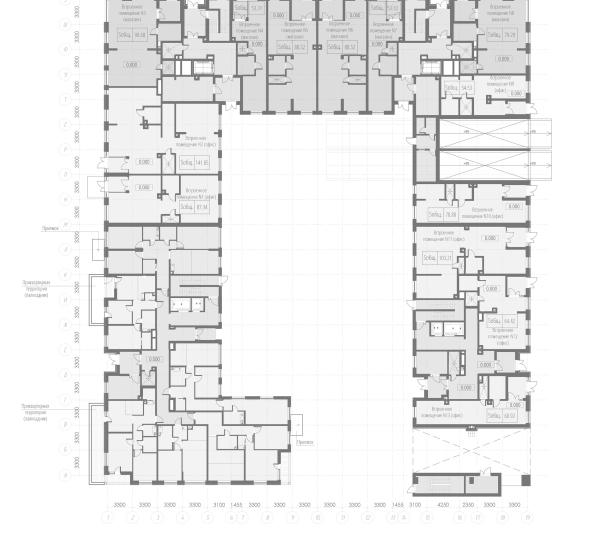
Фасад отражает логику внутреннего устройства: почти все планировки для этого дома разрабатывали по программе «Идеальные квартиры», номенклатура поэтому получилась разнообразной. Широкие проемы появляются ровно там, где это необходимо – то есть в общих комнатах или столовых. Угловые окна, редкий для современных домов прием, серьезно влияют на зонирование помещения и при этом дают хороший свет и панорамный обзор.
Генплан. Многоквартирный жилой дом на Двинской
© Архитектурное бюро «А.Лен»
План 1-го этажа. Многоквартирный жилой дом на Двинской
© Архитектурное бюро «А.Лен»
План 6-го этажа. Многоквартирный жилой дом на Двинской © Архитектурное бюро «А.Лен»
План 8-го этажа. Многоквартирный жилой дом на Двинской
© Архитектурное бюро «А.Лен»
Двор раскрывается на юг, что позволяет наполнить естественным светом наибольшее количество квартир. Кроме того, есть вероятность, что со временем сформируется общая с соседними домами зеленая территория. Паркинг подземный, также застройщик заключил соглашение с городом об участии в строительстве школы и детского сада.
Многоквартирный жилой дом на Двинской © Архитектурное бюро «А.Лен»
客服
消息
收藏
下载
最近














