查看完整案例

收藏

下载
Скандинавский десант в центре Лондона
Объект:
Колледж района Вестминстер
Адрес:
Великобритания,
None,
Лондон.
Мастерская:
Schmidt Hammer Lassen
Новое здание колледжа района Вестминстер – первая постройка датского архитектурного бюро schmidt hammer lassen в Лондоне.
Колледж района Вестминстер. Photo: Adam Mork
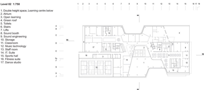
Торжественное открытие нового здания колледжа состоялось в январе 2011 года, и сейчас комплекс общей площадью 24 тысячи квадратных метров уже функционирует в полную силу. Проект schmidt hammer lassen был выбран в результате архитектурного конкурса, проведенного руководством колледжа в 2006 году. Его главным достоинством международное жюри признало гибкую планировочную структуру, предусматривающую в составе учебного комплекса большое количество рекреаций, выставочных и общественных пространств, предоставляющих студентам возможность не только грызть гранит науки, но и устраивать перформансы и экспозиции, а также просто активно коммуницировать друг с другом. Большая часть помещений, организованных вокруг центрального атриума, также предусматривает возможность трансформации: как утверждают сами авторы проекта, их здание «поощряет новые методы преподавания и обучения».
Внешне здание, выкрашенное в белый цвет, напоминает трансатлантический лайнер. Эту ассоциацию усиливают консоли верхних этажей – «палуб», появляющиеся за счет того, что каждый последующий уровень имеет большую площадь, чем предыдущий. Белый цвет был выбран архитекторами по двум причинам. Во-первых, он помогает наилучшим образом вписать новый комплекс в существующую застройку района, а во-вторых, подчеркивает его скандинавское «происхождение».
Очень датским по своей гамме и настроению получились и интерьеры комплекса, которые делались также по проекту schmidt hammer lassen. В оформлении общественных зон колледжа доминируют два цвета – все тот же белоснежный и светло-медовый, привнесенный благодаря активному применению натурального дерева. В частности, панелями из дуба обшиты стены вестибюля, а из сибирской сосны выполнены лестницы.
Колледж района Вестминстер. Photo: Adam Mork
Колледж района Вестминстер. Photo: Adam Mork
Колледж района Вестминстер. Photo: Adam Mork
Колледж района Вестминстер. Photo: Adam Mork
Колледж района Вестминстер. Photo: Adam Mork
Колледж района Вестминстер. Photo: Adam Mork
Колледж района Вестминстер. Photo: Adam Mork
Колледж района Вестминстер. Photo: Adam Mork
Колледж района Вестминстер. Photo: Adam Mork
Колледж района Вестминстер. Photo: Adam Mork
Колледж района Вестминстер. Photo: Adam Mork
Колледж района Вестминстер. Photo: Adam Mork
Колледж района Вестминстер. Photo: Adam Mork
Колледж района Вестминстер. Photo: Adam Mork
Колледж района Вестминстер. Photo: Adam Mork
Колледж района Вестминстер. Photo: Adam Mork
Колледж района Вестминстер. schmidt hammer lassen architects
Колледж района Вестминстер. schmidt hammer lassen architects
Колледж района Вестминстер. schmidt hammer lassen architects
Колледж района Вестминстер. schmidt hammer lassen architects
Колледж района Вестминстер. schmidt hammer lassen architects
Колледж района Вестминстер. schmidt hammer lassen architects
Колледж района Вестминстер. schmidt hammer lassen architects
Колледж района Вестминстер. schmidt hammer lassen architects
Колледж района Вестминстер. schmidt hammer lassen architects
客服
消息
收藏
下载
最近




























