查看完整案例

收藏

下载
PFC: reconversión de antigua fábrica de textiles en nuevo centro cinematográfico para Valladolid
PFC: reconversión de antigua fábrica de textiles en nuevo centro cinematográfico para Valladolid
Para el periodo 2014-2015 del proyecto final de carrera en la Escuela Técnica Superior de Arquitectura de
Valladolid
, el español Alejandro Bocanegra ha debido presentar una propuesta para reconvertir la antigua fábrica de industrias textiles de su ciudad en un centro de difusión de la cultura cinematográfica (CDCC), funcionando también como sede permanente de la tradicional Semana Internacional de Cine de Valladolid (
SEMINCI
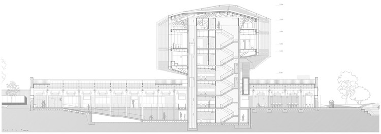
). A pesar del contraste programático en su reconversión, Bocanegra propone un "edificio que levita por encima de las antiguas naves, contemplándolas, que parece no tocarlas, y que cuando lo hace, es de manera puntual, clara y concentrada".
Memoria oficial:
las ciudades son un reflejo de la sociedad que las habita. El movimiento incesante y el paso del tiempo hacen que los edificios cambien y se adapten a necesidades y programas nuevos, para los que no estaban pensados. Rehabilitar la arquitectura consiste en mejorar su uso, en adaptar y transformar los edificios de acuerdo a las necesidades presentes. Se trata de aprovechar características y potencial de los elementos, sin que ello suponga una pérdida de identidad. Mantener o mejorar las relaciones con el entorno próximo. Contexto.
El proyecto plantea la reconversión de la antigua Fábrica de Industrias Textiles en
Valladolid
en Centro de Difusión de la Cultura Cinematográfica, Film Comission y Sede permanente de la Seminci. Un programa ambicioso, una intervención que no se basa únicamente y exclusivamente en la importancia del elemento como patrimonio edificado, ni en la protección legal de sus fachadas. Se trata de un proyecto que va más allá, que pretende potenciar y devolver el carácter e identidad industrial a la preexistencia. Una operación basada en la reflexión sobre el papel del cine en la ciudad, en la percepción sensible y estrategias de aproximación al lugar. Un nuevo edificio que mantiene los elementos preexistentes y los relaciona con otros nuevos. La generación de una secuencia. El arte de la relación y el diálogo entre las partes para crear un todo, un drama coherente...
Se trata de una rehabilitación que respeta al máximo posible la preexistencia, la colocación de un nuevo elemento identificable y diferente. Una operación de yuxtaposición subversiva, es decir, que revierte la pérdida de identidad e intensidad del espacio original hacia otra nueva. Un nuevo espacio arquitectónico y urbano emocionalmente potente para albergar el nuevo programa cinematográfico. La contraposición entre pasado y presente. Lo industrial frente a lo tecnológico. Un edificio que levita por encima de las antiguas naves, las contempla, que parece no tocarlas, y que cuando lo hace, es de manera puntual, clara y concentrada.
Despiece. Image Cortesía de Alejandro Bocanegra
Plantas
Cortes/secciones oeste
Cortes/secciones este
Corte/Sección
Corte/Sección
Alejandro Bocanegra
Valladolid, España
2016
Cortesía de Alejandro Bocanegra
Alejandro Bocanegra
客服
消息
收藏
下载
最近
























