查看完整案例

收藏

下载
Life on the Level
In Moscow area, architect Roman Leonidov and designer Svetlana Fiantseva are building a residential house whose elongated one-story volume looks like it is opposed to the verticals of the city.
Architect:
Roman Leonidov
Svetlana Fiantseva
Firm:
Studio of Roman Leonidov
Object:
Private residential house in Moscow area
Russia, Moscow
Project Team:
Author of the project: Roman Leonidov.
Interior design: Svetlana Fiantseva
Private residential house in Moscow area © "Roman Leonidov and Partners"
This project is a brilliant example of the kind of housing that the really wealthy people opt for - people that are tired of ostentatious luxury. As Roman Leonidov reminisces, the customer put his requirements on this nutshell: "No frills, no buildup". At the same time, money was practically no object - it was just that the architects had to invest primarily into finding a simple yet graceful solution that would provide the future inhabitants of the house with maximum comfort and would not, at the same time, distract them from doing what they would come here to do - namely, contemplate the nature.
Private residential house in Moscow area © "Roman Leonidov and Partners"
And, yes, there are a lot of things to contemplate out there: for the construction of this house, the customer purchased a magnificent piece of forest land. The tall pine trees that are there on it create the all-but-impenetrable green screen that protects the land site from the outside world better than any man-made fence would.
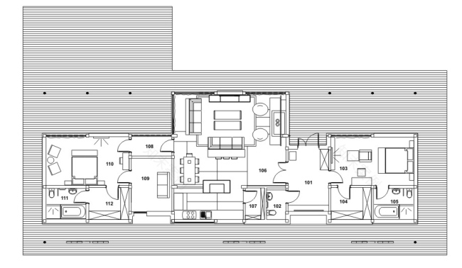
"We came up with the vision of this house almost at once - Roman Leonidov reminisces - the task of opening it up, as much as possible, to the surrounding beautiful scenery necessitated for the huge windows, while the customer's desire to get a terminally functional house prompted to us the idea of a single-story volume of a very simple layout". In fact, this is a parallelepiped that is placed on the land site in such a way as to "catch" as many beautiful views as possible. For the very same purpose, out of the main volume, Roman Leonidov pulls the cube of the living room, while the entrance area, on the other hand, gets a little "pushed in", thanks to which the plan gets some sophistication, however moderate. From a bird's height view, however, one can only guess about that: the house is covered by a wide rectangular roof that conceals all the tectonic nuances.
Private residential house in Moscow area © "Roman Leonidov and Partners"
The meaning of the roof with such powerful overhangs is hard to overestimate. First of all, such structure helps protect the premises from excessive heat in the summertime and from losing this same heat during the winter. Second of all, the slight angle of inclination helps to make a few rooms double-height, should this be necessary. And finally, thanks to these huge overhangs, in the immediate proximity of the house, the architects make the barbecue zone and the parking stalls. The solution of the latter is charmingly simple: "breaking off" the terrace, Roman Leonidov runs under the continuing surface of the roof a paved area, flanking its opposite side with an array of slender round-section supports.
Private residential house in Moscow area © "Roman Leonidov and Partners"
It only makes perfect sense that the volume of such a simple shape is also terminally thought-out and laconic in its materials. Quite predictably, the main part here is played by the wood - one can hardly find a material more resonant to the woodland surroundings than this. Roman Leonidov uses the timber of two colors, assembling the bearing structure from the dark broad boards, while the thinner boards of a lighter color are used to make the partitions wherever transparent glass surfaces would have been inappropriate. The central "public" block of the building is also "fixed" by concrete panels, the rough surface of which serves as the perfect background for the wooden framework. Such an addition, apart from performing the construction function, has also an aesthetic meaning: the customer asked to highlight, in the image of the building, its contemporary origin as well, and, by introducing the main construction material of the century, Roman Leonidov gives a modern twist to the "good old wooden house".
Private residential house in Moscow area © "Roman Leonidov and Partners"
On a par with the wood, the concrete is present even in the interior design of the house. In particular, it is used to decorate the fireplace and the kitchen area. And, just as the house itself is in fact a laconic horizontally oriented volume, the main pieces of the furniture here "develop" horizontally, sporting shapes that are reserved and laconic, at times bordering on ascetic. "But a few premises of the house sport any particular "faceting", otherwise the house is completely natural and free of any cumbersome details" - explains Svetlana Fiantseva, the author of the interior design project. One of such "wrought" territories is the area of the living/dining room, in which the muffled natural tones of wood and concrete are "diluted" with bright colorful accents - the mint green, orange, and the grass green. According to the authors' idea, such color palette goes a long way to make the house even more resonant with its surroundings, bringing the latter in from the outside not only through the large windows but also by means of the bright colors.
Private residential house in Moscow area © "Roman Leonidov and Partners"
Apart from the spacious living room combined with the dining room and a large kitchen, the house also has in it two bedrooms, each of which has a bathroom and a closet of its own. The architects place these residential blocks separately, one in each wing of the house - the role of the "buffer zone" here is played not only by the nucleus of the living room but also by the guest room and the lobby that flank it from either side. Yet another bedroom is designed directly in the anteroom, adjoining from the opposite side to the wet zone of the kitchen. "From the rational planning standpoint, the advantages of the single-story volume are hard to overestimate - says Svetlana Fiantseva - the premises are arranged in such a way that the people who will live here will have an opportunity to rest and be left alone even if there is a large company partying hard in the other part of the house".
This effect is strengthened even more by the ramified terrace. Running along the entire perimeter of the house, it accentuates its connection with the surroundings and gives the people still more possibilities to actively spend their time both indoors and outside.
Private residential house in Moscow area © "Roman Leonidov and Partners"
Private residential house in Moscow area © "Roman Leonidov and Partners"
Private residential house in Moscow area © "Roman Leonidov and Partners"
Architect:
Roman Leonidov
Svetlana Fiantseva
Firm:
Studio of Roman Leonidov
Object:
Private residential house in Moscow area
Russia, Moscow
Project Team:
Author of the project: Roman Leonidov.
Interior design: Svetlana Fiantseva
客服
消息
收藏
下载
最近











