查看完整案例

收藏

下载
4-star hotel complex in Petergof
information:
status
building
date
2004
—
2006
/
2006
—
2010
place
Russia
,
St. Petersburg
S.-Peterburgsky prospect, 40-16
function
Hospitality / Health
/
Hotel
Total Area
13310 м
2
number of storeys
5
Nikita Yavein
/
Russia
Company:
/
Russia
Design Team
architects: Nikita Yavein, Vladimir Zenkevich, Vitaly Antipin, Pavel Sokolov; constructors: Yury Bondarev
Partners and Clients
client: OAO "MISK"
Archi.ru about this project:
Anna Martovitskaya. Pavilions in the park, or homely welcome
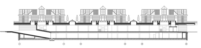
This summer the architectural workshop "Studio 44" has completed construction of a new 4 star hotel in Petergof. Designed as a small and comfortable city-block it is perfectly fitted into the natural and cultural surrounding of one of the most popular towns by St.Petersburg.
The hotel “New Petergof” is the first probably the last investment project of “Inteko” company in St. Petersburg. Though the locals call this construction “Baturina’s” must admit the developer was rather considerate to surrounding housing in Petergof
客服
消息
收藏
下载
最近
























