查看完整案例

收藏

下载
Edificio De Oficinas
Luxemburgo
Burnt Wood Office / STEINMETZDEMEYER
Burnt Wood Office / STEINMETZDEMEYER
Edificio De Oficinas
Bonnevoie,
Luxemburgo
Arquitectos:
STEINMETZDEMEYER
Área:
735
m²
Año:
2015
Proveedores:
WoodArch
El edificio está ubicado en el distrito de
Bonnevoie
en la ciudad de Luxemburgo, a dos pasos de la estación central. Un barrio animado, central e intenso, cerca del transporte público para limitar el uso del automóvil.
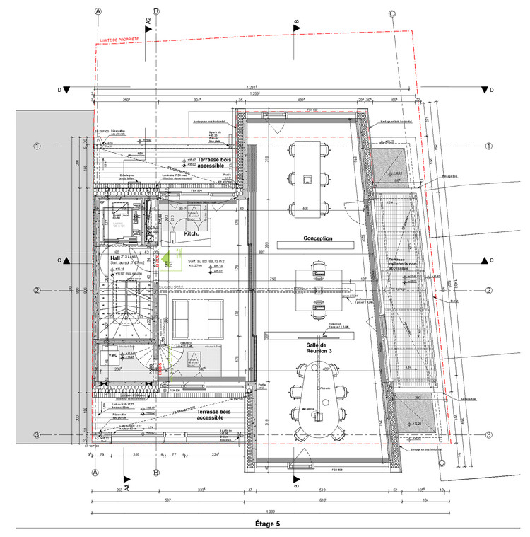
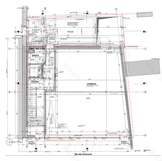
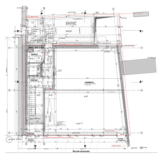
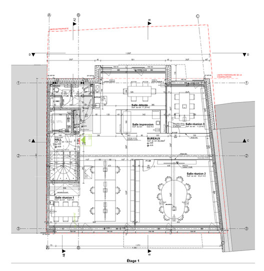
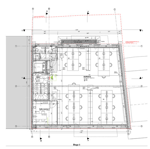
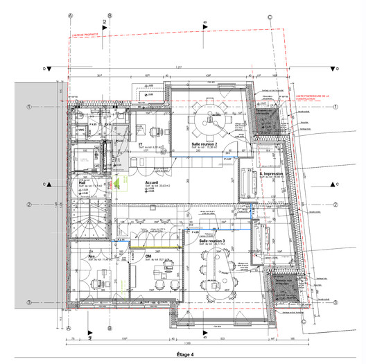
Es un pequeño edificio urbano, bien aislado (clase A) y "low-tech", con una superficie de venta de 110 metros cuadrados en la planta baja y cinco niveles de oficinas de alrededor de 125 metros cuadrados cada uno. Una estructura de concreto atípica, diseñada con Marc Ewen de la oficina Au Carré, que incluye losas de espesor variable, ofrece un espacio abierto de 11x12 metros.
Los alféizares de las ventanas son vigas invertidas, lo que permite que las ventanas toquen el techo para maximizar la entrada de luz natural. La mayoría de las paredes son paredes de concreto prefabricadas, dejadas al descubierto. Las losas y velos de concreto fundido en el lugar también quedan visibles, con sus defectos e irregularidades. Los pisos de roble sólido aportan calidez y un acabado noble que contrasta con el trabajo estructural.
La escalera, diseñada para ser lo más compacta posible, es bastante especial: acero crudo pulido, una gran hoja central de más de 15 metros de altura que cuelga de la losa del techo; los escalones son hojas de metal plegadas que se fijan a las paredes de concreto y a la hoja central mediante espaciadores que permiten que la luz se arrastre a lo largo de las paredes.
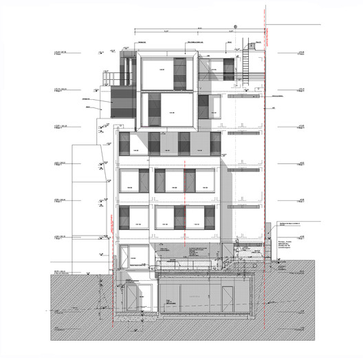
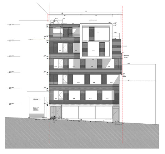
Corte AA
Low-tech y AAA, este edificio está muy bien aislado y equipado con triple acristalamiento, optimizando una generosa iluminación natural y enmarcando las hermosas vistas del impresionante paisaje de la cercana estación de tren urbano y rotondas, con bosques y campos acechando en el fondo del sur de la ciudad.
Los dispositivos automáticos de sombreado exterior limitan la carga térmica externa en verano y la ventilación natural a través de ventanas automatizadas reactiva la inercia térmica de las losas de hormigón durante las frescas noches de verano. No fue necesario instalar ningún sistema de aire acondicionado.
Planta quinto piso
La ventilación mecánica de los espacios de trabajo se realiza mediante VMC individuales en cada planta, que tienen una eficiencia de recuperación de calor especialmente alta. Evitan las pesadas unidades de ventilación y los conductos de distribución por todo el edificio. La calefacción, en su caso, se beneficia de la conexión a la calefacción urbana y se limita por tanto a simples bombas de distribución y calorímetros.
La fachada está hecha de revestimiento de alerce regional carbonizado. Su superficie se quema con un soplete de la manera tradicional japonesa yakisugi*. La capa de carbón negro es muy dura y forma la protección natural de la madera.
Bonnevoie, Luxemburgo
STEINMETZDEMEYER
客服
消息
收藏
下载
最近

























