查看完整案例

收藏

下载
Дом книги
Объект:
Республиканская детская библиотека Ташкента
Адрес:
Узбекистан,
Ташкент.
улица Яхъё Гулямова, 47
Мастерская:
ludi_architects
Авторский коллектив:
ludi_architects
Руководитель проекта: Любовь Леонтьева
Ведущие архитекторы: Вадим Убейкин, Анастасия Мягкова, Александра Толопило
Архитекторы: Алина Токарева, Нехмат Самедов, Эльвина Ахметсагирова
Команда Фонда развития культуры и искусства:
Руководитель: Саидазиз Ишанходжаев
Кураторы проекта: Иван Сорокин, София Юкина
Команда Mesa
Руководитель: Озан Унал
Бюро ludi_architects перезапустило библиотеку в Ташкенте: фасады исторического здания подновили, а интерьеры сделали привлекательными для разных поколений читателей. Теперь здесь на несколько часов можно занять детей, записать подкаст или послушать концерт. Пространство для чтения в одноэтажном особняке расширили за счет антресолей, а также площадок на открытом воздухе: амфитеатра и перголы.
Библиотека расположена в одноэтажном особняке на улице Яхъё Гулямова – важном объекте культурного наследия Узбекистана. За сто лет существования его функции менялись: от здания общественного собрания (сословный клуб ташкентской буржуазии и интеллигенции) до места съезда рабочих и крестьянских депутатов. С 1968 года здесь действует детская библиотека, взрастившая несколько поколений жителей Ташкента.
Последние десятилетия пространство библиотеки остро нуждалось в реконструкции, требуя идеологического обновления. Проект бюро ludi_architects, созданный совместно с Фондом развития культуры и искусства Узбекистана, был направлен на перезапуск библиотеки в новом качестве – современного культурного центра, максимально открытого и живого, наполненного востребованными у нового поколения функциями, интуитивно понятного как детям, так и родителям.
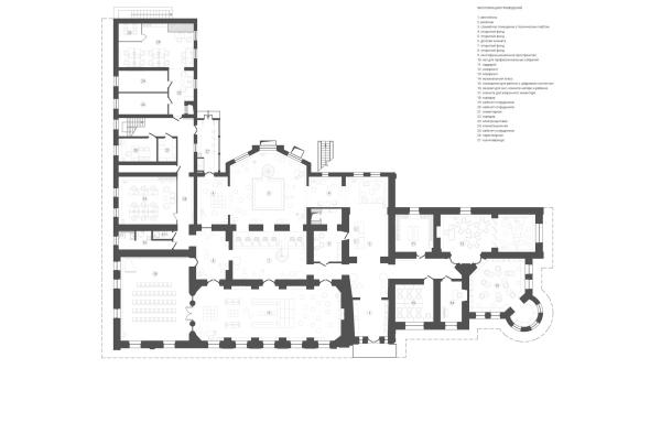
В проекте реконструкции использован комплексный подход: команда бюро занималась реновацией здания, его интерьерами и благоустройством прилегающей территории. При работе с объектом культурного наследия было важно учесть множественные ограничения и рамки, заданные историческим зданием. Архитекторы «вплетали» функции и сценарии использования библиотеки в уже сложившийся объект, грамотно балансируя между «классическим» и современным.
Обновленный культурный центр создан по принципам инклюзивности и с заботой обо всех группах населения. Помимо безбарьерной среды здесь проработана тактильная навигация и созданы уютные кабинки для прослушивания аудиокниг. В здании предусмотрена инфраструктура для матери с ребенком: в Узбекистане традиционно большие семьи, и вместе с читающим школьником здесь часто оказывается мама с детьми помладше. Еще одной важной необходимостью стало появление мини-кухни, позволяющей сделать паузу на перекус, чтобы с новыми силами вернуться к занятиям.
Особенностью обновленной библиотеки стали открытость и гибкость сценариев ее использования. На смену изолированным книжным залам пришли светлые, проницаемые, связанные друг с другом пространства. Закрытые хранилища преимущественно сменила свободная выкладка книг на стеллажах. Большой зал с исторической лепниной стал многофункциональным: теперь здесь можно читать лекции, проводить кинопоказы и мастер-классы. На первом этаже библиотеки расположились рабочие зоны, зал для собраний, камерные тихие коворкинги и музыкальный класс.
Архитекторы предусмотрели зонирование для детей разного возраста. Для малышей сделали невысокие стеллажи c особой подборкой книг, оставляя возможность поиграть на полу. В залы для подростков добавили комфортные места для чтения: пуфы и диванчики, «гнезда» для тех, кто предпочитает уединение, и удобные стулья со столиками для учебы и работы.
Дополнительными местами для чтения и работы за компьютером стали антресоли, которые удалось вписать в пространство благодаря высоте потолков. Они появились как решение расширить функциональную площадь библиотеки в ее заданных исторических контурах. В цокольном этаже расположилась современная студия звукозаписи, где записывают подкасты и аудиокниги, небольшая типография, где библиотека печатает собственные книги, и книжное хранилище. Для каждого помещения в разное время доступно разнообразие сценариев.
Помимо функциональности важной частью проекта стало визуальное восприятие пространства библиотеки и эстетическая составляющая. Интерьер деликатно сочетает в себе новое и историческое: тщательно восстановленную лепнину и ордер дополняет современная дизайнерская мебель – большая часть создана по эскизам бюро на заказ. Новая отделка, выполненная преимущественно в светлом дереве, отсылает к образу классической библиотеки с настольными лампами, растениями, деревянными стеллажами для книг. Минималистичные дизайн-решения не спорят с историческими материалами и гармонично дополняют существующий интерьер.
В ходе интерьерных работ были обнаружены исторические артефакты, изменившие проектные решения. Так в стенах открыли замурованные колонны XIX века – теперь они обрамляют вход в одно из помещений. В главном зале слои краски скрывали роспись с морским пейзажем советского периода, которую расчистили, отреставрировали и сохранили как еще один пласт истории здания.
Комплексный подход к проекту подразумевал работу с благоустройством прилегающей территории. Таким образом, функции библиотеки продолжились снаружи. При разработке архитектурных решений учитывались национальные и климатические особенности Узбекистана.
Перед входом в библиотеку разбит городской сквер, «зеленая гостиная» с сохраненными многолетними соснами и естественным озеленением.xa0 Второй участок – внутренний дворик, куда можно попасть непосредственно из здания библиотеки. Большую часть камерного пространства двора занимает открытая пергола, где читают и отдыхают под навесом в хорошую погоду. Здесь же можно укрыться в тени от палящего ташкентского солнца.
Во дворе есть небольшая сцена с амфитеатром, который органично вписывается в существующий рельеф: там проводят спектакли, лекции и другие образовательно активности.
Реновация Детской библиотеки и благоустройство окружающей территории запустили ряд эффектов. С момента реновации посещаемость библиотеки возросла в несколько сотен раз – это место стало мощной точкой притяжения для горожан всех возрастов, в частности для молодежи, которая приходит сюда для общения, проведения досуга и отдыха. Формат открытого культурного центра нашел отклик у посетителей: в библиотеке регулярно проводятся образовательные и развлекательные мероприятия.
В масштабе города обновленная библиотека активизировала участок улицы, изменив функциональное и стилистическое восприятие места. Реализованный проект выявил потребность в новых запросах на развитие общественных пространств в Ташкенте и задал вектор развития для культурных объектов всей страны.
Почти двадцать лет петербургское бюро ludi_architects наряду с архитектурным проектированием занимается исследованиями в области организации пространства и разработкой программ для территорий и культурных объектов. Проекты бюро основаны на тщательном изучении контекста, истории места, сохранении идентичности, бережной работе с наследием и одновременно смелом перепрограммировании пространств для современного образа жизни и новых запросов. Один из самых ярких примеров реализации комплексного подхода – остров «Новая Голландия» в Петербурге.
客服
消息
收藏
下载
最近








































