查看完整案例

收藏

下载
Желтый цвет фирмы
Объект: Музей Энцо Феррари
Адрес: Италия, None, Модена.
Мастерская: Future Systems
В Модене открылся музей Энцо Феррари, основателя компании Ferrari и одноименной гоночной команды, спроектированный бюро Future Systems.
Музей Энцо Феррари © Studio cento29
Когда британская мастерская выиграла этот архитектурный конкурс в 2004, речь шла о музее Maserati, марки, тогда принадлежавшей Ferrari, но затем было решено посвятить музей Энцо Феррари, объединив новое здание и его родной дом в выставочный комплекс. В 2009 бюро Future Systems распалось, а его глава Ян Каплицки скончался, поэтому реализацией занимался ГАП Андреа Морганте (Andrea Morgante) при участии своей новой мастерской Shiro Studio. Он же выступил в качестве дизайнера экспозиции.
Музей Энцо Феррари © Studio cento29
Главная часть постройки — ярко-желтая алюминиевая крыша криволинейного профиля; при площади в 3 300 м2 это самое большое перекрытие из этого материала, поэтому при строительстве потребовались консультации инженеров-судостроителей, хорошо знакомых с созданием из металла крупных объемов сложного профиля. Ее поверхность прорезают 10 поперечных окон – «воздухозаборников», напоминающих решение кузова Ferrari. Сквозь них внутрь попадает солнечный свет, а в жаркие дни — свежий воздух. Цвет «моденский желтый» является фирменным цветом Ferrari (на таком фоне гарцует черный конь ее марки), а также официальным цветом Модены.
Музей Энцо Феррари © Studio cento29
Вогнутый главный остекленный фасад постройки как будто обнимает расположенный рядом дом Энцо Феррари. Это здание, построенное его отцом в 1830-х годах, вмещает биографическую экспозицию в бывших жилых пространствах и большой мастерской, а также административные помещения.
Музей Энцо Феррари © David Pasek
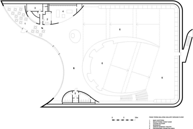
Чтобы музей не превосходил соседний дом по высоте, он частично утоплен в землю. Интерьер нового корпуса представляет собой единый выставочный зал, где белые пол и стены плавно перетекают друг в друга. Потолок затянут светлой мембраной, напоминающей покрытие крыши салона автомашины. Там можно единовременно экспонировать 21 автомобиль, каждый из которых приподнят на 45 см над полом, чтобы подчеркнуть красоту его дизайна.
Музей Энцо Феррари © David Pasek
Книжный магазин, кафе, билетная касса и туалеты заключены в двух желтых «модулях», фланкирующих вход изнутри. Также в здании находятся конференц-зал и образовательный центр.
Музей Энцо Феррари © Andrea Morgante
Среди использованных эко-технологий — естественное проветривание (окна открываются автоматически, по показаниям термо-сенсора), геотермальная система охлаждения и отопления помещений, использование «серой» воды и солнечной энергии.
Музей Энцо Феррари © Studio cento29
Следует отметить, что компания Ferrari не в первый раз работает с видными архитекторами: на территории ее завода в Маранелло находятся корпус аэродинамической трубы, спроектированный Ренцо Пьяно, и исследовательский центр Массимилиано Фуксаса.
Музей Энцо Феррари © Studio cento29
Музей Энцо Феррари © Andrea Morgante
Музей Энцо Феррари © Andrea Morgante
Музей Энцо Феррари © Andrea Morgante
Музей Энцо Феррари © Andrea Morgante
Музей Энцо Феррари © Andrea Morgante
Музей Энцо Феррари © Andrea Morgante
Музей Энцо Феррари © Studio cento29
Музей Энцо Феррари © Studio cento29
Музей Энцо Феррари © Andrea Morgante
Музей Энцо Феррари © SHIRO STUDIO | Andrea Morgante
Музей Энцо Феррари © SHIRO STUDIO | Andrea Morgante
Музей Энцо Феррари © SHIRO STUDIO | Andrea Morgante
Музей Энцо Феррари © SHIRO STUDIO | Andrea Morgante
Музей Энцо Феррари © SHIRO STUDIO | Andrea Morgante
Музей Энцо Феррари © SHIRO STUDIO | Andrea Morgante
Музей Энцо Феррари © SHIRO STUDIO | Andrea Morgante
Музей Энцо Феррари © SHIRO STUDIO | Andrea Morgante
Музей Энцо Феррари © SHIRO STUDIO | Andrea Morgante
Музей Энцо Феррари © SHIRO STUDIO | Andrea Morgante
Музей Энцо Феррари © SHIRO STUDIO | Andrea Morgante
Музей Энцо Феррари © SHIRO STUDIO | Andrea Morgante
Музей Энцо Феррари © SHIRO STUDIO | Andrea Morgante
客服
消息
收藏
下载
最近
































