查看完整案例

收藏

下载
Casa Oculta
Una vivienda diseñada por Estudio STGO, en Rosario, Argentina.
Fotografía Federico Cairoli
Ubicada en un lote no convencional en la ciudad de Rosario, Casa Oculta cuenta con un frente angosto de 3,40 metros que se ensancha hacia el centro de la manzana, donde anteriormente funcionaba un taller mecánico del barrio. La casa busca pasar desapercibida y ser un refugio en su contexto urbano.
Fotografía Federico Cairoli
La premisa de diseño fue generar una casa con patio ubicada en la zona céntrica de la ciudad, evitando trasladarse a las afueras, manteniendo la privacidad y adaptándose a las características de estos entornos urbanos. Siendo que predominan los edificios de vivienda en altura, el objetivo fue lograr espacios iluminados, ventilados y con visuales protegidas.
Axonométrica
Desde la calle, el portón totalmente ciego nos impide ver que sucede hacía su interior. Al ingresar, a través de un patio semicubierto y vegetado que funciona como cochera, esta percepción se desvanece a medida que se recorre la casa.
Fotografía Federico Cairoli
Con el fin de optimizar la superficie y aprovechar el ingreso de luz natural, se proyectó un núcleo en el centro de la planta. Esta solución permite una distribución eficiente y fluida creando una sensación de amplitud y cohesión en todos los espacios.
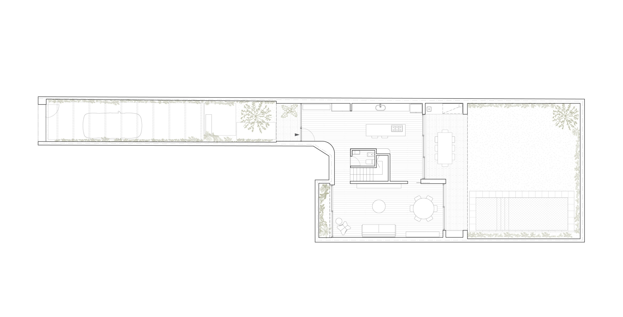
Planta baja
Fotografía Federico Cairoli
En planta baja, la cocina toma un rol protagonista y se convierte en el corazón de la casa. Propone límites flexibles entre la galería y el jardín, a través de grandes ventanales.
Fotografía Federico Cairoli
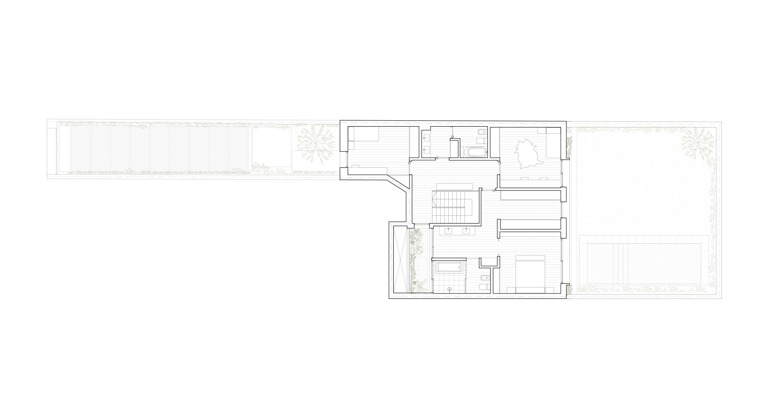
La planta alta se organiza para ofrecer privacidad y comodidad a los residentes, con un distribuidor central iluminado naturalmente desde el cual se accede a los tres dormitorios.
Planta alta
Fotografía Federico Cairoli
La última planta cuenta con un espacio flexible que utiliza las terrazas como una expansión del habitar doméstico, aprovechando el asoleamiento de las mismas, especialmente en invierno. Esta dualidad entre una casa que se oculta y una terraza que se abre al exterior, permite seguir manteniendo la relación con el entorno.
Fotografía Federico Cairoli
Estudio STGO (Francisco Pomar, Lisandro Lopez)
Andres Acosta
290 m2 (terreno), 275 m2 (construido)
Rosario, Argentina
2021-2023
H21
Marcelo Soboleosky (ingeniería)
Federico Cairoli
客服
消息
收藏
下载
最近














