查看完整案例

收藏

下载
戈者设计
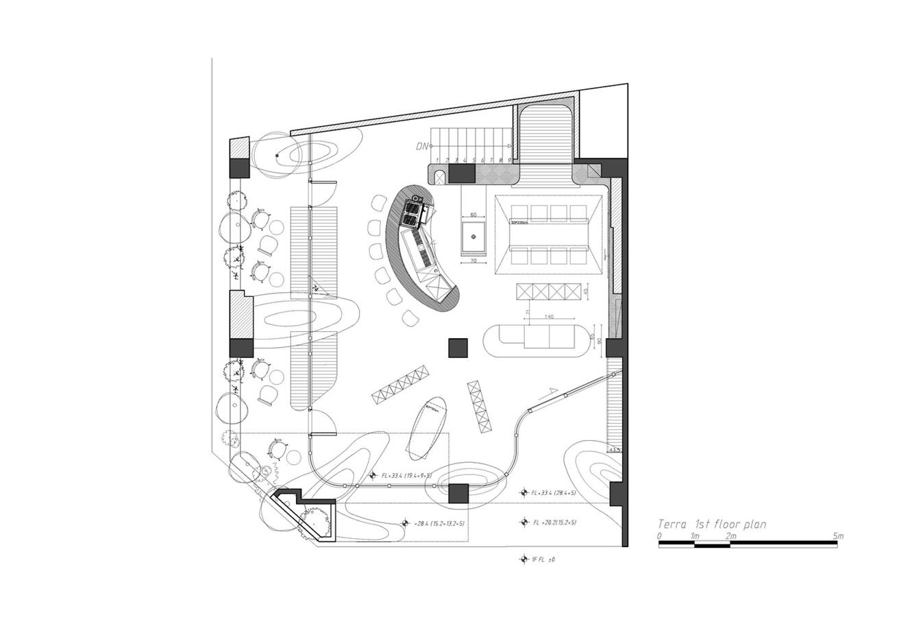
热带雨林中的巧克力主题清吧设计
Erra是一家巧克力主题的清吧设计,即使巧克力零售店又是咖啡吧和清吧。厨师周游世界寻找各种可可豆,从南美洲,印度到亚洲和其他地方。“从bean到酒吧”是品牌的目的,允许顾客口味最原始的味道可可开始,并享受它的导数或巧克力甜点和饮料酒和其他产品。
品尝和探索巧克力甜点和饮料的本质其实是“体验自然”。我们把可可豆这种自然的果实变成各种各样的食物。不同国家和地区所产水果的味道不同,反映了气候、土壤、日照等自然因素的差异。此外,在与业主的访谈中,业主反映了他在中美洲和南美洲农业技术教学小组以及在森林中生活的经历。这些都促使我们希望这个房间的设计可以更加“自然”。
我们以“自然侵入室内”和“雨林中的BAR”为主要概念,开始设计这座位于老社区角落的30年历史的公寓楼的一层,结合各种自然特征和元素来呈现整体空间。
首先,我们将原有的室内区域下陷1.5 – 2米,堆积土堆,种植植物,并使用软设计手法在旧公寓的一层创造出一个花园般的空间。想要重塑角落空间的形象,对社区更加友好。
通过增加更多的绿化和景观,甚至留出前院入口供社区居民驻足休息,让新品牌以诱人的形象和空间风格融入社区,给商业空间一种更温暖的社区和局地感。让商业空间更融入当地社区。
上面提到的休息空间在这里变成了一个室外的就餐区域,以植物和土丘为边界,让使用者体验到被自然包围的感觉,但不过分划分整体空间,只是一种置身自然的感觉。
空间似乎有边界,但它们是相互连接的。通过这种方式,光线和风可以很容易地通过周围收缩的走廊进入基地。阳光通过树枝和气流在空间中自由流动,创造了更舒适的基础微气候,让使用者被植物包围,享受用餐时间。
“自然侵入室内”的主题贯穿整个场馆。我们让室外的植物和土堆延伸到室内,“自然蔓延”的设计手法使室内氛围更加自然,模糊了室内外的界限。这延伸了视觉,为室内使用者创造了“植物和自然从外部向内部蔓延”和“被自然包围”的感觉。
通过放射性平面设计手法,种植堆、展示架等都指向室内酒吧,也可以理解为偏离酒吧为中心。这种设计手法让室内使用者的视觉向外延伸,产生视觉的流动性,放大空间体验,让心情更加自由;而对于户外人员来说,它创造了一个单点消除的视觉吸引效果,增加了路人的好奇心。
我们刻意将移动线条做成自然环境中蜿蜒曲折的“雨林”路径,将整个方案看作是几条循环移动线条的组合。空间中的非线性行走路径使人们无法直接感受到空间的范围。步行体验更自然、更有趣,也让空间更流畅。
外墙采用透明材料(玻璃),加强内外联系和模糊边界的设计意图。实木框架和透明展示架象征着自然森林的视觉感,弯曲的玻璃外墙体现了空间的流动性。室内的整体色彩方案源自“土壤”,呼应自然水果的主题,并使用可可豆水果设计展示架、蛋糕柜和吧台。
吧台也是用磨碎的水果和可可豆壳作为颜料,我们请厨师和我们一起手绘,创造出更自然的质感,秉承热带雨林的主题。
客服
消息
收藏
下载
最近









