查看完整案例

收藏

下载
戈者设计
上海黄浦江畔的米其林级沉浸式体验的泰国菜餐厅设计
泰珍荟Siam Memory泰国菜餐厅设计,位于BFC外滩金融中心。BFC有着418米一线望江视野,可以一览陆家嘴天际线,又靠着历史悠久的豫园,传统与现代的上海在这里交融。
时间和空间是人们认知的一种错觉,于现代人而言,我们总是在时间中寻找永恒,在空间中探索存在。
设计从来不是为了制造新意,而是在经典中创造出更多的可能,跨越文化和地理的距离,延伸向更广阔的世界。日常场景勾勒着都市人的生活轨迹,他们穿行于一个个精心造就的空间里,在沉浸式的体验中获得新的活力。
餐厅主厨是泰国宝藏厨师Noom Chantrawan,连续四年带领餐厅摘得米其林一星,继深圳后,在上海开了第二家泰珍荟Siam Memory,在坚持泰国传统味道的同时,不失国际化创新,让食客沉浸于独一无二的泰餐体验中。
九形设计从在地性方面考量,综合餐厅所处的位置和商业氛围,以美食作为媒,和都市文化交融,通过设计为泰式的美食烟火气中注入海派风情。
九形从梳理泰国文化作为出发点,浓缩提炼,以建筑作为文化属性的直观立体呈现,将东南亚的典型设计符号运用到空间的多种细节中,标志性图案是地域所特有的,独特的形态能快速建立情感联系和记忆点,传递出泰国的异域风情。
空间特意留有一面墙投影泰国的戏剧,作为当地美学艺术的最直接表达,故事人物与观者互动,让食客多维度感受泰国的异域风情。
入口长长的泰式走廊充满仪式感,金属镂空花纹渗透出点点光芒,餐厅的外观形象也是品牌重要的符号之一,没有过多的装饰,克制的表达,黑金配是泰珍荟的品牌识别色,沉稳而静谧。
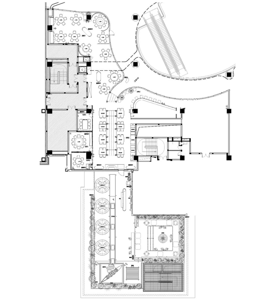
餐厅内的区域划分依据两条线展开,一是以食客的视角作为出发点,了解人在空间里的行为心理;另一个是以餐厅服务人员的视角,满足其服务流程的需求,动线流畅,减少与客人的路径交叉,让对于行为的设计无形隐藏起来。
泰国建筑主导性坡屋顶、对称性的空间布局以及出挑遮阳构建,不仅带有神圣性,又符合冥想与禅修空间的使用,形成了自由穿梭的流动性,中轴两侧便是用餐区域。九形以设计+研究的方式,探讨空间自身的语言,糅合建筑与文化的边界,创造出具有精神性的场所,简洁有力富有现代感。
通过设计让空间能说话会表达可传播,以达到短时间让食客选择进入,通过美味的菜品刺激味蕾,以精致的服务产生舒适的体验感。空间是个载体,空间所能提供的就是一个让所有人都待着舒服的地方。
空间尺度以满足人在其中的呼吸感为主,灯光氛围满足在地性消费群体的需求,不喧宾夺主让就餐客人更舒适,不被过度关注也不会被忽视。
将泰国标志性的龙首形象加入空间,墙面的设计上加入了代表东南亚的藤编元素,与灯光结合,微弱的光透过藤编缝隙渗透出来,似隐似现,可以尽情享受食物和交流的乐趣,散发出温暖的气息。
地面铺设的东南亚风格瓷砖,饱满清新的色彩,弥漫着自然清爽以及古朴的韵味,让都市中忙碌的人找到轻松愉悦的舒适感。九形为餐厅独家设计了一款吊灯,最终呈现出璀璨夺目的光芒。
卡座区简洁优雅,张弛有度,在冷暖色调中平衡,充满秩序感,水晶灯流光溢彩,充满复古气息的色调,在一瞬间将人带入旧上海的风情里。酒吧区流畅的弧形设计光彩夺目,悬挂式瓶架使客人可以享受一杯酒的时间,远眺露台的风景,暂时忘却烦恼,享受一天中最理想的时刻。
谷崎润一郎在《阴翳礼赞》中写道:“美,不存在于物体之中,而存在于物与物产生的阴翳的波纹和明暗之中。”中国人倾心于明暗之间的阴翳之美,阴翳意味着放松和闲适,是一种精神上的愉悦与享受。以富有层次的灯光设计产生隐秘的美感,在这种隐秘的美感中获得真实的感知力,沉浸于美食、环境、身边的人。
外滩是上海的核心地带,有着标志性的景观资源,在这个寸土寸金的位置拥有一个人与户外空间对话交流的露台空间极其难得。
通过景观、休闲、商业融合创造活力,以柔和的色彩、线条,充满自然气息的水景、亭子、动物雕塑与周围的高楼形成对话,创造出宁静的气息,让公共空间和自然环境融入到城市的肌理中。
从开放到半围合,再到完全私密,再到露台空间,泡泡屋面向一览无余的户外风景,筑起了一道透明的“壳”,在实与虚、开放与私密中突破界限,融入城市又与城市保持距离。
露台以白色细沙、水系、和木质亭子营造出海岛风情,用现代的手法制作了四盏大象形态的落地灯,高低错落的座椅和具有泰国风的靠包软垫来衬托整体的氛围,水中逼真的暹罗鳄雕塑都在营造独特的体验感。
项目信息
项目名称 | 泰珍荟Siam Memory
项目位置 | 上海
项目面积 | 500㎡
设计团队 | 九形设计
创意总监 | 周晓
设计主创 | 高照
设计团队 | 林椿 侯璇 常斌 贾文凡 修顺喜
空间摄影 | 瀚墨视觉 叶松
项目撰文 | 回响之外 子溪
客服
消息
收藏
下载
最近















