查看完整案例

收藏

下载
Terra incognita
Алёна Кузнецова
Юлия Тарабарина
Объект: Гостиничный комплекс в Анапе
Адрес: Россия, Анапа. пр. Пионерский, 66А
Архитектор: Алексей Гинзбург
Мастерская: Гинзбург Архитектс
Авторский коллектив: А. В. Гинзбург
Гостиничный комплекс на 800 номеров, спроектированный Гинзбург Архитектс, предлагает Анапе фрагмент упорядоченной городской среды, сохраняющей курортный дух. Авторы уходят от традиционных белых фасадов, обращаясь к античному периоду истории места и даже архаике, находя вдохновение в цвете красной глины и простых, но легких формах.
В конце 2021 года был принят новый генплан Анапы, который предполагает, что строительство многоквартирной жилой застройки значительно сократится, а курортных объектов – увеличится. Один из таких объектов, гостиничный комплекс на 800 мест, планируется начать строить в ближайшее время. Как «Коммерсант», «проект станет одним из крупнейших на гостиничном рынке Краснодарского края».
Участок располагается в стороне от центральной части города, зато в пешей доступности от железнодорожного вокзала и Пионерского проспекта, который ждет масштабную реконструкцию в качестве 12-километрового променада. До берега моря – около километра. Судя по карте Wikimapia, раньше на этом месте был детский лагерь, сейчас – прямоугольный пустырь площадью 7,5 га, на котором есть несколько недостроенных коттеджей. В соседях – военный госпиталь, санаторий «Черноморская зорька» и наделы полей. Алексей Гинзбург артистично характеризует это место как in the middle nowhere.
Гостиничный комплекс в Анапе © Гинзбург Архитектс
Гостиничный комплекс в Анапе © Гинзбург Архитектс
Гостиничный комплекс в Анапе © Гинзбург Архитектс
Гостиничный комплекс в Анапе
© Гинзбург Архитектс
Поскольку контекста действительно не так много – как и ограничений – авторы решили отталкиваться от правильной формы участка и собственных предпочтений.
Исходя из экономики проекта архитекторы разделили комплекс на несколько «лотов», которые будут привлекать разную аудиторию. Со стороны вокзала и Симферопольского шоссе располагается протяженное здание четырехзвездочной гостиницы и многоуровневый паркинг со спортивной площадкой на кровле. Широкая полоса благоустройства и ось внутриквартального проезда отделяет их от зданий апартаментов, собранных вокруг большого двора с бассейном и еще одной осью пешеходного бульвара, который соединяет территорию с проектируемой улицей. По периметру участок опоясывает пожарный проезд с разворотным кругом и открытыми парковочными местами у гостиницы, их скрашивают островки озеленения.
Гостиничный комплекс в Анапе. Генплан
© Гинзбург Архитектс
Для всех зданий архитекторы выбирают единую модульную сетку фасада и единый облицовочный материал – композитные панели или штукатурку цвета красной глины. Алексей Гинзбург поясняет, что в этой работе хотелось уйти от привычной белой архитектуры черноморских санаториев и обратиться к более древней истории места, когда Анапа была античным городом Горгиппия с домами из сырца и камня, с черепичными крышами, круглыми печами и
амфорами
. Тогда город не был ослепительно белым.
Это не единственная работа мастерской в терракотовой гамме – взять хотя бы проект
гостиницы
в Туапсинском районе (2021); если сравнить их, становится понятно, что источники поисков могут быть значительно шире, чем древнее прошлое Анапы, а найденное решениеxa0– скорее «коллаж образов, связанных с солнцем, югом, насыщенным колоритом и ярким темпераментом». В коллаже угадываются такие прообразы, как, к примеру,
вилла Малапарте
на острове Капри, а может быть, даже и ранние
работы
Зураба Церетели для причерноморских городов. В целом красная охра – это один из любимых цветов древности, а глина древнейший строительный материал, и дерзость подчинения всей постройки целиком не самому тривиальному оттенку освежает восприятие именно через аллюзии, связанные в архаикой и археологией. Заставляет нас вспомнить какие-то «тепе», плотно застроенные глинобитные города, где простые поверхности, испещренные множеством проемов, похожи на пористую шоколадку в разрезе. В таком смысловом контексте кадки с цветами на лоджиях напоминают висячие сады древнего Вавилона, который был построен, как мы помним, целиком из глины.
И в то же время еслиxa0гостиница в Туапсе скульптурна как парус на скале и выстроена по правилам модернистского отеля – как знаковый объект, то в Анапе корпуса не только скорее протяженны, спокойны и рациональны, но их модульная сетка кажется рассчитанной на самовоспроизведение формата.xa0Как будто перед нами зародыш городской застройки среднего масштаба, идеального, к слову сказать, с позицийxa0«Нового урбанизма», от 4 до 7 этажей.xa0Его появление здесь, в полях, в несколько рыхлом курортном окружении, где коттеджи соседствуют с многоэтажками, склонно дисциплинировать структуру пространства, предложить ему – как гипотезу – новый ритм и несколько иной, чем раньше, путь развития.
Гостиничный комплекс в Анапе
© Гинзбург Архитектс
О сетке хочется сказать отдельно. Здание гостиницы она «обнимает» целиком, образуя тонкий «экзоскелет»: где-то линии расчерчивают лоджии характерных для юга двухслойных фасадов, а где-то структурируют пустоты, продолжаясь «второй кожей» на торцах здания, в верхнем ярусе образуя перголу, которая маскирует террасу ресторана, запланированного на 7 этаже (здесь вспоминается солярий дома Наркомфина, хотя прямого цитирования вовсе нет). В нижнем ярусе та же решетка перерастает в пилонады галереи, а в торцевых частях – в проницаемые пространства на тонких «ногах». И здесь сложно не вспомнить московские дома «на ножках», и, конечно же, марсельскую Unité d’habitation, хотя в данном случае фрагменты открытых пространств под зданием – сравнительно небольшие и скорее обозначают свое присутствие.
Гостиничный комплекс в Анапе
© Гинзбург Архитектс
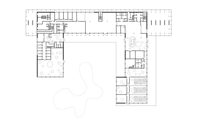
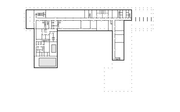
Если присмотреться к зданию гостиницы, то можно заметить, ее 7-этажный объем состоит из двух: пластины, вытянутой вдоль внешней улицы и «приведенной к параллелепипеду» трехмерной решеткой «экзоскелета», и П-образного одноярусного корпуса. Его крылья, в одном из которых расположено СПА, а в другом конференц-зал, далеко выдвигаются в сторону двора, а пластина гостиницы кажется поставленной на него сверху. Это слегка асимметричное: в восточной части крупнее, на западе чуть меньше, построение выглядит очень логичным с точки зрения распределения функций, и хорошо прочитывается на плане 1 этажа.
Гостиничный комплекс в Анапе © Гинзбург Архитектс
Гостиничный комплекс в Анапе. План 1 этажа
© Гинзбург Архитектс
Объемная решетка достаточно очевидно напоминает опыты деконструктивизма по материализованной «разлиновке» пространства, но отличается от прообразов заметной регулярностью, симметрией сетчатого «чехла» здания. А тонкие пропорции линий наводят на сравнения с проектами, использующими деревянный каркас, хотя в данном случае о деревянных конструкциях речь не идет, значение трехмерной сетки – композиционное.
Апартаменты ниже по высоте, их этажность варьируется от 4 до 6, паузы между корпусами возникают чаще, и решетка здесь спокойнее: на торцах домов воспроизведена рельефом, также как и на фасадах СПА и конференц-центра; хотя местами объемы все же сращены между собой с помощью парящей в пространстве сетки.
Гостиничный комплекс в Анапе © Гинзбург Архитектс
Гостиничный комплекс в Анапе
© Гинзбург Архитектс
Вдоль Железнодорожной улицы помещения первых этажей отданы ритейлу, остальной объем занят номерами разной типологии, от студий до трехкомнатных апартаментов. Террасы на крышах открыты для всех постояльцев.
Вокруг гостиничных корпусов сформирована «санаторная» среда, которая позволяет провести на территории комплекса весь день: система зеленых бульваров, бассейны с шезлонгами, спортивные и детские площадки.
Гостиничный комплекс в Анапе © Гинзбург Архитектс
Гостиничный комплекс в Анапе
© Гинзбург Архитектс
Проект рационально решает предложенную задачу. Но главное его достоинство и интерес – в сочетании достоинств курортного духа и упорядоченной городской среды: с системой осей, фронтом улиц, внятной транспортной схемой и иерархией пространств. В этом смысле предложение Гинзбург Архитектс создает важный для многих российских приморских городов прецедент.
Гостиничный комплекс в Анапе. План -1 этажа © Гинзбург Архитектс
Гостиничный комплекс в Анапе. План 2-4 этажа © Гинзбург Архитектс
Гостиничный комплекс в Анапе. План 5-8 этажа © Гинзбург Архитектс
Гостиничный комплекс в Анапе © Гинзбург Архитектс
客服
消息
收藏
下载
最近


















