查看完整案例

收藏

下载
Страсти на Страстном
Наталья Коряковская
Объект: Предпроектное предложение строительства гостиничного комплекса в составе проекта реставрации с элементами воссоздания по адресу Страстной бул., 11
Адрес: Россия, Москва. Страстной бульвар, 11, ЦАО
Мастерская: «Моспроект-2» им. М.В. Посохина, мастерская №7 «Моспроект-2» им. М.В. Посохина, мастерская №8
Авторский коллектив: ГУП «Моспроект-2» им. М-В .Посохина. Архитекторы: Посохин М.М. (рук.), Колосницин В.В., Смирнова Е.Ю.
Первое и пока единственное заседание Президиума обновленного ЭКОСа состоялось 26 июня. Были рассмотрены два предпроектных предложения. Первое, предполагающее радикальную перестройку дома Елагиной на Страстном, эксперты единогласно отклонили. Этот проект не только грозит уничтожить хорошо сохранившуюся историческую усадьбу, но и представляет собой карикатурную копию расположенного по соседству здания Николая Лызлова. Относительно второго – проекта восстановления-достройки здания бывшей Некрасовской библиотеки, речь шла преимущественно о деталях, и проект был утвержден с небольшими поправками. Публикуем также протоколы решений ЭКОСа.
Предпроект строительства гостиничного комплекса в составе проекта реставрации с элементами воссоздания, Страстной бул., 11. ГУП «Моспроект-2» им.М.В.Посохина, Мастерская №8, С.Д.Пошвыкин, С.В.Суздальцев.
Дом потомственной почетной гражданки С.И. Елагиной, возведенный в 1890-е годы по проекту архитектора А.А. Драницына, расположен на Страстном бульваре под номером 11. Некогда особняк занимал доминирующее угловое положение между бульваром и несуществующим ныне проездом, и именно этим объясняются его Г-образная конфигурация и наличие двух разных, но одинаково нарядных фасадов. Южный, с двухколонным портиком, обращен к Страстному, восточный, с портиком из шести пилястр, – к нынешнему
Предпроект строительства гостиничного комплекса в составе проекта реставрации с элементами воссоздания, Страстной бул., 11. ГУП «Моспроект-2» им.М.В.Посохина, Мастерская №8, С.Д.Пошвыкин, С.В.Суздальцев.
Каретному ряду. Отметим, что дом сохранил не только фасады и ограду, но и подлинные интерьеры – двери, плафоны, печи. В чем, пожалуй, и заключается его главная ценность для современной городской среды. В 1920–1938 годы здесь располагалась редакция журнала «Огонек», и на доме установлена мемориальная доска его основателю и главному редактору, известному общественному деятелю М.Е.Кольцову.
Сегодня особняк по праву считается выявленным объектом культурного наследия и ждет статуса памятника – соответствующее решение до конца года должна принять (т.е. подтвердить или отказать в приеме под госоохрану) Межведомственная комиссия по постановке на государственную охрану объектов регионального значения, которой руководит Владимир Ресин.
Однако, как это, увы, часто случается в Москве, именно в то время, когда тянется бюрократическая процедура по присвоению объекту наследия охранного статуса, появляется проект его реконструкции, грозящий кандидату в памятники физическим уничтожением. Именно такой проект «строительства гостиничного комплекса в составе проекта реставрации здания с элементами воссоздания в режиме регенерации», выполненный архитекторами Станиславом Пошвыкиным и С. Суздальцевым из мастерской №8 «Моспроекта-2», был вынесен на рассмотрение ЭКОСа. И нужно признать, что даже ко многому привыкших членов Экспертного совета эта работа потрясла своим пренебрежительным отношением к объекту наследия.
Плановое реставрационное задание Москомнаследия, выданное в 2007 году, предусматривало проведение ремонтно-реставрационных работ с приспособлением подвального этажа и чердачного пространства, воссоздание несохранившегося одноэтажного зимнего сада на основе архивных чертежей, а также разработку проекта благоустройства территории в границах отведенного участка.
Однако в проекте Станислава Пошвыкина эти рекомендации вылились в практически полную перестройку особняка: проект предусматривает сохранение лишь части его корпуса по Страстному бульвару и снос всего восточного крыла, за исключением 6-колонного портика, который просто «навешивается» на новый объем. На месте разбираемых фрагментов дома, занимая собой практически весь участок и полностью уничтожая все деревья его двора возводится (очевидно, в режиме «регенерации») гостиничный комплекс переменной этажности на 32 апартамента с подземной 5 уровневой автоматизированной парковкой. А под видом воссоздания зимнего сада (сведения о котором сохранились в чертежах начала XX в.) во дворе дома появляется 5-тиэтажное полностью остекленное здание с деревцами на крыше.
Любопытно, что особняк Елагиной – ближайший сосед хорошо известного нового здания Николая Лызлова. Это здание было построено на месте разрушенного особняка Сухово-Кобылина: правда, к чести архитектора Николая Лызлова надо сказать, что он памятника не ломал, а пришел на площадку тогда, когда от литературно знаменитого особняка осталось только требование согласующих инстанций восстановить его в прежних формах. Что и было сделано – на сильно подросшую бетонную основу «натянули» фасад, стилизованный под «эклектику» XIX века (но не точную копию утраченного особняка). Пространство за имитацией особняка заняло крупное (в масштабе соседних доходных домов) здание, архитектура которого явным образом перекликается с «брежневским» модернизмом.
Так вот что любопытно – дом Лызлова был по-видимому здесь понят архитекторами 8-й мастерской «Моспроекта-2» как абсолютный и непререкаемый авторитет – авторы исключительно дотошно воспроизвели логику лызловского проекта. Неискушенному наблюдателю может показаться, что архитекторы хотели заручиться поддержкой соседнего здания, многократно показанного на выставках и опубликованного (уж не для согласования ли?). Проект Станислава Пошвыкина удивительно похож – тот же обрубок памятника впереди, те же стеклянно-бетонные вертикали сзади. Сохранившийся малоэтажный фронт застройки Страстного бульвара, основу которого составляют знаменитые классические здания бывшей Екатерининской больницы, примыкающий к проектируемому зданию с другой стороны, авторами вообще в расчет не принимается.
Но есть два существенных различия: во-первых, дом Лызлова, несмотря на все «обкомовские» ассоциации был все же выполнен достаточно тонко – настолько, что критики не могли решить, чего же в нем больше, ар-деко или послевоенного модернизма.
В проекте Пошвыкина этих тонкостей, увы, не наблюдается – ни в пропорциях, ни в деталях. Что особенно видно на той иллюстрации, где архитекторы «врисовали» свой проект в карандашную картинку мастерской Николая Лызлова. Вместо того, чтобы помочь проекту, это сравнение ему вредит – новый сосед, простите, выглядит плохой, хотя и старательной копией. Хотя эта копия снабжена разными модными экологическими «прибамбасами» (привет «летнему саду» мадам Елагиной): деревья не крыше, ну прямо Версаль, пострижены под шарики и конусы; атриум увит лианами; в вестибюле кусты. Высота здания Пошвыкина ниже, чем у соседнего дома, зато подземных этажей больше – как будто бы дом забили в землю большим молотом… Впрочем, можно конечно сказать, что здание создает симметричную пару и вписывается в ансамбль лызловского здания. Но как только посмотрим на картинки, становится ясно – нет, все же это плохая копия, а не ансамбль.
И наконец, во-вторых, что особенно важно: дом Лызлова был построен «с нуля» уже после разрушения усадьбы, в данном же случае усадьба еще цела, и более того, ожидает статуса памятника. Еще не поздно остановить процесс.
Пожалуй, остается только добавить, что площадь нового строительства превышает габариты существующего особняка в 11 (!) раз. Впрочем, и это еще не самое интересное в проекте 8-й мастерской.
Самое интересное – это то, что Москомнаследие не нашло в предложениях архитекторов никаких нарушений и одобрило предпроект для дальнейшей работы. Этот проект – очень характерный, прямо-таки типовой пример манипулирования с так называемым «предметом охраны» и границами территории памятника. В данном случае (как и во многих других) предметом охраны почему-то была признана только часть здания; территорию памятника, на которой официально запрещено новое строительство, в несколько приемов (читай: заседаний разных советов) сократили до пятна дома. Что, собственно, и послужило основанием для разработки варварского проекта. Что же до городских структур, которые, казалось бы, обязаны защищать интересы московской старины, то они, как красноречиво следует из данного примера, запросто закрывают глаза на самые грубые нарушения принципов реставрации объектов наследия.
Президиум ЭКОСа единогласно отклонил проект Станислава Пошвыкина. В решении Совета говорится: «Планируемые мероприятия практически приведут к полной утрате историко-культурной ценности выявленного объекта культурного наследия, радикальной трансформации его восприятия и нанесут ущерб историко-градостроительным характеристикам территории, примыкающей к Страстному бульвару». Некоторые члены Президиума ЭКОСа также высказались за то, чтобы отложить рассмотрение представленных предпроектных предложений до получения разъяснений от органов охраны памятников – в частности, о том, как подобный проект скажется на перспективах включения выявленного объекта культурного наследия в реестр.
Надо заметить, что принятое в июне решение ЭКОСа, по-видимому, возымело свое действие, и до настоящего времени предпроект пока не появлялся на регламентной комиссии у главного архитектора Александра Кузьмина.
Судьба второго рассмотренного на заседании ЭКОСа объекта – дома Салтыкова на Бронной (Тверской бульвар, вл.27/20/1) на данный момент выглядит сравнительно менее печальной. Здесь речь идет о «регенерации и реставрации» построек, выживших после варварского уничтожения основной части усадьбы в 1990-е. Иными словами, почти все что можно здесь уже сломали, теперь собираются восстанавливать силами того же «Моспроекта-2», но уже под руководством Владимира Колосницына (М. Посохин, В. Колосницин, Е. Смирнова).
На сегодняшний день от усадьбы, счастливо уцелевшейxa0 при пожаре 1812 года, но не сумевшей пережить лихие 1990-е, сохранился лишь главный дом постройки Матвея Казакова, в котором до 2002 года находилась библиотека им. А.Н. Некрасова. С западной стороны под номером 25/18 к участку примыкает объект культурного наследия федерального значения – городская усадьба А.А. Яковлева, XVIII-XIX вв., сегодняшним москвичам более известная как Литературный институт.
Проект (об одной из неудавшихся попыток его согласования на общественном совете 23 апреля 2009 года мы писали) предусматривает реставрацию сохранившегося здания-памятника (в нем разместится государственная художественно-эстетическая школа для детей-инвалидов), а также восстановление периметральной застройки владения с воссозданием уличных фасадов основных корпусов (все это предназначено под апартаменты). В процессе восстановления, правда, будет построен новый 4-этажный объем, а также «доснесут» выжившую конюшню во дворе, и объем будущей постройки предполагается несколько покрупнее бывшей усадьбы… В сущности, это конечно никакое не восстановление утраченного в 1990-е, а новое строительство при сохранившемся доме. Ну что поделать, зато функцию изменили с офисной на жилую.
Итак, коли уж увеличенные объемы «воссоздаваемой» усадьбы уже согласованы многими инстанциями и не подлежат пересмотру, приходится рассуждать о деталях. Детали заключаются в том, чтобы сделать декор фасадов поближе к исходному классицизму бывшей усадьбы и приблизить этот декор к ранее согласованному проекту реставрации. А также убрать добавленные авторами со стороны бульвара аттики и заменить модернистский ленточный фасад над флигелем на нечто более сдержанное. Доработать силуэт нового здания со стороны Сытинского переулка и форму его бранмауэра со стороны усадьбы Яковлева.
В заключение Президиум ЭКОСа отметил, что благополучная реализация данного проекта возможна лишь при условии сохранения исторической планировочной структуры территории, примыкающей к Пушкинской площади. Именно поэтому в конце заседания члены Президиума обратились к главному архитектору Москвы Александру Кузьмину с письмом – просьбой представлять на рассмотрение ЭКОСа все актуальные материалы проекта реконструкции площади, а также ускорить решение вопроса об ее охранном статусе.
«ПРЕДПРОЕКТНОЕ ПРЕДЛОЖЕНИЕ СТРОИТЕЛЬСТВА ГОСТИНИЧНОГО КОМПЛЕКСА В СОСТАВЕ ПРОЕКТА РЕСТАВРАЦИИ ЗДАНИЯ С ЭЛЕМЕНТАМИ ВОССОЗДАНИЯ В РЕЖИМЕ РЕГЕНЕРАЦИИ по адресу: Страстной бульвар, д.11, стр.1 Заказчик: ООО «Страстной,11»
Проектная организация: «Моспроект-2»им.М.В.Посохина,
Мастерская №8, С.Д.Пошвыкин, С.В.Суздальцев
Историко-культурные исследования: «Моспроект-2»им.М.В.Посохина, Мастерская №20, Е.Г.Никулина, И.В.Крымова
Проект режимов использования земель и градостроительного регламента на территории зон охраны объектов культурного наследия:
НИиПИ Генплана г. Москвы, НПО-38, Е.Е.Соловьева, Т.В.Царева
Проект реставрации: Л.В.Лазарева, Е.В.Максимова
Объектом проектирования является «Дом потомственной почетной гражданки С.И.Елагиной», 1880-е гг. арх. А.А.Драницын. 1920-1938 гг. в здании располагалась редакция журнала «Огонек», на доме установлена мемориальная доска основателю и главному редактору журнала, известному общественному деятелю М.Е.Кольцову.
Особняк сохранил целостное архитектурно-художественное решение кон.XIX века, в том числе декоративное оформление фасадов и внутренних помещений. В интерьерах 1-2-х этажного здания сохранилось оформление парадной анфилады (плафоны, изразцовые и майоликовые печи, двери, парадная лестница, паркеты). Здание обладает высокой историко-культурной ценностью, является выявленным объектом культурного наследия (подтверждение статуса - протокол секции ИКЭС № 1/37 от 19.02.09).
Общая площадь существующего здания составляет ок. 600 м2..
По плановому реставрационному заданию Москомнаследия 2007 г. предусматривалось провести ремонтно-реставрационные работы с приспособлением подвального этажа и чердачного пространства, воссоздание несохранившегося зимнего сада на основе архивных чертежей, а также разработка проекта благоустройства территории в границах отведенного участка.
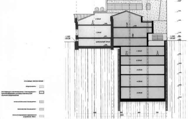
Представленные проектные предложения предусматривают сохранение лишь части корпуса по Страстному бульвару и восточной фасадной стены здания. На месте разбираемой части выявленного объекта культурного наследия, занимая практически все пятно отведенного участка, возводится 2-4-х этажная пристройка (мах.отм. - 19.75 м.) с подземной 5 уровневой автоматизированной парковкой на 48 м.м. (отм. - –21.6 м.). Общая площадь здания - 7680 м2, из них надземная - 3630 м2.
В здании предполагается разместить гостиничный комплекс на 32 апартамента.
Предпроектные предложения согласованы Москомнаследием для дальнейшего проектирования «с учетом проведения историко-культурных исследований … и разработки особых регламентов регулирования градостроительной деятельности в порядке, установленным постановлением Правительства РФ № 315». (согл.№ 16-02-900/7-(6)-2 от 05.06.2009). Указанным градостроительным регламентом, разработанным НПО № 38 НИиПИ Генплана Москвы и согласованным Москомнаследием и Росохранкультурой, в охранной зоне на исторической территории домовладения выявленного памятника допускается «компенсационное строительство в рамках специальных мер, направленных на регенерацию характеристик исторической градостроительной среды с целью создания переходного масштаба от объекта современного строительства по адресу: Страстной бульвар, 9 к мелкомасштабной застройке по Страстному бульвару с использованием следующих показателей: средняя этажность 3-5 эт. (максимальная отметка 18,8 м), процент застроенности – до 70%».
Президиум ЭКОСа не может одобрить представленные «Предпроектные предложения по строительству гостиничного комплекса в составе проекта реставрации здания с элементами воссоздания в режиме регенерации», предусматривающие разборку части здания, пристройку и надстройку выявленного объекта культурного наследия, полную ликвидацию всего природного ландшафтного окружения главного дома усадьбы и строительства на ее исторической территории 4-х этажного здания с многоуровневой подземной парковкой, поскольку планируемые мероприятия практически приведут к полной утрате историко-культурной ценности выявленного объекта культурного наследия, радикальной трансформации его восприятия и нанесут ущерб историко-градостроительным характеристикам территории, примыкающей к Страстному бульвару.
В отдельных вступлениях прозвучало предложение отложить рассмотрение представленных предпроектных предложений до получения разъяснений от органов охраны памятников о перспективах включения выявленного объекта культурного наследия в реестр в связи с проектируемыми мероприятиями по реализации проекта.
ПРОЕКТНЫЕ ПРЕДЛОЖЕНИЯ ПО РЕГЕНЕРАЦИИ И РЕСТАВРАЦИИ ПАМЯТНИКА АРХИТЕКТУРЫ «ДОМ САЛТЫКОВА НА БРОННОЙ» по адресу: Тверской бульвар, вл.27/20/1
Проектная организация: «Моспроект-2» им.М.ВПосохина, Мастерская №7, В.В.Колосницин, Е.В.Смирнова, В.В.Фадеев
Историко-культурные исследования и проект реставрации: ООО «ЦИГИ» В.И.Шередега, Б.Е.Пастернак.
Президиум ЭКОСа отмечает, что работа над проектом ведется в течение нескольких лет, предшествующая генерация проекта получала принципиальное одобрение ЭКОСа и других согласующих инстанций. Представленный проект предусматривает изменение функционального наполнения здания с сохранением основных ранее согласованных объемно-пространственных параметров. Дополнительные варианты фасадов разработаны по замечаниям Общественного совета при Мэре Москвы от 22.04.09.
В очередной раз, выражая сожаление по поводу разрушения в 1990-х гг. уникального ансамбля городской усадьбы Салтыкова, Президиум ЭКОСа считает правильным предлагаемое изменение функционального использования проектируемого комплекса, предусматривающее реставрацию стр.1 и 1А, восстановление периметральной застройки владения с воссозданием уличных фасадов основных корпусов.
В процессе обсуждения прозвучали рекомендации по уточнению объемно-пространственного и архитектурного решения отдельных элементов проектируемого комплекса, с тем чтобы в большей мере обеспечить стилистическое единство, благородную простоту и сдержанность, свойственную лучшим образцам московского классицизма, привести фасадное решение в соответствие с ранее согласованным реставрационным проектом воссоздания уличных фасадов. В частности были указаны следующие направления, по которым рекомендуется вести работу по доработке фасадов:
•xa0Уточнить решение проходной галереи и исключить появление аттиковых элементов на фасаде по Тверскому бульвару.
•xa0Отмечая положительные изменения объемных характеристик части здания, обращенной в сторону двора городской усадьбы А.А. Яковлева, XVIII-XIX вв., объекта культурного наследия федерального значения (Тверской бул., д.25/18), доработать архитектурное решение брандмауэра - как глухой стены с отдельными узкими проемами на верхних этажах, в части, отступающей от границы участка.
•xa0Учитывая вынужденный характер организации въездов в гараж на фасаде флигеля по Б.Бронной ул., считать возможным устройство аттика и плоской кровли над воссоздаваемой исторической частью здания. Разработать более «спокойное» решение фасадов дома над флигелем с учетом того, что модернистский «ленточный» вариант решения этой части здания не нашел поддержки у большинства выступавших.
•xa0Доработать силуэтные характеристики здания при восприятии здания со стороны Сытинского пер.
В заключение было отмечено, что реализация представленного проекта возможна исключительно при условии сохранения исторической планировочной структуры территории, примыкающей к Пушкинской площади. Реализация проекта освоения территории Пушкинской пл. и Новопушкинского сквера в ранее заявленных габаритах неизбежно приведет к резким изменениям восприятия воссоздаваемого комплекса усадьбы Салтыкова на Бронной.»
Предпроект строительства гостиничного комплекса в составе проекта реставрации с элементами воссоздания, Страстной бул., 11. ГУП «Моспроект-2» им.М.В.Посохина, Мастерская №8, С.Д.Пошвыкин, С.В.Суздальцев. Фасады
Предпроект строительства гостиничного комплекса в составе проекта реставрации с элементами воссоздания, Страстной бул., 11. ГУП «Моспроект-2» им.М.В.Посохина, Мастерская №8, С.Д.Пошвыкин, С.В.Суздальцев. Фасады
Предпроект строительства гостиничного комплекса в составе проекта реставрации с элементами воссоздания, Страстной бул., 11. ГУП «Моспроект-2» им.М.В.Посохина, Мастерская №8, С.Д.Пошвыкин, С.В.Суздальцев. Фасады
Предпроект строительства гостиничного комплекса в составе проекта реставрации с элементами воссоздания, Страстной бул., 11. ГУП «Моспроект-2» им.М.В.Посохина, Мастерская №8, С.Д.Пошвыкин, С.В.Суздальцев.
Предпроект строительства гостиничного комплекса в составе проекта реставрации с элементами воссоздания, Страстной бул., 11. ГУП «Моспроект-2» им.М.В.Посохина, Мастерская №8, С.Д.Пошвыкин, С.В.Суздальцев. Генплан
Предпроект строительства гостиничного комплекса в составе проекта реставрации с элементами воссоздания, Страстной бул., 11. ГУП «Моспроект-2» им.М.В.Посохина, Мастерская №8, С.Д.Пошвыкин, С.В.Суздальцев. Разрез
Предпроект строительства гостиничного комплекса в составе проекта реставрации с элементами воссоздания, Страстной бул., 11. ГУП «Моспроект-2» им.М.В.Посохина, Мастерская №8, С.Д.Пошвыкин, С.В.Суздальцев. Разрез
Предпроект строительства гостиничного комплекса в составе проекта реставрации с элементами воссоздания, Страстной бул., 11. ГУП «Моспроект-2» им.М.В.Посохина, Мастерская №8, С.Д.Пошвыкин, С.В.Суздальцев. Ситуационный план (существующие строения)
Предпроект строительства гостиничного комплекса в составе проекта реставрации с элементами воссоздания, Страстной бул., 11. ГУП «Моспроект-2» им.М.В.Посохина, Мастерская №8, С.Д.Пошвыкин, С.В.Суздальцев. Ситуационный план
Проект воссоздания внешнего облика усадебных зданий XVIII – XIX вв. А.С. Салтыковой-Поливановой на Бронной. Тверской бульвар, 27/20/1. «Моспроект-2». М. Посохин, В. Колосницын и др. Макет
Проект воссоздания внешнего облика усадебных зданий XVIII – XIX вв. А.С. Салтыковой-Поливановой на Бронной. Тверской бульвар, 27/20/1. «Моспроект-2». М. Посохин, В. Колосницын и др.
客服
消息
收藏
下载
最近















