查看完整案例

收藏

下载
戈者设计
从倾斜护堤上拔地而起悠闲自在精神的耐候钢湖边别墅设计
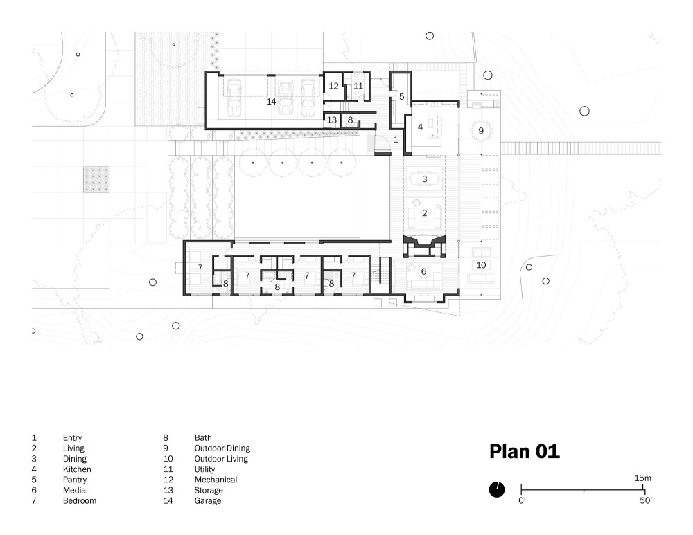
湖边山庄别墅设计从倾斜的护堤上拔地而起,体现了奥斯汀悠闲自在的精神。在湖畔度假区,您可以俯瞰高耸的本地山核桃树和秃柏树掩映下的草坪。一条小路从住宅通向游泳池、客舱和船坞。
主宅由两座侧翼组成,侧翼两侧是一个中央庭院,由一个玻璃体量连接。两翼有四间卧室和一个四车位的车库,将其部分埋入地形中,使住宅保持了低矮的外形。阶梯两侧是五颜六色的本土花坛,通向温馨的庭院,从窗户可以一瞥屋主的艺术收藏。住宅外部采用了多种耐候钢材,如覆层、扶手、烟囱、挡土墙和排水沟,并辅以经过处理的白蜡木。一条两旁种满 Palo Verde 树木的小路通向 10 英尺高的旋转玻璃前门。
住宅的核心是 1000 平方英尺的大房间。这个空间以一个雕塑般的炭灰岩壁炉为基调,连接着两翼的钢筋混凝土外墙。两面对开式落地玻璃墙让主要起居空间的景色一览无余,同时,深深的悬挑也保护了室内免受夏日刺眼阳光的照射。托盘式天花板采用隔音织物装饰,并以耐候钢镶边,使起居室和用餐区浑然一体。地板铺设的是再生长叶松木宽木板。壁炉将大客厅与非正式媒体室隔开,主人在这里看电影、播放唱片。钢制书架嵌在石灰石壁炉四周的两侧。
厨房围绕着一个带吧椅座位的大岛布置,窗台的采光很好。推拉门可以将空间打开,通向室外烧烤和用餐区。头顶上有一个 17 英尺深的悬挑结构,先界定了室外生活空间,然后再向上环绕主套房,主套房位于住宅的东南角。悬臂式缎带上的冲孔开口营造出轻盈的氛围,同时还能瞥见头顶的树冠。
楼梯采用与地板相同的再生长叶松木装饰,荧光艺术品上方的橱窗让楼梯沐浴在光线中。风化钢扶手隐藏着 LED 灯带。一楼的楼梯是一条走廊,走廊两侧挂满了色彩斑斓的油画,通往儿童卧室和客房。卧室的窗户朝南,窗外是秃柏树林立的狭窄运河,明亮而通风。楼上的主套房采用了灰色皮革、浓郁的胡桃木和深色玄武岩的色调。主卧室通向私人阳台,而淋浴间则设有一扇由悬挂枝桠遮挡的大窗户。
从倾斜护堤上拔地而起悠闲自在精神的耐候钢湖边别墅设计
客服
消息
收藏
下载
最近























