查看完整案例

收藏

下载
Gaozhou, China
中国,高州
八月中,光不是答案
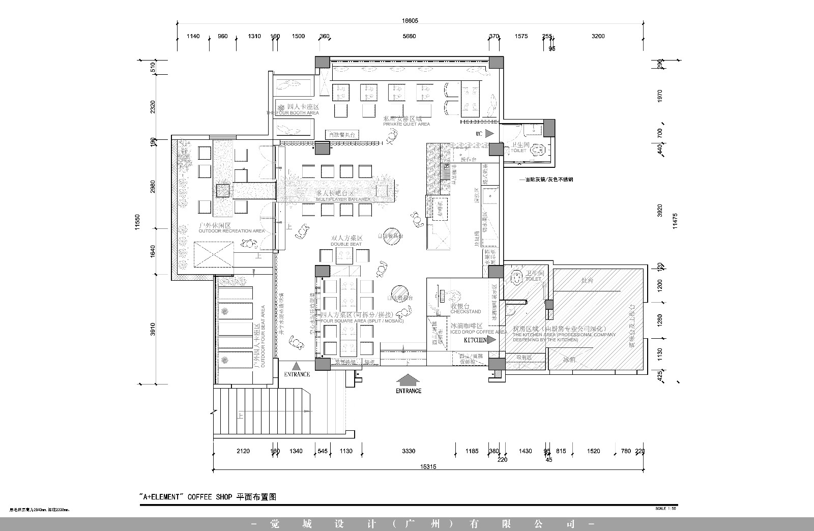
跨境空间与时间的A+Element;空间是一个静止的空壳,时间是一个幻像,十四年只用一杯空咖啡告诉你,过去、未来一直都存在。
In mid-August, light is not the answer.
A + Element of cross-border space and time; space is a static empty shell, time is an illusion, fourteen years with only a cup of empty coffee to tell you that the past, the future has always existed.
客服
消息
收藏
下载
最近


















