查看完整案例

收藏

下载
Casa Smithfield / Studio Anois
Casa Smithfield / Studio Anois
Casas
En Detalle
Dublin,
Irlanda
Arquitectos:
Studio Anois
Área:
150
m²
Año:
2021
Fotografías:
Aisling McCoy
Proveedores:
Bauder
Ikea
VINDR
Declan Crowley/ Niamh Chambers
Ciudad:
Dublin
Pais:
Irlanda
Esta antigua vivienda georgiana ha sido objeto de una extensa renovación para crear un hogar contemporáneo sostenible en el centro de la ciudad. La mayor parte de la vivienda fue destruida en un incendio en la década de 1980 y la mayoría de las características originales fueron erradicadas, dejando solo la fachada original y el muro medianero. La intención del diseño era trabajar con el tejido existente tanto como fuera posible. Se conservaron las vigas y postes estructurales existentes y se expuso la medianera de ladrillo. En la fachada frontal, se eliminó el enlucido del tablero de guijarros de cemento dañado y se reinstalaron las ventanas de guillotina corredizas.
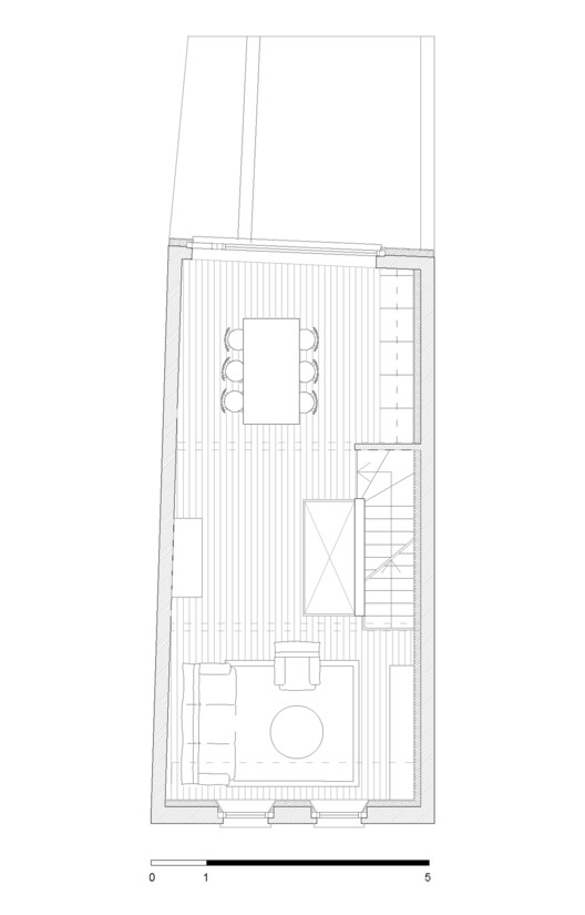
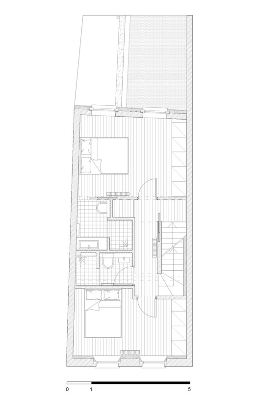
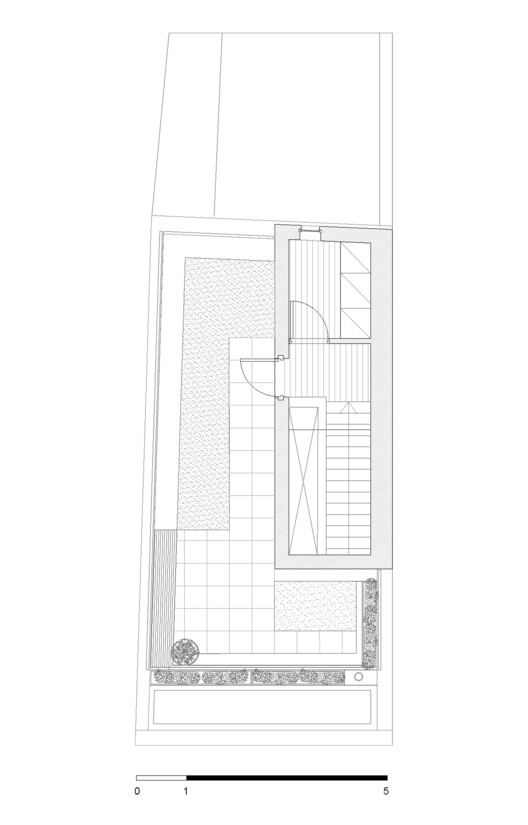
Planta
Debido a la densidad del sitio, los espacios habitables principales se trasladaron al segundo piso para aprovechar al máximo las ganancias solares a lo largo del día. Una nueva escalera central iluminada desde arriba conecta todos los pisos al tiempo que permite que la luz entre profundamente en el plan y brinda acceso a un generoso jardín privado en la azotea que aprovecha las vistas panorámicas de la ciudad.
El proyecto es limitado tanto en área como en luz, por lo que se ha utilizado una paleta de materiales pequeños y de materiales naturales atemporales para mejorar la sensación de espacio y luz. Una elegante mampara de metal abre el edificio al nivel de la calle, manteniendo la seguridad adecuada para los ocupantes.
Las áreas funcionales de la casa (servicios públicos, wc, etc.) se han comprimido en las áreas más oscuras de la casa, para maximizar la luz en los espacios de vida primarios. La propiedad ha sido renovada térmicamente, se ha instalado un sistema de calefacción con bomba de calor y se ha colocado un techo verde sedum al nivel del techo. Este es un ejemplo de cómo un enfoque sensible puede preservar y mejorar nuestro tejido construido existente al tiempo que proporciona un hermoso espacio sostenible para la vida en la ciudad.
Studio Anois
客服
消息
收藏
下载
最近





























