查看完整案例

收藏

下载
Химия цвета
Юлия Тарабарина
Объект:
Гостиница в Ярославле
Адрес:
Россия,
Ярославль.
Мастерская:
DK architects
Авторский коллектив:
Архитекторы: Григорий Дайнов (рук.., ГАП), Роман Маврин, Александр Качалов, Сергей Фомин, Роман Шатров, Ольга Украженко, Любовь Канахистова, Никита Дубов
Отель, построенный по проекту Григория Дайнова рядом с Ареной-2000 на въезде в Ярославль из Москвы, строился так долго, что истории замысла сейчас приблизительно 15 лет. По словам архитектора, именно эта работа позволила основать собственное бюро. Но здание не выглядит устаревшим, вероятно, потому что сочетает простоту объемов с яркими тщательно просчитанными «прослойками» цветного света.
Гостиница расположена на подъезде к Ярославлю из Москвы, по левую руку от Московского проспекта, но на некотором отдалении, в 600 метрах от трассы, за парком «Нефтяник», в микрорайоне Нефтестрой. Подъезжая к городу, чуть раньше, опять же по левую руку, можно увидеть лес строений огромного нефтеперерабатывающего завода компании Славнефть, одного из самых крупных на северо-востоке, так что здесь вся округа так или иначе имеет отношение к нефтяникам. Заказчик – «Ярославский Технический Углерод», подрядчик Ярнефтехимстрой.
Между тем гостиница относится к рекреационно-спортивной части экономически успешного района, рядом 3 открытых стадиона (один из них принадлежит ЯГТУ), а прямо напротив – ледовая Арена-2000 Локомотив, рассчитанная на порядка 9000 зрителей, построенная в 2001 году шведской девелоперской компанией Skanska. Арену начали строить, надеясь принять в Ярославле чемпионат мира по хоккею, и хотя он прошел в Петербурге, все равно достроили. Это довольно внушительное сооружение также стало самой большой в городе концертной площадкой, так что можно легко представить себе, как либо зрители концертов, либо болельщики и спортсмены поселяются в гостинице напротив – когда ее запустят – на расстоянии вытянутой руки от арены. Очень удобно.
Арена-2000, Ярославль; проект Skaska; расположена напротив гостиницы
Ситуационный план. Гостиница в Ярославле
Проект – давний. Григоргий Дайнов сделал его, фактически, 15 лет назад: по словам архитектора, именно благодаря этому проекту ему удалось открыть собственное бюро. Но строительство в 2008 году остановилось из-за кризиса, возобновилось в 2014, и вот, не прошло и 8 лет, как гостиницу построили. Хотя пока не открыли. Но она полностью готова.
Интересно же то, что столь давний проект в общем-то не очень устарел. Есть, конечно, изменения, к примеру, по настоянию заказчика фиброцементные плиты на фасадах заменили на керамогранит; окружили все железным забором; да и к названию гостиницы – "Соколёна" и ее предсказуемому логотипу в виде птички архитектор, по его словам, отношения не имеет. Но все это детали, такие замены по-прежнему сплошь и рядом случаются в Москве и Петербурге, что уж говорить о микрорайоне Нефтяник; искажения неприятные, но сравнительно не существенные. Поскольку основные темы сохранены и замысел считывается.
Гостиница в Ярославле
Гостиница в Ярославле
Он строится на сочетании лаконичного объемно-пространственного решения и яркой «фишки» – галерей из цветного стекла.
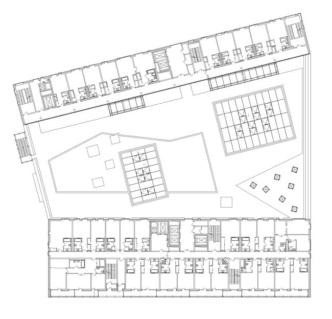
Гостиница состоит из двух корпусов на стилобате c 2-ярусной подземной парковкой под ним. Корпуса обрамляют стилобат: один, 10-этажный, по северо-западному контуру, другой, 16-этажный – по юго-восточному. Пластина поменьше параллельна улице Гагарина, пластина побольше – стадиону Славнефть, таким образом здание откликается на все оси и линии ближайшего контекста, и в то же время легкий «доворот» второго корпуса позволяет развернуть 16-этажный фасад на несколько дополнительных градусов от востока к югу, «поймав» чуть больше солнца.
А солнце здесь нужно не столько для инсоляции жилых помещений – в отношении гостиниц, как известно, строгие нормы не актуальны, – сколько для создания образа и особой атмосферы внутри. Еще одна ремарка: гостиница строилась не по бренд-буку какого-то оператора, возможно, поэтому в здании не наблюдается этакой чрезмерной экономии пространства. Вероятно, это позволило сделать оба корпуса не коридорными, а галерейными, вынеся галереи на юго-восточные фасады и застеклив их от пола до потолка. Причем северный корпус тонкий, он просто галерейный, а южный вдвое толще, он коридорно-галерейный, здесь есть и коридор по продольной оси, и галерея на юго-восточном фасаде.
Гостиница в Ярославле
Благодаря галереям на одной из протяженных сторон каждого корпуса появился стеклянный фронт – решение может напомнить разные примеры из европейской практики, но лично мне вспоминается реконструкция Cité du Grand Parc в Бордо от Лакатон & Вассаль. Она впрочем случилась позднее, чем была придумана ярославская гостиница, лет на 10. Но в целом такой галерейный фронт – с одной стороны, довольно распространенное решение, а с другой, в наших широтах в последние десятилетия редкое, поскольку галереи не очень выгодны с экономической точки зрения.
Стеклянные галереи дают много света и, при условии правильного проветривания, создают эффект выхода из комнаты прямо на улицу, характерный для приморских курортных отелей. Когда открыл дверь – и уже на солнце, и пахнет морем. Здесь, может быть, морем и не пахнет, но солнце, случается, светит, – и архитектор своими галереями не только «ловит» его, поворачиваясь к юго-востоку, к самым приятным рассветным лучам, но и усиливает его теплоту.
Гостиница в Ярославле
Для усиления используется цвет. Часть стекол покрыта полупрозрачной керамической печатью желтого и красного цвета. На 16-этажной пластине ритм вертикальный и регулярный, снаружи желтые стекла расположены в шахматном порядке и поддержаны цветными перегородками внутри галереи, причем здесь цветовая растяжка – от темно-красного до желтого и прохладно-голубого через оранжевый. Стены тоже выкрашены чередующиеся оттенки (ну, примерно по принципу Марсельской единицы) и поддерживают игру цветовыми рефлексами изнутри.
Гостиница в Ярославле
Гостиница в Ярославле
На 10-этажном корпусе – горизонтальные цветные полосы, тонкие, вперемежку красные, желтые и нейтральные серые. Получается орнамент, но не плоскостный, а развивающийся в пространстве галерейной прослойки через рефлексы, блики, усиление цвета, растворяющегося в лучах света. Причем свет приобретает теплые, «солнечные» оттенки даже в пасмурный дождливый день. Все это было просчитано и даже экспериментально проверено.
Проработка формата цветного остекления. Гостиница в Ярославле
Проработка формата цветного остекления. Гостиница в Ярославле
И да, днем стеклянные галереи «впитывают» солнечный свет, а вечером будут светиться уже изнутри. Северный корпус будет подсвечивать дворик на кровле стилобата.
В остальном корпуса очень сдержанны – намеренно спокойные по форме и цвету, они становятся лаконичной «рамой» для цвето-световой мозаики двух остальных фасадов. Которые лучше всего рассматривать, конечно, в первой половине дня, когда на них светит восточное и южное солнце.
Гостиница в Ярославле
Гостиница в Ярославле
Гостиница в Ярославле
Гостиница в Ярославле
Гостиница в Ярославле
Есть впрочем еще одна особенность – входной козырек. Он не просто вынесен далеко вперед, он еще и опирается на площадь перед отелем скосом диагональной ноги. Он надежно защищает выходящих из такси от дождя и в то же время он – скульптура, асимметричный и черный, брутальный, то ли вырастает из земли, то ли втыкается в землю как нога космического корабля, сразу давая входящим повод задуматься, что может быть, в этом несложном на первый взгляд здании не все так просто, как кажется при подъезде с улицы Гагарина.
Гостиница в Ярославле
Гостиница в Ярославле
Гостиница в Ярославле
Гостиница в Ярославле
客服
消息
收藏
下载
最近





















