查看完整案例

收藏

下载
戈者设计
陡峭斜坡上与周围环境相融合的木屋旅馆设计
这个木屋设计是作为海岸边的度假屋而诞生的。这两座可容纳两人的小木屋位于纳维达省的马坦萨斯,距离圣地亚哥约2个半小时。小木屋位于海拔80米的Lagunilla山上,在 “Lobera “前面耸立,这是一个突出于海面的大岩石群,是海狮和其他本地物种的家园。
马坦萨斯已经成为世界帆板运动和风筝冲浪运动的首都,这要归功于其出色的风浪条件。这两个元素都被有目的地纳入到项目的开发中。
设计过程被认为是一个实验的机会,寻找一种既能 “支配 “陡峭的斜坡又能与周围的自然环境相融合的方法。
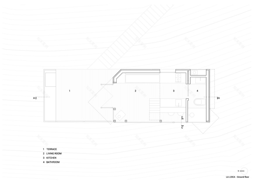
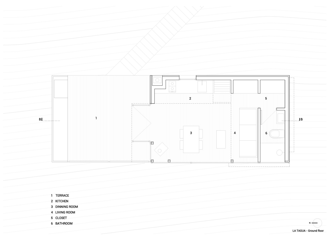
“La Loica “和 “La Tagua “都是以该地区原生的鸟类命名的,它们被放置在峡谷中,使用一个木质的皮隆结构来支撑主平台,在这个平台上开发项目。
每个结构都在几平方米内解决,”La Loica “为20平方米,”La Tagua “为25平方米。
一个大的阁楼在视觉上和空间上都连接着内部场所。餐厅、浴室和厨房被布置在通道层,使用与建筑相融合的家具,以优化空间。大窗户被安装在西面的立面上,增强了 “盘旋在海洋上,主宰地平线 “的感觉。
在两个船舱中,主卧室都位于上层,可以通过一个垂直梯子进入。卧室通过双层高的起居室与其他空间相连,这种布局旨在框定和引导视线,指向南方的树木繁茂的山丘和北方的岩石 “Lobera”。
每个小木屋的通道门都可以打开,进入北部的外墙露台,作为一种与外部连接和互动的方式,并最终扩展内部空间。这也使得主体结构可以作为一个盾牌来抵御来自西南的强风,巩固了露台的观点。
这两座建筑都是完全用木头建造的,在主体结构上使用了经过浸渍、室温干燥的松木,以提高长期性能。内部装修使用了1/2″×3 “的松木板,而外部的木材覆层是由回收的橡木枕木制造的。这种惰性材料经过石油油处理,提供了稳定性和抗海洋腐蚀的能力,并使其看起来与景观融为一体。
客服
消息
收藏
下载
最近










