查看完整案例

收藏

下载
Деревянные космы
Анна Мартовицкая
Объект:
Апарт-отель "Сад". Конкурсный проект
Адрес:
Черногория,
Мастерская:
Архитектурная мастерская Тотана Кузембаева
Авторский коллектив:
Руководитель проекта: Тотан Кузембаев. Главный архитектор проекта: Александр Первенцев. Главный инженер проекта: Константин Мошкович. Архитекторы: Антон Савельев, Олжас Кузембаев
Конкурсный проект апарт-отеля на берегу Адриатического моря, придуманный Тотаном Кузембаевым, удостоен специальной премии жюри.
Апарт-отель «Сад». Конкурсный проект © Архитектурная мастерская Тотана Кузембаева
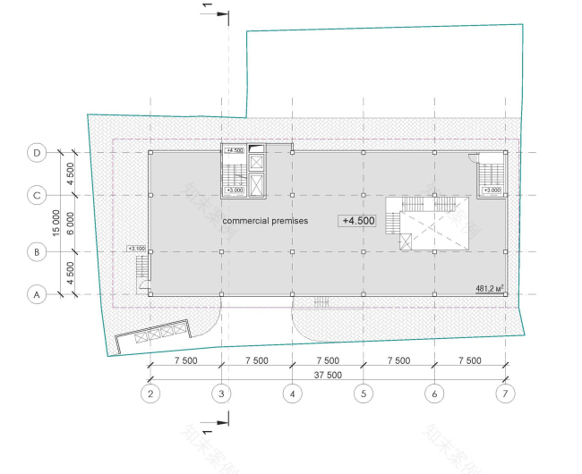
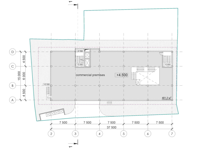
Девятиэтажный апарт-отель на 50 номеров планируется построить в центральной части одного из самых туристических городов Черногории – Будве. Место под строительство выделено на улице Медитеранска, недалеко от старого города и порта, так что проведение международного конкурса более чем логично – ответственное расположение, соседство с памятниками архитектуры, да и просто необходимость конкурировать с уже существующими отелями, которых здесь видимо-невидимо. Конкурс был закрытым, и мастерская Тотана Кузембаева стала единственной российской командой, получившей приглашение участвовать в нем.
Как рассказывает сам архитектор, конкурсное задание отличалось предельной краткостью: от участников требовалось дать предложения по выразительному и в то же время не кричащему зданию, которое сможет достойно вписаться в сложившуюся среду приморского города. Высота будущего отеля была ограничена 9 этажами, из которых два следовало наделить коммерческими функциями. То, что здание в плане должно быть прямоугольным, архитекторам тоже было понятно с самого начала – вставая в самом начале улицы Медитеранска, оно фактически возглавит целую шеренгу типовых «кубиков», три жилых этажа которых консолью нависают над магазинами и кафе. Собственно, эти «кубики» не только задали ширину обращенного к морю фасада нового отеля, но и стали отправной точкой в создании его архитектурного образа.
Апарт-отель «Сад». Конкурсный проект © Архитектурная мастерская Тотана Кузембаева
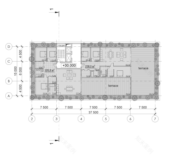
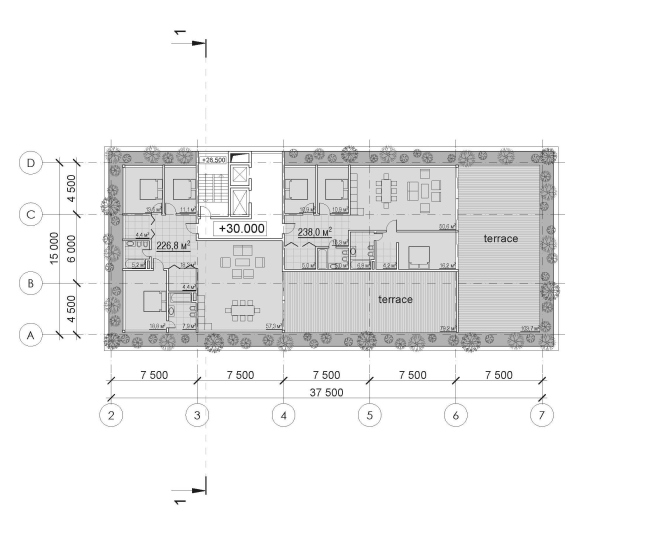
Свою задачу здесь Тотан Кузембаев определил как поиск разумного компромисса между созданием самодостаточной архитектурной темы и данью уважения к ближайшему окружению. Беря за основу очень простой и лаконичный объем, он стремился «прорастить» его таким образом, чтобы изначальная геометрия угадывалась и на уровне пешехода создавала внятно считываемое ощущение преемственности. Поэтому первые два этажа здания, на которых разместились магазины, отделаны подчеркнуто лаконично, а к своим ближайшим соседям обращены консолью. Иными словами, жилье и здесь нависает над общественными функциями, хотя в силу более высокого «роста» здания эта консоль не так артикулирована – скорее, архитектор лишь обозначает ее. Обыграна она и с помощью материалов: если жилые этажи и фасад, обращенный к старому городу, Тотан Кузембаев одевает в свое любимое дерево, то к «кубикам» он обращает полностью остекленный параллелепипед, словно вставленный под Р-образное здание в последний момент и своими гранями подхватывающий предельный лаконизм соседних сооружений.
Апарт-отель «Сад». Конкурсный проект © Архитектурная мастерская Тотана Кузембаева
И хотя проект от Тотана Кузембаева почти автоматически предполагает использование большого количества дерева, архитектор в данном случае предпочитает обосновать свой выбор. Дело не (только) в том, что он любит этот материал и умеет виртуозно с ним работать – для Будвы дерево было выбрано, в первую очередь, ради создания в апарт-отеле комфортного микроклимата в жаркий летний период. Кроме того, вторжение в сложившуюся панораму улицы Медитеранска, где почти нет высотных акцентов, хотелось провести по возможности мягко – если не за счет силуэта, так хотя бы с помощью предельно дружелюбного материала. Хотя в одном из вариантов проекта к решению этой задачи подключается и силуэт: по периметру плоской кровли апарт-отеля авторы предлагали высадить деревья.
Апарт-отель «Сад». Конкурсный проект © Архитектурная мастерская Тотана Кузембаева
Приморская архитектура, обреченная на вечные поиски компромисса между масштабным остеклением во имя красивых видов и защитой этого самого остекления от слишком жаркого солнца, вдохновила Тотана Кузембаева на смелый эксперимент. Выбирая между жалюзи и ставнями, архитектор решил попробовать скрестить эти элементы: в качестве верхнего защитного «кожуха» полностью остекленного фасада здесь выступает сложная система из множества подвижных деревянных лотков с грунтом и озеленением. Они имеют разную длину и нанизаны на несколько поворотных осей таким образом, чтобы каждое окно и каждая терраса приобрели собственные «ставни». Амплитуда открывания у них у всех своя, а управлять ею можно как с центрального пульта, так и из каждой квартиры. По замыслу авторов проекта, растения в лотках не только будут приятно дополнять вид на морскую гладь, но и поспособствуют сохранению прохлады, поглощению CO2 и сбору дождевой воды.
Апарт-отель «Сад». Конкурсный проект © Архитектурная мастерская Тотана Кузембаева
Апарт-отель «Сад». Конкурсный проект © Архитектурная мастерская Тотана Кузембаева
Важнейшую роль этот гибрид жалюзи и ставень играет и в создании архитектурного образа здания. Когда они закрыты, отель выглядит достаточно лапидарно: единственным украшением фасадов становятся эти широкие деревянные стежки, между которыми угадывается зелень. Но стоит хотя бы в одной квартире открыть окна, и фасад мгновенно преображается, ощерившись деревянными иголками. Общее число возможных комбинаций открытых и закрытых «ламелей» даже трудно сосчитать, что придает этому изначально очень лаконичному объему живой и непредсказуемый характер. Собственно, по представленным мастерской визуализациям это отлично видно: то по плоскости фасада и ребру угла бежит волна, то он весь становится косматым, то выглядит издалека как затейливо сложенный муравейник.
Не самое дешевое в реализации решение фасадов не позволило мастерской Тотана Кузембаева выиграть международный конкурс, однако жюри практически единогласно отметило этот проект за оригинальность, признав, что предложенная российскими архитекторами конструкция позволяет создать запоминающийся современный образ здания, который к тому же идеально соответствует его назначению.
Апарт-отель «Сад». Конкурсный проект © Архитектурная мастерская Тотана Кузембаева
Апарт-отель «Сад». Конкурсный проект © Архитектурная мастерская Тотана Кузембаева
Ситуационный план
Апарт-отель «Сад». Конкурсный проект © Архитектурная мастерская Тотана Кузембаева
Апарт-отель «Сад». Конкурсный проект © Архитектурная мастерская Тотана Кузембаева
Апарт-отель «Сад». Конкурсный проект © Архитектурная мастерская Тотана Кузембаева
Апарт-отель «Сад». Конкурсный проект © Архитектурная мастерская Тотана Кузембаева
Апарт-отель «Сад». Конкурсный проект © Архитектурная мастерская Тотана Кузембаева
Апарт-отель «Сад». Конкурсный проект © Архитектурная мастерская Тотана Кузембаева
客服
消息
收藏
下载
最近

















