查看完整案例

收藏

下载
Музыкальный камень
Анна Мартовицкая
Объект: Предпроектное предложение по капитальному ремонту и реконструкции основного здания ГЦММК им. М.И.Глинки с пристройкой фондохранилища с реставрационными мастерскими и экспозиционно-выставочными и лекционно-концертными залами
Адрес: Россия, Москва.
Мастерская: АМ Сергей Киселев и Партнеры
Авторский коллектив: В.С. Лабутин, Н.М.Хайкина, А.Г.Шилова, Д.Д.Петрова, О.В.Пономаренко
Концепцию реконструкции здания Музея музыкальной культуры им. М.И.Глинки в этом году разработала архитектурная мастерская «Сергей Киселев и Партнеры». Помимо расширения существующего здания, данный проект предусматривает строительство нового фондохранилища, чей объем решен в подчеркнуто современной стилистике.
Предпроектное предложение по капитальному ремонту и реконструкции основного здания ГЦММК им. М.И.Глинки с пристройкой фондохранилища с реставрационными мастерскими и экспозиционно-выставочными и лекционно-концертными залами
© АМ Сергей Киселев и Партнеры
Через два года Государственный центральный музей музыкальной культуры имени М.И. Глинки будет отмечать свое 100-летие, и именно к этой замечательной дате планируется приурочить расширение его владений.
Сегодня музей, чьи фонды насчитывают более миллиона единиц хранения (музыкальные инструменты, коллекция живописи, авторские рукописи, личные вещи композиторов и исполнителей и многое другое), обитает в специально построенном для него в 1985 году здании, спроектированном известным советским архитектором Иосифом Ловейко. Оно представляет собой характерный образец модернизма середины 1960-х годов. Лапидарный прямоугольный объем, главным фасадом обращенный к улице Фадеева, претерпел с того времени существенные изменения, но главным акцентом оштукатуренной плоскости фасада по-прежнему остается витраж из цветного литого стекла работы мастеров под руководством художника К. Маркунаса из Литвы. К главному фасаду примыкает скульптурная композиция – звонница с колоколами из музейного собрания. Один из них – из церкви села Новоспасское, где родился великий композитор, чье имя носит музей. Если о стилистике этого здания можно спорить, то его состояние, техническое оснащение, решительно оставляют желать лучшего. Музею остро не хватает помещений для хранения коллекций, отсутствуют грузовые лифты для перемещения экспозиционного оборудования и музейных предметов, габариты лестничных маршей не соответствуют нынешним нормам, не функционируют кондиционеры – необходимый для хранения уникальных экспонатов температурно-влажностный режим не соблюдается. Помещение, в котором хранятся произведения русской и советской живописи, находится в подвале, в не оборудованной и не предназначенной для этого зоне. Иными словами, необходимость реконструкции назрела давно, и приближающийся юбилей как нельзя кстати.
Предпроектное предложение по реконструкции музея, выполненное ООО «АМ СК и П», стало одной из составляющих концепции развития музея до 2014 г. Забегая вперед, нужно отметить, что она была единодушно утверждена Коллегией Министерства культуры РФ. Большая заслуга в этом принадлежит директору музея, Михаилу Аркадьевичу Брызгалову и его коллективу единомышленников, одержимых идеей расширения музея. Архитекторы получили детально разработанное задание на проектирование, основанное на скрупулезном изученном анализе состояния музея и всех его потребностей. Нельзя не отметить огромную важность контактов авторов предпроектного предложения с руководящими работниками музея – Владимиром Владимировичем Лисенко, Кариной Сергеевной Баласанян, Юрием Самуиловичем Беленьким, Еленой Всеволодовной Батовой, Ниной Владимировной Милешиной и многими другими.
«После беглого знакомства с уникальной коллекцией Музея музыкальной культуры я сразу же воспринял проблему и желание музейщиков сделать все возможное для того, чтобы она стала более доступна для посетителей, – рассказывает главный архитектор проекта Владимир Лабутин. – Именно поэтому реконструкцию музея мы с самого начала рассматривали, как возможность превратить его в многофункциональный культурный центр с достаточными площадями для постоянных и сменных экспозиций, современным фондохранилищем, несколькими концертными залами и библиотекой». Однако архитекторам предстояло одинаково виртуозно вписаться не только в более чем скромный по своим параметрам участок, но и в весьма ограниченный бюджет. Кроме того, практически вплотную к музею, на площадке, ограниченной Пыхов-Церковным переулком и улицами Фадеева и Долгоруковской, по проекту Михаила Филиппова возводится элитный жилой комплекс. Многоэтажные корпуса «Итальянского квартала» занимают огромную площадь и образуют нечто подобное римскому амфитеатру. При таком прессинге масштаба в распоряжении музея остается всего ничего – узкая полоска земли между зданием Ловейко и внутриквартальным проездом.
Работу над проектом нового фондохранилища команда Владимира Лабутина начала с тщательного анализа того, что в принципе может быть построено на столь скромном участке. Детально изучалась и допустимая высотность нового здания музея – она не должно была ухудшать расчетную инсоляцию строящегося жилья. Габариты и форма объема выверялись с хирургической точностью: где-то от условного параллелепипеда архитекторам пришлось отсечь и скруглить углы, а где-то, наоборот, воспользоваться возможностью выдвинуть дополнительный блок. Получившееся в результате столь сложных изысканий фондохранилище и само внешне напоминает головоломку. В плане оно имеет форму многоугольника, своей единственной прямой стороной примыкающего к существующему зданию музея, а пластика этого объема будит ассоциации то ли с гигантским валуном, то ли с затейливо ограненным алмазом. «Получив такую форму, мы не стали ей сопротивляться, решив, что новое здание станет краеугольным камнем, заложенным в основание нового, современного этапа развития музея»,– поясняет концепцию автор проекта. В соответствии с этим образом выбран и материал – фасады фондохранилища предполагается облицевать листами из медного сплава, чья терракотово-бурая гамма подчеркивает и «природное происхождение», и драгоценность «камня».
Севший на свободный участок музейной территории, новый объем, как уже говорилось, вплотную примыкает к существующему зданию. Правда, на нулевом уровне между ними имеется проезд, необходимый для транспортировки и загрузки экспонатов, но выше – здания связаны системой переходов и лестниц. Отметки связей (в старом здании их после реконструкции будет пять, в новом – семь) не совпадают, поэтому в этой части комплекса предусмотрен специальный грузовой лифт, способный останавливаться на любой отметке. К слову, в существующем здании предполагается заменить все вертикальные коммуникации: в нем появится четыре новых лифта и два новых лестничных блока, пристроенных к боковым фасадам. За счет существующего технического этажа авторы проекта предполагают надстроить музей двумя этажами, на которых разместится новое экспозиционное двусветное пространство. На втором и третьем этажах при этом останутся постоянные экспозиции, а на первом, помимо основных помещений входной группы и отдела научно-просветительской работы, появятся киоски и кафе.
Сохранится в музее и Прокофьевский концертный зал, для которого мастерская разработает новые интерьеры. Еще два зала будут спроектированы в новом здании – малый органный (музею принадлежит орган работы выдающегося немецкого мастера Ф. Ладегаста, ранее звучавший в Малом зале Московской консерватории) и лекционно-концертный на 400 мест. Интересно, что оба они расположатся на отметке общей для двух зданий, так что из залов через фойе можно будет перейти в уже упоминавшиеся двусветные выставочные залы.
Один из боковых фасадов нового корпуса, отвернувшийся от «Итальянского квартала», антресолью нависает над декоративным бассейном, визуально обогащая и расширяя пространство, на которое будут обращены окна библиотеки и аудиотеки музея.
Проект реконструкции предусматривает не только перепланировку внутренних помещений музейного здания, но и новый вариант отделки его фасадов. В частности, «плиту» главного фасада Владимир Лабутин предлагает «задрапировать» в стеклянное складчатое ограждение. При этом, стремясь сохранить «память места», он оставляет существующую супрематическую графику Ловейко и дополняет ее изображениями музыкальных инструментов. Сохраняется и звонница с колоколами. Ее предлагается облицевать мелкоразмерной цветной мозаичной плиткой, которая смягчит брутальность скульптурной композиции, а самим колоколам архитекторы мечтают вернуть возможность звучать. И в этой детали, как в капле воды, отражается главная идея данного проекта – раскрытие потенциала богатейшей коллекции Музея музыкальной культуры, способной сделать его востребованным культурным и просветительским центром Москвы.
Предпроектное предложение по капитальному ремонту и реконструкции основного здания ГЦММК им. М.И.Глинки с пристройкой фондохранилища с реставрационными мастерскими и экспозиционно-выставочными и лекционно-концертными залами
© АМ Сергей Киселев и Партнеры
Предпроектное предложение по капитальному ремонту и реконструкции основного здания ГЦММК им. М.И.Глинки с пристройкой фондохранилища с реставрационными мастерскими и экспозиционно-выставочными и лекционно-концертными залами
© АМ Сергей Киселев и Партнеры
Предпроектное предложение по капитальному ремонту и реконструкции основного здания ГЦММК им. М.И.Глинки с пристройкой фондохранилища с реставрационными мастерскими и экспозиционно-выставочными и лекционно-концертными залами © АМ Сергей Киселев и Партнеры
Предпроектное предложение по капитальному ремонту и реконструкции основного здания ГЦММК им. М.И.Глинки с пристройкой фондохранилища с реставрационными мастерскими и экспозиционно-выставочными и лекционно-концертными залами
© АМ Сергей Киселев и Партнеры
Предпроектное предложение по капитальному ремонту и реконструкции основного здания ГЦММК им. М.И.Глинки с пристройкой фондохранилища с реставрационными мастерскими и экспозиционно-выставочными и лекционно-концертными залами © АМ Сергей Киселев и Партнеры
Предпроектное предложение по капитальному ремонту и реконструкции основного здания ГЦММК им. М.И.Глинки с пристройкой фондохранилища с реставрационными мастерскими и экспозиционно-выставочными и лекционно-концертными залами © АМ Сергей Киселев и Партнеры
Предпроектное предложение по капитальному ремонту и реконструкции основного здания ГЦММК им. М.И.Глинки с пристройкой фондохранилища с реставрационными мастерскими и экспозиционно-выставочными и лекционно-концертными залами
© АМ Сергей Киселев и Партнеры
Предпроектное предложение по капитальному ремонту и реконструкции основного здания ГЦММК им. М.И.Глинки с пристройкой фондохранилища с реставрационными мастерскими и экспозиционно-выставочными и лекционно-концертными залами © АМ Сергей Киселев и Партнеры
Предпроектное предложение по капитальному ремонту и реконструкции основного здания ГЦММК им. М.И.Глинки с пристройкой фондохранилища с реставрационными мастерскими и экспозиционно-выставочными и лекционно-концертными залами
© АМ Сергей Киселев и Партнеры
Предпроектное предложение по капитальному ремонту и реконструкции основного здания ГЦММК им. М.И.Глинки с пристройкой фондохранилища с реставрационными мастерскими и экспозиционно-выставочными и лекционно-концертными залами © АМ Сергей Киселев и Партнеры
Предпроектное предложение по капитальному ремонту и реконструкции основного здания ГЦММК им. М.И.Глинки с пристройкой фондохранилища с реставрационными мастерскими и экспозиционно-выставочными и лекционно-концертными залами
© АМ Сергей Киселев и Партнеры
Предпроектное предложение по капитальному ремонту и реконструкции основного здания ГЦММК им. М.И.Глинки с пристройкой фондохранилища с реставрационными мастерскими и экспозиционно-выставочными и лекционно-концертными залами
© АМ Сергей Киселев и Партнеры
Предпроектное предложение по капитальному ремонту и реконструкции основного здания ГЦММК им. М.И.Глинки с пристройкой фондохранилища с реставрационными мастерскими и экспозиционно-выставочными и лекционно-концертными залами. Ситуационный план © АМ Сергей Киселев и Партнеры
Предпроектное предложение по капитальному ремонту и реконструкции основного здания ГЦММК им. М.И.Глинки с пристройкой фондохранилища с реставрационными мастерскими и экспозиционно-выставочными и лекционно-концертными залами © АМ Сергей Киселев и Партнеры
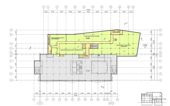
Предпроектное предложение по капитальному ремонту и реконструкции основного здания ГЦММК им. М.И.Глинки с пристройкой фондохранилища с реставрационными мастерскими и экспозиционно-выставочными и лекционно-концертными залами. План первого этажа
© АМ Сергей Киселев и Партнеры
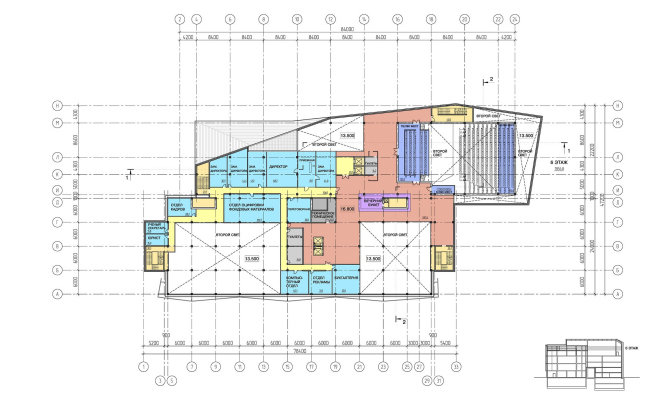
Предпроектное предложение по капитальному ремонту и реконструкции основного здания ГЦММК им. М.И.Глинки с пристройкой фондохранилища с реставрационными мастерскими и экспозиционно-выставочными и лекционно-концертными залами. План шестого этажа
© АМ Сергей Киселев и Партнеры
客服
消息
收藏
下载
最近



















