查看完整案例

收藏

下载
Apartment building with the underground parking lot, Burdenko street
information:
status: building
date: 2008 — 2009 / 2009 — 2014
place: Russia, Moscow, Burdenko street, 11
function: Residential / Residential complex
площадь подземная: 4015 м2
Public Area: 502 м2
Total Area: 12118 м2
Residential Area: 5913 м2
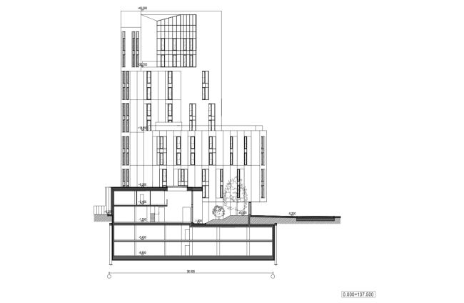
height: 45
number of storeys: 10
Sergey Skuratov / Russia
Sergey Skuratov architects / Russia
Design Team: Skuratov S.A., Chernyshova A.S., Chernyshov D.A., Levina J.B.
Partners and Clients: OOO "Novy dom 94"
Archi.ru about this project: 21.09.2009 Anna Martovitskaya. Special case
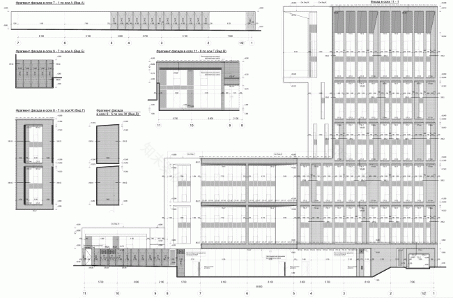
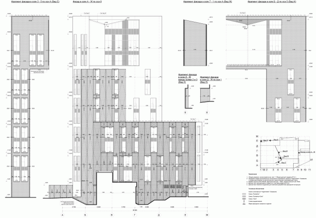
In 2001 there was installed a building with remarkable rounded facade by Sergei Skuratov’s project along Burdenko street, which joins the Garden Ring and Hamovniki. Today "Sergei Skuratov Architects" have another client and different requirements, but the second construction will be located almost opposite to the first one, and soon Burdenko street will gain not only a new building but a very interesting dialogue of the two creations belonging to the same master.
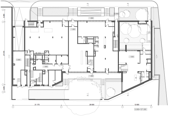
From the west the building site borders with the walls of Accounts Chamber, from the north it is limited by Burdenko street red line and from the east and the south – by the existing office buildings. All the trees growing on the site were preserved
客服
消息
收藏
下载
最近
























































