查看完整案例

收藏

下载
在充满活力的福尔利市中心,位于历史悠久的卡尔博利·达拉斯特宫(Palazzo Calboli dall’Aste)内的NAP顶层公寓,将历史的优雅与当代元素巧妙融合,呈现出令人惊喜的混搭美学。
In the vibrant heart of Forlì, within the historic Palazzo Calboli dall’Aste, NAP penthouse combines the elegance of the past with contemporary elements in a surprising blend.
▼室内概览,overview of the indoor space ©tissellistudioarchitetti
一进入室内,客厅便以一座充满戏剧张力的雕塑式楼梯迎接访客——楼梯表面覆有彩色镜面,使双层挑高的空间感倍增。温润的木地板与明亮的墙面形成宁静背景,搭配线条简洁、节奏和谐的定制家具,专为一对专业人士的生活需求量身打造。
From the entrance, the living area welcomes us with a dramatic staircase-sculpture clad in colored mirrors, multiplying the perception of the double-height space. Warm wooden floors and light walls provide a backdrop for custom-made furniture characterized by clean lines and harmonious rhythms, designed to meet the needs of a couple of professionst.
▼雕塑式楼梯,a dramatic staircase-sculpture ©tissellistudioarchitetti
▼楼梯表面覆有彩色镜面,clad in colored mirrors ©tissellistudioarchitetti
从客厅下行几阶,即抵达餐厅。彩色与反光材质的引入为空间带来现代感与精致气息,同时又不失稳重。拉丝不锈钢的厨房岛台与一面哑光漆面木质立面板相呼应,巧妙地将厨房功能隐于无形之中。
Descending a few steps from the living room, you reach the dining room, where the introduction of colorful and reflective elements gives the space a contemporary and sophisticated atmosphere without compromising its sobriety. The brushed stainless steel kitchen peninsula interacts with an elegant vertical panel in matte lacquered wood, discreetly concealing all the functions of the kitchen area.
▼拉丝不锈钢的厨房岛台,the brushed stainless steel kitchen peninsula ©tissellistudioarchitetti
▼拉丝不锈钢的厨房岛台,the brushed stainless steel kitchen peninsula ©tissellistudioarchitetti
在私密空间中,主卧配有一扇通向浴室的大型窗户,营造出视觉上的空间连贯感,并带来宽阔视野。天窗透下的自然光为房间营造出温暖宜人的氛围。
In the sleeping area, the master bedroom features a large window overlooking the bathroom, creating an illusion of spatial continuity and offering a wide view. Natural light filtering through the skylights envelops the room in a welcoming atmosphere.
▼天窗透下的自然光为房间营造出温暖宜人的氛围,
natural light filtering through the skylights envelops the room in a welcoming atmosphere ©tissellistudioarchitetti
▼带有天窗的浴室,bathroom with skylight ©tissellistudioarchitetti
▼浴室细部,bathroom detail ©tissellistudioarchitetti
浴室可从卧室直接进入,设有一个由红色与镜面材质构成的过渡区,卫生洁具与家电优雅嵌入其中,既实用又具观赏性。
The bathroom, directly accessible from the bedroom, opens onto a filter area characterized by red and mirrored surfaces, where sanitary fixtures and appliances are elegantly integrated.
▼由红色与镜面材质构成的过渡区,a filter area characterized by red and mirrored surfaces ©tissellistudioarchitetti
随后,空间延伸至一间宽敞明亮的大房间,裸露的木梁成为视觉亮点,进一步强化了空间的美感与尺度。这个通常被视为辅助功能区的空间,在此却成为主角,在美学与功能之间达成了完美平衡。
The space then develops into a large, bright room enriched by exposed beams that enhance its beauty and spaciousness. This area, usually relegated to a secondary role, becomes the undisputed protagonist here, combining aesthetics and functionality in perfect harmony.
▼强化空间的美感与尺度,enhance its beauty and spaciousness ©tissellistudioarchitetti
NAP 顶层公寓展示了即便是最私密的空间,也能被塑造为独立的艺术品,不仅超越了传统居住标准,更提供了一种独特而富有吸引力的生活体验。
The NAP penthouse demonstrates how even the most intimate spaces can become a standalone work of art, surpassing traditional standards and offering a unique and engaging living experience.
▼细部,detail ©tissellistudioarchitetti
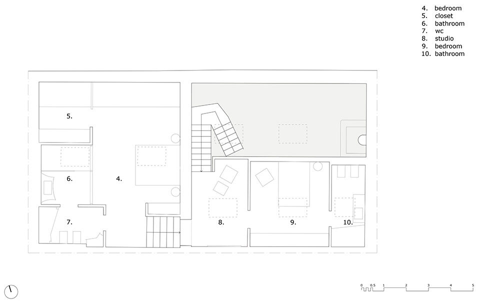
▼平面图,plan ©tissellistudioarchitetti
客服
消息
收藏
下载
最近

























