查看完整案例

收藏

下载
House build up in Nikolo-Urupino settlement
information:
status
building
date
2010
—
2010
/
2010
—
2011
place
Russia
,
Nikolo-Urupino settlement
function
Residential
/
House
Total Area
447 м
2
Valeria Preobrazhenskaya
/
Russia
Levon Ayrapetov
/
Russia
TOTEMENT/PAPER
/
Russia
Design Team
Levon Airapetov, Valery Preobrazhenskaya, Egor Lekov, Diana Grekova
Archi.ru about this project:
Anna Martovitskaya. From Empty To… Full
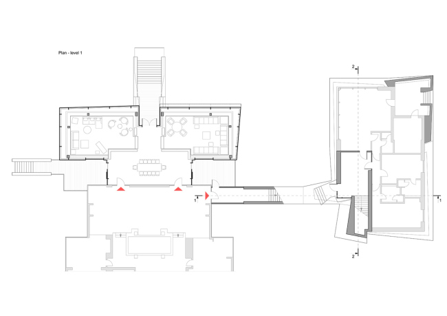
In the prestigious villa community of Novo-Uryupino, the architectural studio TOTEMENT/PAPER reconstructed one of the houses. The house, initially executed in the traditional “New Russian” style, got an “updating” injection and a completely renovated look.
TOTEMENT/PAPER studio was invited to take on the project back in the summer of 2010. The commission was put in this misleadingly simple nutshell: add a few new constructions to the several existing ones. However, upon careful examination of the house
客服
消息
收藏
下载
最近











































