查看完整案例

收藏

下载

翻译
Architects:Wolveridge Architects
Area:800m²
Year:2021
Photographs:Derek Swalwell
Manufacturers:Artedomus,CDK stone,Classic Ceramics,Concrete Resurfacing Systems,Eco Timber,New Age Veneers
Category:Houses
Architecture:Will Smart, Camilla McBeath
Landscape Design:Jack Merlo
City:Sandringham
Country:Australia
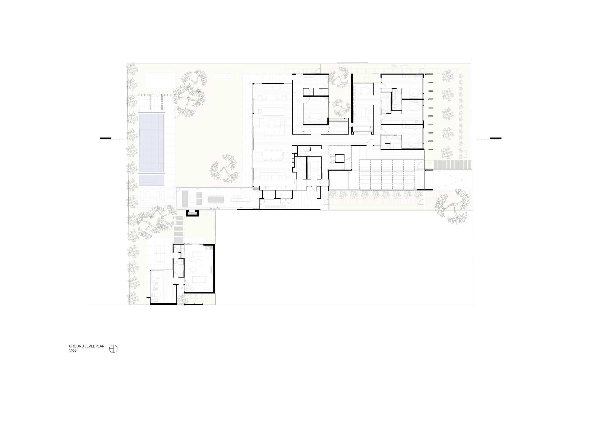
Text description provided by the architects. Blade House sits deeply embedded in its landscaped garden, with every part of the interior visually connected to nature. The clients wanted a home that would evolve as their adult family, and guests come and go, and a floor plan defined by separate wings ensures that will happen. Central to the overall design is the idea of the house not turning its back on the street, while still preserving a sense of privacy and security for the clients and their family. Removing the traditional boundary fence extends the property outwards, generously greeting passers-by and softening the line between public and private space.
The facade is a series of full-height blades and cedar screens, creating privacy for the occupants while still letting in natural light. These external elements also engage with the Jack Merlo-designed landscaping to reinforce the importance of biophilic design in creating a home that facilitates both health and well-being. Internally, the primary ensuites' large picture window lets the outdoors in, the study overlooks a private courtyard, and 3.5m high sliding doors open the north-facing kitchen, living & dining areas up to the garden. These varied connections create a sense of discovery as one moves through the home. Even the home's transitional spaces enjoy a visual connection with the garden, while the kitchen, dining, and lounge also enjoy a physical one, very much positioning them as the central hub of the house.
Complementing the scheme is a restrained material palette, which predominantly comprises Australian hardwood timber, travertine, and Venetian plaster internally, with travertine also used generously externally alongside the cedar. In the garden, it all has an effortless resort-like feel, with various recreation zones allowing for easy entertaining, in the outdoor dining/living area or at the pool/spa, with a casual seating area, firepit, and trampoline completing the well-considered design.
Project gallery
客服
消息
收藏
下载
最近


























