查看完整案例

收藏

下载
戈者设计
平静祥和享受聚会传统建筑里的学生宿舍设计
该学生宿舍楼设计位于阿雷纳尔(Arenal)社区,这是一个由狭长的街道组成的迷宫,就在历史城市的外面,在大教堂和瓜达尔基维尔河之间。这个地方靠近中世纪的阿塔拉萨纳斯(Atarazanas)和马埃斯兰萨(Maestranza)斗牛场,以前是一个古老的铸造厂和铁器仓库的一部分,用于生产地区性的美学铁器。面对罗多街和一条更窄的小后巷,该地块被相邻建筑的党墙横向接壤。
在外部,该建筑与周围的传统建筑进行了对话,将新的当代建筑与该地的历史记忆相融合。它没有诉诸于模仿或当前的破坏性趋势,相反,该项目与环境对话,尊重地与附近的历史特征互动,通过现代和动态的语言重新解释其传统的外墙,延长的开口和小阳台。
考虑到街道的狭窄性,外立面的设计不仅要从正面欣赏,还要从侧面欣赏。该项目的横向和倾斜的视野变得至关重要,纳入了一个新的设计和质量,由传统和可持续的材料支持,如石灰砂浆,釉面陶瓷,以及阳台和酒吧的油漆铁制品。外墙以白色为主,加入了凹陷的釉面砖所带来的一抹色彩,这些釉面砖框住了开口处。这种简单的定义姿态,凹陷的高层开口,扩大了它们的存在,使它们从背景中脱颖而出。
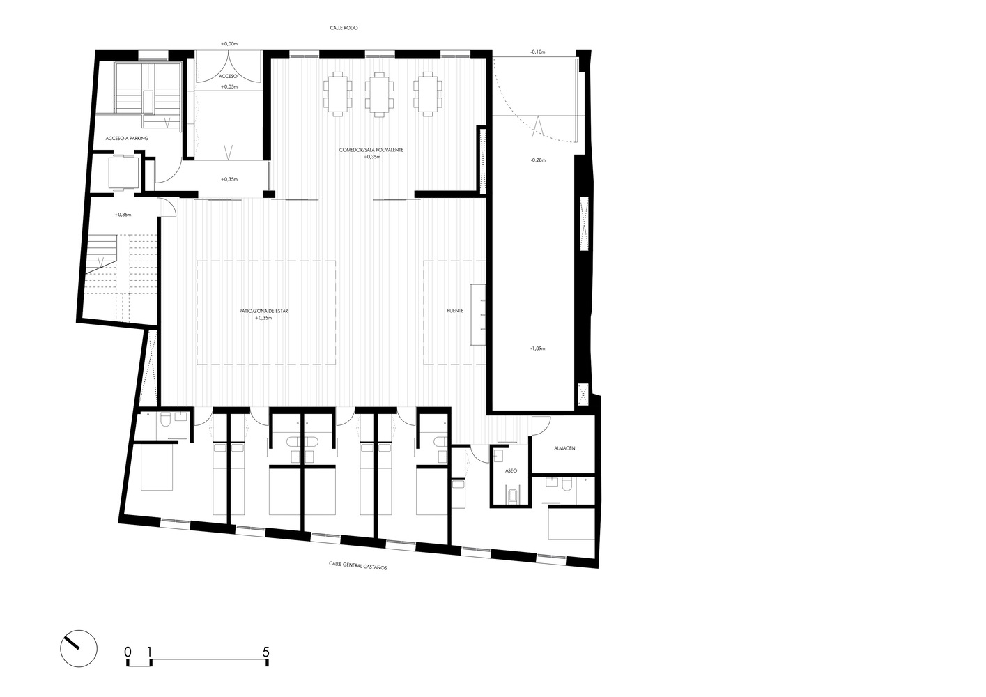
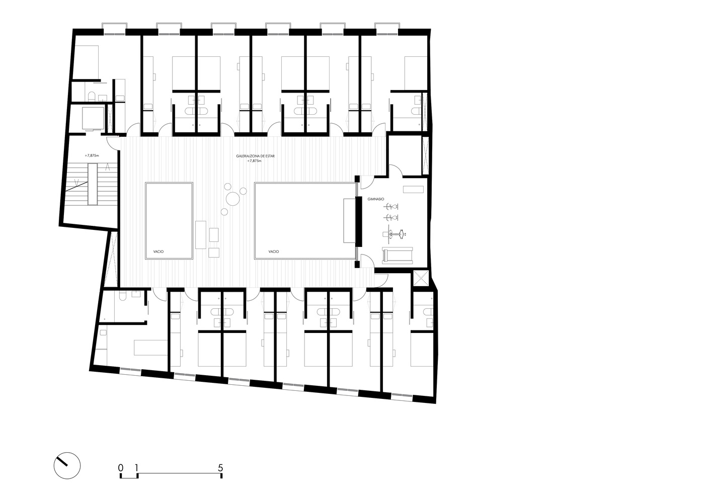
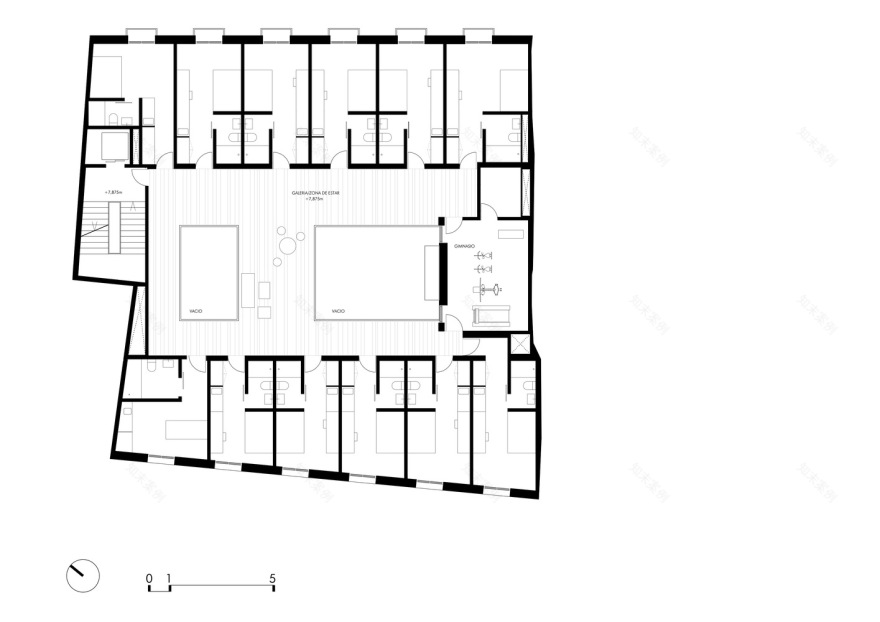
进入建筑后,空间围绕着一个中央庭院组织,这是建筑的主导元素。院子由一个轻盈的透明玻璃天窗覆盖,垂直穿过所有楼层,用阳光照射建筑的中心。自然光以这种方式成为构建一个流动的、连续的、亲密的、内向的内部空间的主要动力。这个庭院沐浴在光线中,在喷泉的淙淙声中得到舒缓,是一个平静祥和的地方,成为学生享受的聚会场所。
这个院子不仅是底层的消磨时间的地方,而且还纳入了两个大的走道来连接这个空间,同时周边的长廊设计得很宽。通过这种方式,提供广泛用途的新空间出现了,它可以成为聚会和休闲的场所,也可以成为交通的路径。
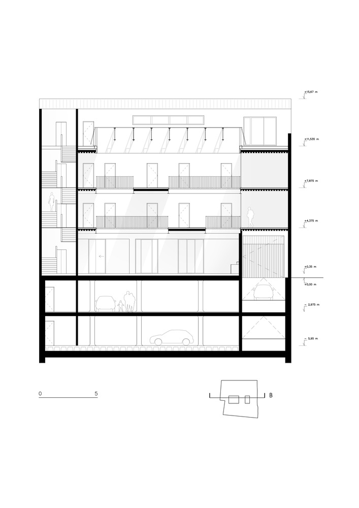
底层平面的矩形几何形状呈现出两条向街道开放的房间走廊。与相邻墙体相邻的一侧聚集了垂直循环元素,另一侧则是共用的场所,如学习室、健身房或洗衣房。
该建筑呈现出一种暴露的金属结构,支柱和轻质的折叠板界定和组织不同的空间。所有的结构元素都被涂成白色,除了镀锌钢板的折叠板,这些折叠板保留了它们的自然颜色,给天花板带来了明亮、闪耀的品质。
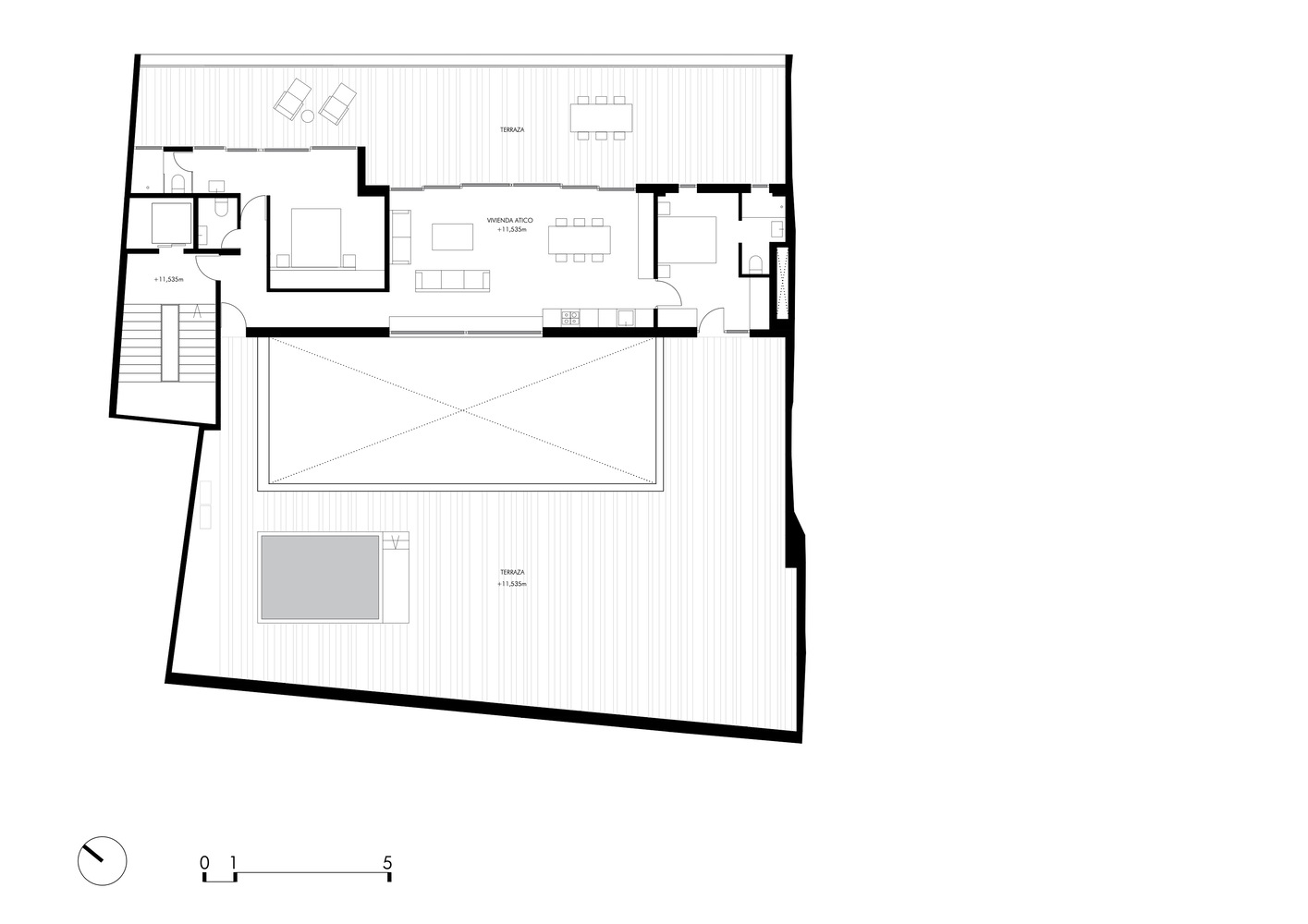
该住宅的组织遵循了塞维利亚住宅的传统类型:入口大厅-庭院房间。在这种方式下,住宅,过滤空间与双围墙系统(栅栏门和玻璃门),成为一个有效的溶剂温度调节器,与玻璃天窗的窗户一起作用。
该建筑实现了最大的能源效率,而没有诉诸于太复杂的主动气候控制系统或太昂贵的机器。相反,它使用了建立在传统和记忆基础上的被动程序–有时还进行了改进和更新。这些程序包括:形式的适宜性、自然通风、充分的阳光控制、自然光、封闭/玻璃表面的适当关系、空气热能系统的使用、植物灌溉的雨水收集,以及集中的温度控制系统。
平静祥和享受聚会传统建筑里的学生宿舍设计
客服
消息
收藏
下载
最近

















