查看完整案例

收藏

下载
Orphanage for former streetboys
Nairobi, Kenya
Location: Nairobi, Kenya
Category: housing
Phase: design development
Our goal is to build an orphanage for 15 former street boys in a low - income area in Nairobi, Kenya. The orphanage will be built on the site of the newly constructed Bethany Joy School. The school has already been built with TwistBlocks, a new technology developed by Start Somewhere. This project funds more than an orphanage. We create local jobs on construction sites and in our TwistBlock factory in the nearby informal settlement of Kibera.
Project leader: Oliver von Malm
What is still needed to proceed?
Finance Still 89% of € 28,000
Skills Stuff Hands
Support The project
Updates (2)
What’s needed? Project Updates Needs
Introduction
Bethany Joy School has been operating for a years with the financial support of their international sponsor The Watumull Family Children’s Fund (WFCF). It is located in Kawangware, a low - income area of Nairobi where families struggle to afford school tuition for their kids.
Initially, the school was operated in substandard premises. The redevelopment was spearheaded by WFCF in collaboration with the Sandy Vohra Foundation who assisted to raise funds. In the beginning, the parties reached out to Start Somewhere to construct the building because of the social and economic benefits. We, Start Somewhere are a German/Kenyan social enterprise invented an innovative building material called TwistBlocks that is being produced and applied by the local residents. It offers rapid and affordable construction even in round shapes with an added social impact as well as many other benefits over typical sheet metal construction.
The school is almost complete but funding still needs to be raised for the construction of an Orphanage. 15 former streetboys are currently housed in a +/-12 m² metal enclosure that is also used as garage.
Start Somewhere is now leading the fundraising to build the orphanage. The orphanage will be on the same land as the school owned by WFCF with ablutions, sleeping hall and separate recreational space. The emphasis of the design is on community and togetherness rather than the western desire for privacy and independence.
Impact
Dignified education and housing are basic human needs. With the new Bethany Joy school, 600+ needy children will soon receive free education and meals in a building that offers comfort and security. The new orphanage will give 15 former street boys and upcoming generations a stable living environment.
This project not only funds the orphanage, but also our overall sustainable approach based on the principle of "change from inside". We create jobs for workers from the community on construction sites. With no need for mortar, TwistBlocks can be produced and applied even by unskilled workers. We were able to create 7 permanent jobs in our local TwistBlock factory in the informal settlement of Kibera, Nairobi. Since 2019, residents produce the blocks by hand to improve their own lives and the living conditions of their community.
By the end of this year, another larger factory is to be built in Nairobi with higher production capacities and more jobs. Lots of visitors from the community want to learn about the new technology and started to build with it by themselves.
Our projects always include community engagement to inform, consult and include people in the process. This encourages community cooperation and acceptance.
Last but not least, the housing is being significantly improved with TwistBlock constructions. In the past years we have built another school building for 400 children in Kibera, a school library and 13 housing units for needy families after a fire breakout.
Core team
--> Click on underlined links for more info.
The Watumull Family Children’s Fund (WFCF) was operational in Kawangware, Nairobi at the Bethany Joy school for a number of years. Start Somewhere was also already established in the nearby slum of Kibera. When the project was conceptualised the two organisations were connected around the common goal of uplifting the marginalised communities of Nairobi.
Team of Bethany Joy School and Orphanage:
Chitra Watumull Wright, founder of the WFCF is a teacher and philanthropist, supporting schools in Kenya and India with education programmes, mentorship and funding.
Walter Olando is the founder and principal of the Bethany Joy School since 2012. He is responsible for the operation of the school and for the orphanage.
SSW Team:
Germany
Oliver von Malm, architect, founder (TED Talk)
Kristina Cress, PR & Communication
Silvia Hesse, geographer, HR & Finances
Claire du Plessis, architect South Africa
Martin Halseband, mgmt. consultant
Kenya
Lazarus Asewe, civil engineer, director SSW Ltd.
Beryl Odede from Kawangware, admin. assistant
Ibrahim Maina, Sen. Community Associate
Milka Achieng from Kibera, Head of TwistBlock Factory
Kibera Production Team, 7 members
Dennis Andere from Kibera, SSW NGO
Brenda Lumumba, SSW NGO
Community Testimonials:
Video
Partners & Experts:
PERI: technology partner of SSW since 2017
Project Video
German Innovation Award
Transsolar KlimaEngineering supports SSW with expertise
Presentation
Habitat for Humanity supports SSW in the set-up of a new factory in rural Kenya. SSW is part of the Shelter Tech accelerator programme:
Shelter Tech
Start Somewhere Team in Front of Kibera TwistBlock Factory Image gallery
New Orphanage
Orphans
Current Orphans Room
Bethany Joy and Place where Orphanage will be built
Bethany Joy and Place where Orphanage will be built
Bethany Joy Upper Floor
Start Somewhere Twist Blocks in Kibera, Nairobi
Street Shops out of TwistBlocks in Kibera
Twist Block Factory Kibera, Nairobi
Local housing unit in Kibera
Technical drawings
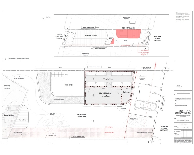
Orphanage Floor Plan
School and Hall Floor Plan
Site and School Floor Plan
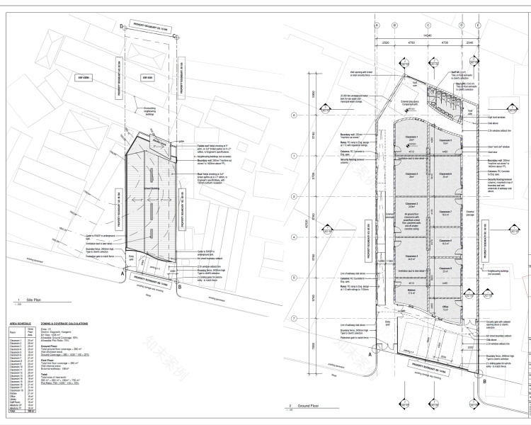
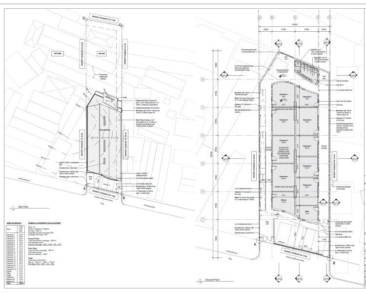
School Section Drawing
Technical Drawing of Orphanage
Technical Drawing of Orphanage
External links
SSW Website
SSW Testimonials
Help bring our project to life!
Finance: Still 89% of € 28,000. Contribute via betterplace.
Stuff: Materials Support
Stuff: Equipment & tools Support
2 March 2023 Another € 3,070 raised
2 March 2023 3.070 € Raised
Thanks to all who supported our project up to now!
Help bring our project to life!
Finance: Still 89% of € 28,000. Contribute via betterplace.
Stuff: Materials Support
Stuff: Equipment & tools Support
Where are we now
Our vision “change from inside” has been proven successful. Various projects have already been realised utilising the innovative TwistBlock technology which has been well accepted by the local community. The orphanage is on the property of the Bethany Joy School which will be completed in early 2023. Because of the on-going construction on the site, all systems are already in place for construction of the orphanage. We have a professional team, a construction team and suppliers of materials. A sketch design for the building has been completed and funding has already been identified for the school’s multi-purpose hall which sits beneath the orphanage and is to be constructed at the same time.
An indication of our team’s capacity:
20% funding already raised
100% expertise already found
100% materials / equipment already found
100% builders already found
Finance: € 28,000
A general master plan of the site (incl. school, hall, orphanage) has been completed but design development is still to be carried out. The orphanage comprises a 75 sqm building with external terrace which may be used as roof garden, play area or for future expansion of the orphanage. The hall below is planned as part of the playground, for assemblies and eating. Start Somewhere is a social enterprise and our business model is based on revenue generated through the design and construction of social impact projects. We believe in making a fair wage based on socially responsible work. We provide many jobs to various workers, to train them and provide reliable income to various local families.
Engineering services 500
Community engagement 1,200
County approvals 900
Furnishing 1,000
Construction Management 1,600
Construction Costs 20,600
Architectural Services 1,600
Local Consultants 600
Stuff: Materials, Equipment & tools
The project is able to accept donations of building materials and fittings. Donations of electrical fittings, paint, plumbing fittings, or bulk construction materials like cement are appropriate. The project would greatly benefit from a solar power supply or rain water harvesting system. The building also needs to be furnished with beds, desks, couches and kitchen appliances. Food and general consumables are also always appreciated as the school feeds hundreds of children for free. Clothes, personal hygiene products and writing implements would be greatly appreciated by the orphans.
Help bring our project to life!
Finance: Still 89% of € 28,000. Contribute via betterplace.
Stuff: Materials Support
Stuff: Equipment & tools Support
客服
消息
收藏
下载
最近























