查看完整案例

收藏

下载
Царев сад
Объявлены участники нового закрытого конкурса, проводимого инвестором по инициативе главного архитектора Москвы Сергея Кузнецова.
«Царев сад» – многофункциональный гостиничный комплекс общей площадью немногим больше 80 тыс. кв. м, состоящий из апарт-отеля, wellness-центра и ресторана, планируется построить на участке площадью 1,17 га на Софийской набережной рядом с Большим Москворецким мостом, через реку от Беклемишевской башни московского Кремля и напротив гостиницы «Балчуг». Участком владеет ООО «Сбербанк Капитал», роль технического заказчика исполняет ООО «Мидланд Девелопмент. История проектирования достаточно сложна, проект приостановили еще в 1999 году, подробности можно узнать, например,
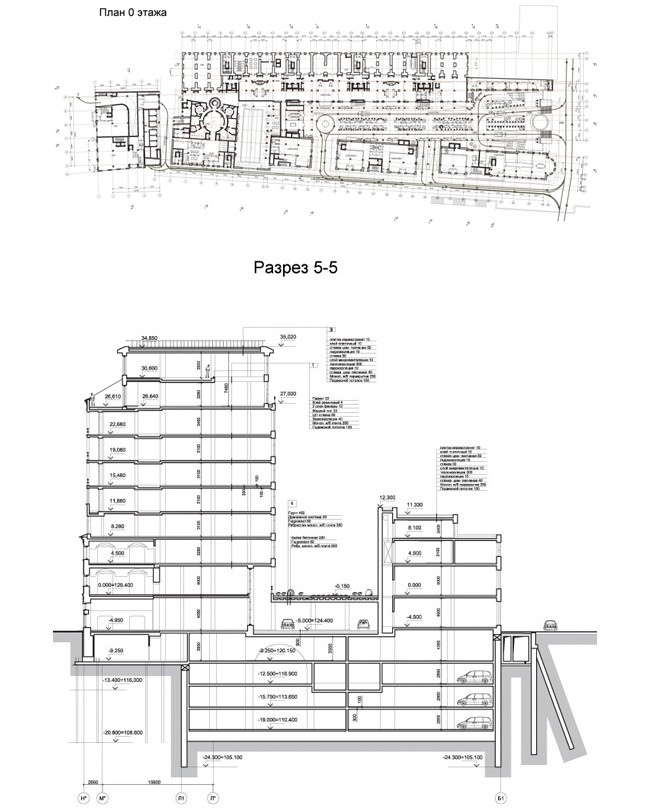
Многофункциональный гостиничный комплекс «Царев сад». Проект ООО «МАО – Среда». © ООО «МАО – Среда». Ситуационный план, наложенный на карту Яндекс.
В недавнее время над проектом комплекса работало ООО «МАО – Среда», их проект был
показан осенью на фестивале «Зодчество»
. По словам авторов, одной из первоначальных задач их проекта было «исправить сложившуюся в 2000 годы градостроительную ситуацию методом регенерации визуальных связей». Каждая гостиная в проектируемом апарт-отеле была «визуально раскрыта на храм Василия Блаженного», а на кровлях невысоких объемов первого ряда застройки были запланированы «благоустроенные террасы с максимальным визуальным раскрытием на историческую Москву».
Сейчас проект предложено переработать восьми архитектурным бюро, включая его авторов, «Мао – Среда», которые при любом исходе конкурса сохраняют за собой функцию генпроектировщика, а победителя конкурса генпроектировщик возьмет на субподряд. Об этом Сергей Кузнецов
сообщил
на пресс-брифинге 22 мая.
Итак, архитектурные бюро, участвующие в конкурсе:
МАО-Среда
Герасимов и партнеры
ADM
Киселев и партнеры
Сергей Скуратов Architects
Цимайло, Лященко и партнеры
Архитектурная мастерская М. Атаянца
Студия Уткина
Несложно предугадать, что это будет не только (по словам Сергея Кузнецова) «поиск архитектурных решений для важнейшей на сегодняшний день для города площадки», но и спор между модернистами и сторонниками классической архитектуры, чьи позиции разделились в списке участников конкурса, скажем так, поровну.
客服
消息
收藏
下载
最近








