查看完整案例

收藏

下载
戈者设计
将典型工业材料与戏剧世界结合的研究中心设计
制造业世界正处于世界范围内的快速转型之中。地球的紧迫性、新的生产需求和不断变化的标准只是推动该行业进入一个新的增强层面的几个因素。这是一个雄心勃勃的项目的起点,由建筑和数字设计工作室Calibro Zero(Francesco Carota, Margherita Iperique, Giorgio Salza)与建筑师Federico Gatto和工程师Marina Carbone合作,为CIM 4.0(Competence Industry Manufacturing)开展,这是一个意大利卓越中心,实现和促进教育和开放式创新计划,帮助意大利企业向工业4.0过渡。
该设计涉及到都灵市的一个前教育空间的再利用,以实现一个致力于数字制造的试验线:一个高度创新的空间,无论是在结构上还是在程序上,中小型企业可以在进入市场之前测试他们的产品和流程。为了实现这一目标,Calibro Zero对基于类型学功能和分类的综合和陈旧的空间划分提出了质疑,在一个单一的空间中主持不同功能的混合:从展览空间到小型工业生产,从办公活动到实验实验室,直至培训和教育活动。
设计围绕着生产空间的可重构性、灵活性和人性化等概念,将典型的工业空间和材料策略与来自家庭和戏剧世界的灵感相结合。因此,新的数字试验线的特点是有一个可识别的形象,直观地代表了CIM 4.0品牌和能力中心所承载的价值。
现有内墙的拆除形成了一个开放和协同的空间,在这个空间里,多种社会活动和实践可以汇聚在一起,相互交叉,并根据不同的需要灵活地重新配置。因此,空间组织允许不同的人流和空间使用的重叠,在这里,操作区和休息区交替出现,在这里,CIM4.0专家可以展示并让参观者看到这些空间,即使是在完全工作状态下。
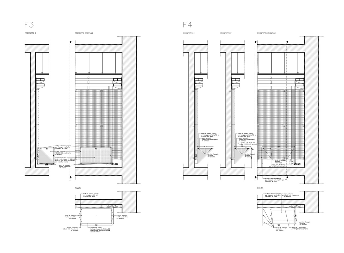
周边墙体被设想为一个支持家具元素变化安排的基础设施。由蓝色格栅板制成的连续的对墙,专门为这个场合设计和建造的包层系统,可以用一个连续的表面隐藏外部电气系统,在上面放置各种家具组件(如书架、书桌、屏幕等),这些组件配备了一个共同的挂钩系统,可以很容易地拆除和重新定位。
内部隔断由窗帘系统制成,使得根据不同需求将空间划分为不同的区域成为可能。这些可移动的墙壁可以根据要进行的活动而打开或关闭,也可以完全重新定位,以便随着时间的推移产生不同的配置。所有这些元素都有助于使空间具有高度的可重构性和响应性,并具有良好的美学效果,以应对生产性世界的挑战,这个世界正朝着一个增强的维度发展,并达到克劳斯-施瓦布所定义的第四次革命。
将典型工业材料与戏剧世界结合的研究中心设计
客服
消息
收藏
下载
最近








