查看完整案例

收藏

下载
戈者设计
令人心境合一的瑜伽馆设计
愈创木YOGA是位于在太原的一家瑜伽馆设计。设计针对瑜伽“梵我合一”的理念,通过体验来帮助人挖掘自己内在的潜能,将精神、肢体和灵魂,三个元素融入其中,帮助人可以在空间里进行仅针对自己内向的思考。设计采用了很多原生态的材质去表达空间的情感,将夯土与水泥引用到室内表皮,形态上则用 亼屮 的建筑构架对空间进行二次构建。在空间设计上尽量遵循各种材质的真实状态,希望使用者能够摆脱矫饰,自发地对周围环境做出反应。
设计师希望以城市边际为出发点,并深入探索瑜伽与人之间的关系。城市化和技术飞速发展,每个人内外之间,都有界线。而最理想的空间就应该是突破界线,回归自然。将重点转移到触觉和感官体验上,将精神,身体和灵魂和合而为一。它让人们能够在空间中多关注自己,遵循自己内心的思考。
当HOOOLD设计团队创建这个空间时,做这件事的初衷和愿景,希望表达瑜伽最真实状态,达成呼吸,自然,身体和空间之间的对话。设计师深入挖掘人们对自然空间的强烈渴望。打破了传统室内空间的布局,首先将景观区域、户外廊道和室内建筑分隔开来。人们在活动期间对瑜伽的体验不仅限于室内,而是更加真实。
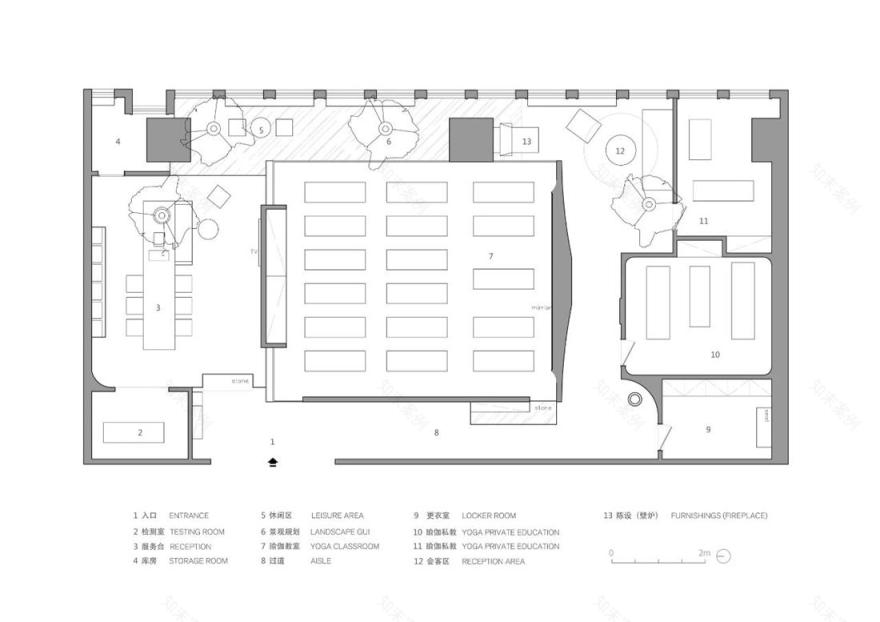
并不是太大的室内空间确实现了多种功能区域,除了瑜伽,这里还可以享受到更多的服务、休憩、服饰、茶饮、视屏观影、通过五感的体验产生第六感,情感 。
进门处的外立面,通过户外肌理的表达自然与放松 、用大颗粒的做旧墙面体现出时间的痕迹。室内大面积的墙面也是延续外部墙面,做旧,延续这种放松感和时间的痕迹,但更加细腻。
入口正对面是休闲等候区域,我们希望大家没有违和感,可以坐到一起交流沟通情感、探讨共同有兴趣的话题、桌面设计是有一棵树生长出来的。希望有一种植物的包裹感。
瑜伽大教室整个设计我们把它表达成了一个建筑房屋,用最原始的房屋构架的方式、夯土为墙。砖红色的夯土渗透出泥土的气息。包括所有配合呈现户外的石头,我们都选择了和夯土色接近的千层岩。希望空间气质一气呵成。
最里面的区域就是vip的休闲区,这里我们可以在做完瑜伽之后安静的休息,听音乐、喝茶水、吃点心、读书 、思考。整理出一片相对安静的独立空间。墙面的装饰画设计师希望不用传统的绘画来表达,而是用一张纸,没有颜色的纸通过形态和光影去表达,就像人的肢体,当前抛弃掉所有外在的装饰,身体本身的形态美,同样也是愈创木要追求的。
更衣室 vip 房间 我们希望把它当成一个建筑去对待,将亼屮 (ji cao )这种传统房屋的建筑结构引入到室内空间。墙面和顶面是完整的形态,从屋顶往上延伸,我们模拟出了屋顶的天窗,自然光洒进房屋内部的状态。这种状态很自然 很连贯。
项目名称:愈创木YOGA
项目地点:山西省太原市
设计公司:HOOOLD设计
设计团队:韩磊 孙志伟 要子恩
项目主材:夯土 水泥 水磨石
令人心境合一的瑜伽馆设计
客服
消息
收藏
下载
最近
























