查看完整案例

收藏

下载
Departamento Sursock / platau
Departamento Sursock / platau
Interiores De Apartamentos
Beirut,
Líbano
Arquitectos:
platau
Año:
2017
Fotografías:
Wissam Chaaya
Proveedores:
Porcelanosa Grupo
Listone Giordano
Vetro vivo
Beirut
Líbano
. El departamento de Sursok se define por una circulación de división lineal: su característica arquitectónica más interesante, pues fluctúa entre un espacio de recepción de doble altura y habitaciones de dos niveles con alturas únicas y que extruyen a los balcones en la misma losa en forma de tijera para definir la fachada del edificio.
Axonometrica
El esquema refuerza esta disposición espacial revelando el muro de hormigón estructural que corre a lo largo del departamento, permitiendo que su linealidad se convierta en el telón de fondo para la característica principal del departamento: una "espina" de acero de múltiples facetas.
© Wissam Chaaya
Esta columna recién introducida esculpe la circulación, las superficies y los espacios, formando la columna vertebral del apartamento: fusiona el vientre de la escalera con la losa del entrepiso, permitiendo que el entresuelo y la cocina se abran a la recepción.
En el espacio de recepción, la columna vertebral sobresale en una pasarela estrecha que domina la sala de estar en un lado y una estantería de doble altura en el otro lado. La columna vertebral se vuelve a conectar con el suelo de recepción en una escalera estructural. Se remata con una barandilla de acero que se convierte en un estante en la pasarela con un accesorio de iluminación para la lectura.
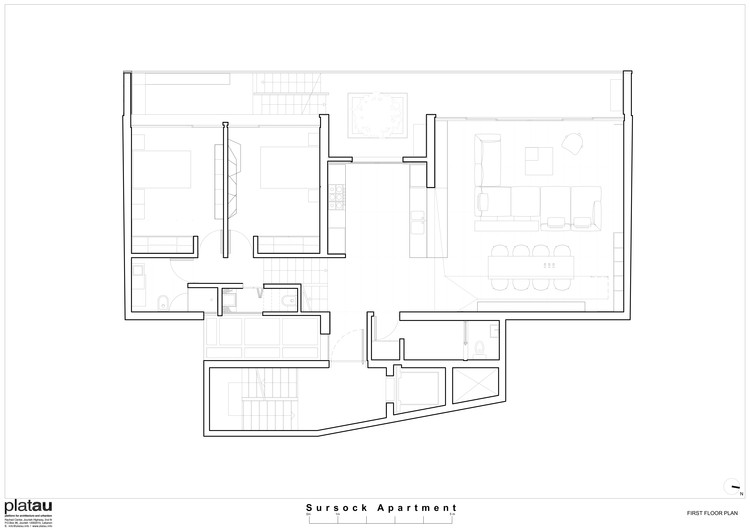
Planta primer piso
Corte
Planta segundo piso
Elementos puntuales como un nicho de entrada revestido de madera, estanterías horizontales de madera y elementos de iluminación, animan el muro de hormigón y la columna de acero, descomponiendo su escala en casos íntimos sin socavar la integridad total de la madera.
© Wissam Chaaya
platau
客服
消息
收藏
下载
最近








































