查看完整案例


收藏

下载
埃米莉咖啡公司的新分公司位于即将到来的三里屯地区,其特点是温暖的色调和有机材料的结合,为丰富的咖啡体验搭建了一个平衡的舞台。
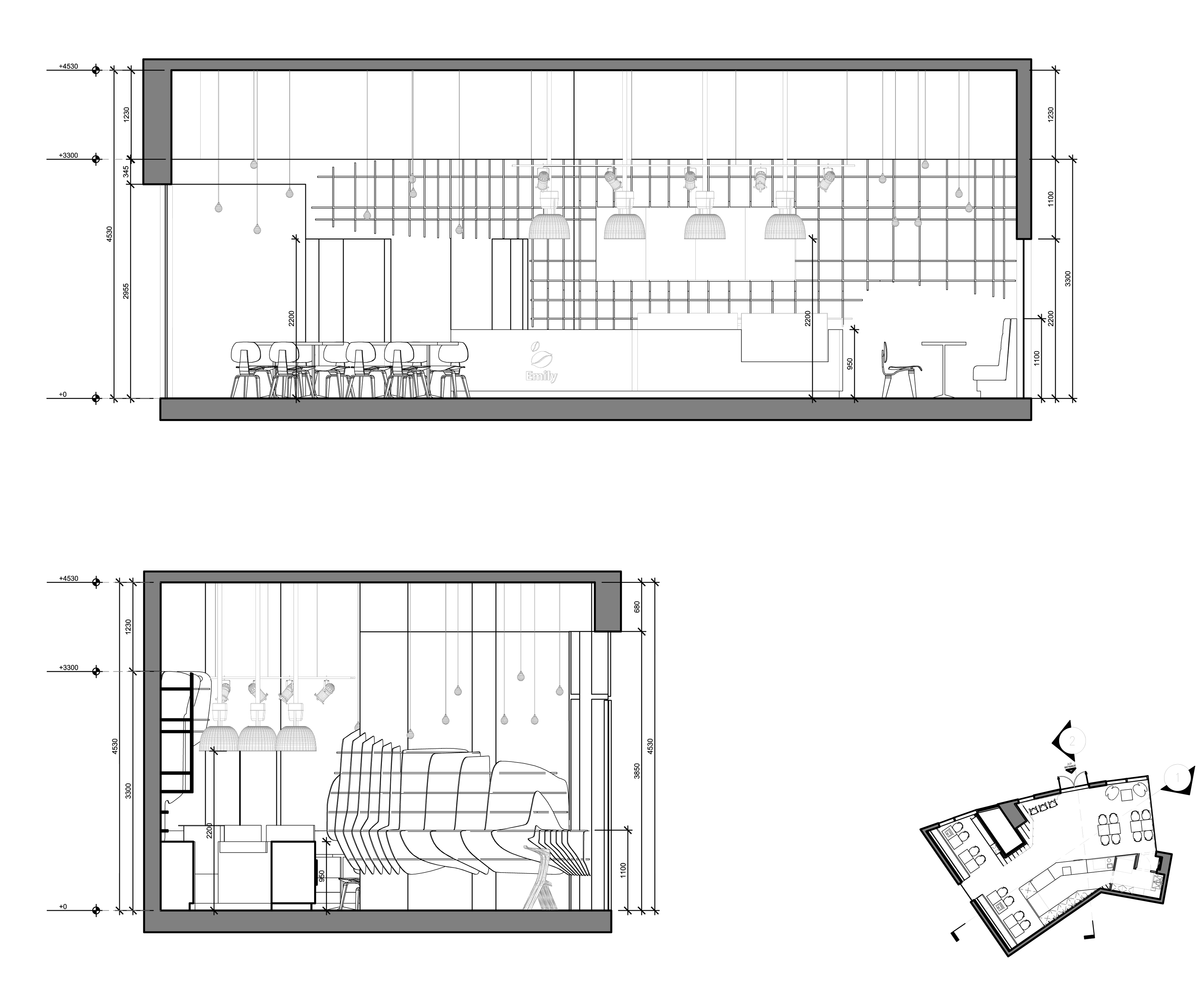
该设计以三种元素为中心:商店周边的适应性木皮、照明设计以及地板、墙壁和柜台的材料和颜色调色板的选择。
木皮背后的意图是模糊现有的边缘和角落,以创造一个连续的,视觉不间断的空间。
木质肋骨后面的驱动形状伸展在空间周围并与平面混合。由此产生的木栅格为产品广告提供搁置空间,其深度通过吸收过量声波增强声学。
用CNC技术对所有木肋进行数字化和切割。
照明设计包括用于主计数器的重型工业灯的组合、针对菜单的LED定向级灯以及用于休息区的产品和古董碳丝灯泡。
对于这些材料,地砖为800x800金属釉面瓷砖。
Firm AIDIA STUDIO
Type Commercial › Retail
STATUS Built
YEAR 2012
SIZE 0 sqft - 1000 sqft
keywords:architecture, architecture news, interiors, interior design, portfolio, spec, brands, marketplace, products Emily Coffee Shop
关键词:建筑,建筑新闻,室内设计,组合,规格,品牌,市场,产品艾米丽咖啡店
客服
消息
收藏
下载
最近




















