查看完整案例

收藏

下载
Villa № 9
information:
status
project
date
2007
—
2006
place
Russia
,
Gorky-2
function
Residential
/
Villa
Ilya Utkin
/
Russia
U-Studio
/
Russia
Archi.ru about this project:
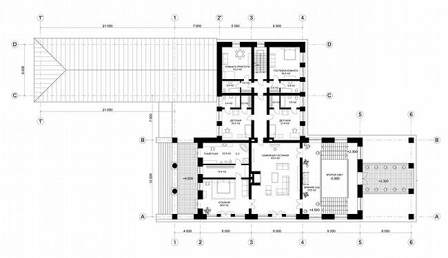
Anatoly Belov. Symmetry without symmetry
Studying paradoxes of Ilya Utkin's art, Anatoly Belov discovered in the project of country house «Gorki-2» symmetry without symmetry
First thing one thinks over looking at the project of villa «Gorki-2» by Ilya Utkin: and what it, actually for style? Most likely it is Classics, but not so sure. Well, the front and yard facades of the building are decorated with porticoes, the hous
客服
消息
收藏
下载
最近












